Beschrijving

Wonen in het gewilde Hoog Baarn? In een bijzonder sfeervolle, recent gemoderniseerde en uitgebouwde 2-onder-1-kapwoning? Op loopafstand van dorpscentrum en vele voorzieningen? Dan is dit beslist het ideale object en een bezichtiging waard.

In een van Baarns leukste buurten, Hoog Baarn, in een rustig straatje en zeer gunstig gelegen, op loopafstand van het gezellige centrum, het station en de bossen, staat deze sfeervolle en met zorg onderhouden twee-onder-een-kapwoning met zonnige voor- zij- en achtertuin. De huidige eigenaren hebben de woning de afgelopen jaren vergroot middels een uitbouw op de begane grond, op werkelijk alle vlakken onder handen genomen waarbij o.a. keuken, sanitair, leidingwerk, elektra, nieuw pannendak, stuc- en schilderwerk, isolatiewerk en de tuin aangepakt zijn. Wat resteert is een heerlijk, instapklaar gezinshuis met een woonoppervlakte van 106 m2, 3 slaapkamers en een hoog afwerkingsniveau. Kortom: een unieke kans!

Indeling:
Begane grond met zij-entree, sfeervolle hal met meterkast (nieuwe groepenkast), garderoberuimte en modern toilet met fraai tegelwerk. Doorgang naar de L-vormige woonkamer met hoge plafonds en glas-in-lood details. De achterzijde van de woonkamer is uitgebouwd met o.a. een lichtstraat waardoor een ruimere, heerlijk lichte kamer is ontstaan en bovendien een fraaie woonkeuken is gerealiseerd. Deze heeft een eigen toegang middels openslaande deuren en is o.a. voorzien van complete inbouwapparatuur + vloerverwarming. Separate wasruimte en cv ruimte completeert het geheel. 
Vanuit de woonkamer is er via openslaande deuren toegang tot het achter gelegen terras welke de volle breedte beslaat.
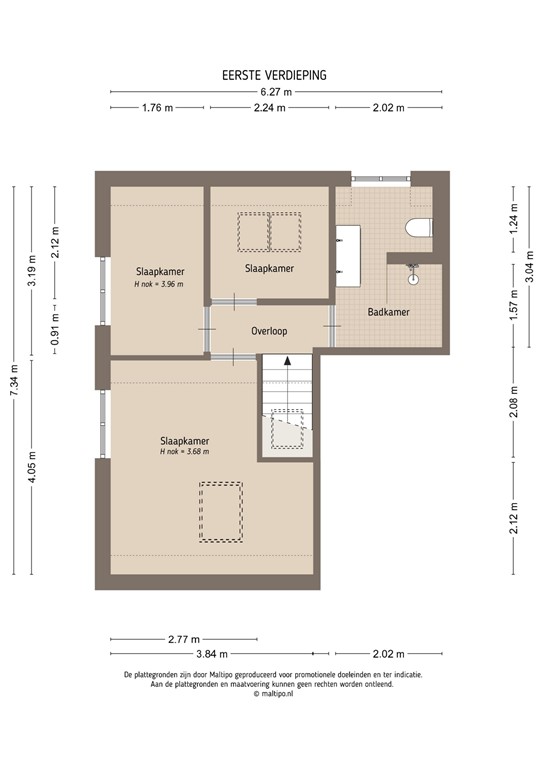
1e verdieping: overloop, 3 slaapkamers waarvan de grootste kamer aan de achterzijde is gesitueerd en de beschikking heeft over o.a. fraaie balken in het zicht. De overige 2 slaapkamers zijn aan de voorzijde gesitueerd. Hoogwaardig uitgevoerde en royale badkamer met wederom fraai tegelwerk, inloopdouche, duo wastafelmeubel en wandcloset. Tevens is deze ruimte voorzien van elektrische vloerverwarming.
Vliering met praktische provisieruimte maakt het geheel af. 

Aanvullende informatie:

- Bouwjaar 1907
- Woonoppervlakte 106 m2
- Royaal uitgebouwd op begane grond waardoor fraaie ruimte is ontstaan
- Hoogwaardig afwerkingsniveau, derhalve zo te betrekken
- Energielabel C
- Compleet gemoderniseerd vanaf 2020
- Nieuw pannendak
- Beschermd dorpsgezicht
- Ligging in rustig, kindvriendelijk straatje nabij centrum + scholen
- Oplevering in overleg

Toelichtingsclausule NEN2580
De meetinstructie is gebaseerd op de NEN2580. De meetinstructie is bedoeld om een meer eenduidige manier van meten toe te passen voor het geven van een indicatie van de gebruiksoppervlakte. De meetinstructie sluit verschillen in meetuitkomsten niet volledig uit, door bijvoorbeeld interpretatieverschillen, afrondingen of beperkingen bij het uitvoeren van de meting.

Wij hebben alle moeite genomen om de bovenstaande informatie zo compleet en juist mogelijk weer te geven. Fouten of onjuistheden zijn echter niet geheel uit te sluiten. Vertrouw niet enkel op bovenstaande informatie, maar controleer alle informatie zorgvuldig wanneer je overgaat tot een aankoopbeslissing.

Kenmerken