Beschrijving

Ben je op zoek naar een ruime instapklare gezinswoning die de luxe biedt van twee badkamers, vier ruime slaapkamers, inloopkast en een heerlijke zonnige tuin? Wil je ontspannen, terwijl de kinderen veilig spelen rondom het huis? Dan is deze sfeervolle woning absoluut een bezichtiging waard!

Deze ruime, lichte gezinswoning (132m2) is de afgelopen jaren met aandacht gerenoveerd en verduurzaamd. Zo zijn recent het sanitair, de vloeren, de wanden en de elektrische installatie vernieuwd. Op de zolderverdieping zijn twee grote dakkapellen geplaatst en is de kap volledig geïsoleerd, wat het energieverbruik ten goede komt. Mede door de airconditioning, 2e badkamer en inloopkast is de zolder een comfortabele en luxe slaapkamer (master bedroom). Ook is de voor- en achtertuin nieuw aangelegd inclusief buitenkeuken en een houten speelhuis.

De woning ligt in de geliefde wijk Eemdal aan een rustige, kindvriendelijke, doodlopende straat met een leuk speeltuintje. De straat is ruim van opzet met voldoende parkeergelegenheid en ligt op loopafstand van het natuurgebied de Eemerwaard, het Baarnsche bos, scholen, kinderopvang, winkels en dichtbij uitvalswegen.

Kortom: een heerlijke woning waar je zo in kan trekken!

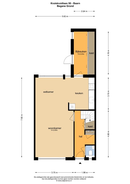
Indeling:
Begane grond: Entree, hal met meterkast, toilet met fonteintje, trapkast en doorgang naar de lichte en ruime woon-eetkamer welke is voorzien van eiken parketvloer en strakke wandafwerking. Aan de achterzijde bevindt zich de open keuken in rechte opstelling en voorzien van diverse inbouwapparatuur. Riante bijkeuken met volop bergruimte en toegang middels loopdeur tot de sfeervolle, recent aangelegde achtertuin met onder andere de buitenkeuken, twee terrassen, veel groen, speeltoestel voor de kinderen, eigen achterom en veel privacy.

1e verdieping: Overloop, drie volwaardige slaapkamers waarvan twee aan de achterzijde zijn gesitueerd en één aan de voorzijde. Zeer smaakvolle badkamer met ligbad, wastafelmeubel en wandcloset.

2e verdieping: Vaste trap naar geïsoleerde zolderverdieping. Deze ruimte is bijzonder ruim te noemen door de realisatie van twee dakkapellen over de volle breedte. Voorzolder met op maat gemaakte inloopkast, was- en droger opstelling en heerlijke 4e slaapkamer met airco. 2e badkamer met douche, wastafelmeubel en wandcloset. 

Aanvullende informatie:
- Bouwjaar 1974
- Woonoppervlakte 132 m2
- 4 slaapkamers en 2 badkamers
- Zeer goed onderhouden en zo te betrekken
- Energielabel B
- Kindvriendelijke, rustige locatie
- Deels vrij uitzicht
- Kapisolatie aanwezig evenals spouwmuurisolatie
- Nagenoeg geheel v.v. dubbel glas
- Airconditioning op zolder
- Diepe en fraai aangelegde achtertuin 
- CV uit 2017
- Oplevering in overleg

Toelichtingsclausule NEN2580
De meetinstructie is gebaseerd op de NEN2580. De meetinstructie is bedoeld om een meer eenduidige manier van meten toe te passen voor het geven van een indicatie van de gebruiksoppervlakte. De meetinstructie sluit verschillen in meetuitkomsten niet volledig uit, door bijvoorbeeld interpretatieverschillen, afrondingen of beperkingen bij het uitvoeren van de meting.

Wij hebben alle moeite genomen om de bovenstaande informatie zo compleet en juist mogelijk weer te geven. Fouten of onjuistheden zijn echter niet geheel uit te sluiten. Vertrouw niet enkel op bovenstaande informatie, maar controleer alle informatie zorgvuldig wanneer je overgaat tot een aankoopbeslissing.

Kenmerken