Beschrijving

Zoek jij een fijne gezinswoning met veel ruimte (183 m2) op een centrale plek nabij vele voorzieningen?  Dan is dit beslist het ideale object en absoluut een bezichtiging waard!

In de geliefde en kindvriendelijke wijk De Bouw hebben wij deze verrassend ruime woning in de verkoop gekregen. Deze fijne gezinswoning heeft o.a. een zeer praktische indeling, een riante tuin met meerdere zon terrassen, zeer ruime woonkamer met aparte eetkamer, 5 goede slaapkamers en maar liefst 2 badkamers. De locatie is helemaal top, het is hier erg fijn wonen. Loop je de straat uit, dan tref je direct een fijne speeltuin en groen. Op steenworp afstand bevindt zich winkelcentrum Castellum met winkels en het treinstation. Er zijn voldoende scholen en kinderdagverblijven. Het Oude Dorp van Houten ligt ook om de hoek en de uitvalswegen zijn nabij. Kortom een heerlijke centrale plek. Een huis naar je hart? We laten het graag aan je zien!

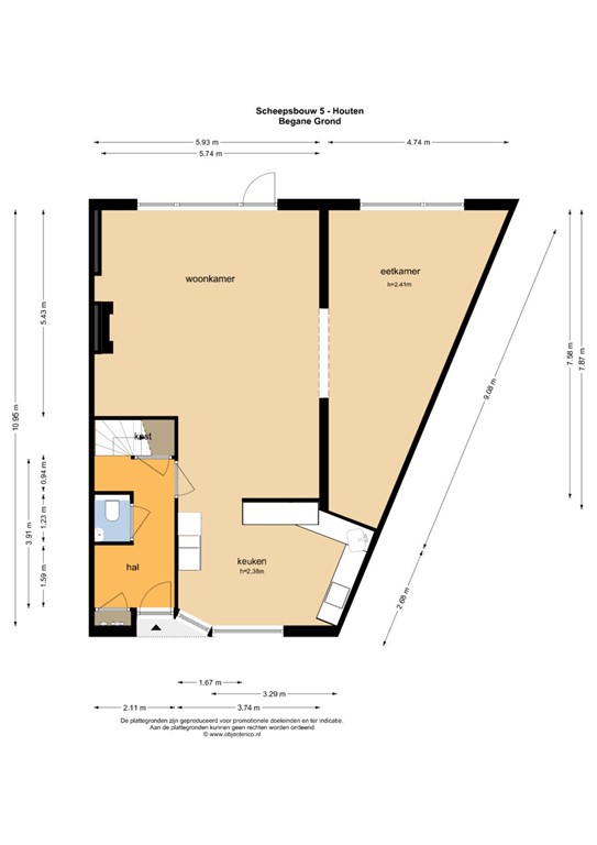
Indeling:
Entree, hal met garderoberuimte, meterkast, modern toilet met fonteintje, trapkast en doorgang naar woonkamer. Aan de voorzijde bevindt zich de half-open keuken welke is voorzien van complete inbouwapparatuur. Zeer ruime woonkamer met o.a. massief eiken vloer en een lichte wandafwerking. In het verlengde van de living bevindt zich de eveneens royale eetkamer. 
1e verdieping: overloop, 3 volwaardige slaapkamers waarvan de grootste zich aan de voorzijde bevindt en de beschikking heeft over een walk-in-closet/vaste kast. Badkamer met ligbad, douchecabine, vaste wastafel en wandcloset.
Vaste trap naar geïsoleerde zolderverdieping. Voorzolder met opstelling wasmachine + droger. 2 volwaardige slaapkamers en een 2e badkamer met douche en vaste wastafel completeren het geheel. 

Aanvullende informatie:

- Woonoppervlakte 183 m2
- Energielabel A
- 5 slaapkamers + 2 badkamers
- Bouwjaar 2000
- Heerlijke achtertuin met meerdere (zon)terassen
- Oplevering in overleg voorkeur maart 2025


Toelichtingsclausule NEN2580 
De meetinstructie is gebaseerd op de NEN2580. De meetinstructie is bedoeld om een meer eenduidige manier van meten toe te passen voor het geven van een indicatie van de gebruiksoppervlakte. De meetinstructie sluit verschillen in meetuitkomsten niet volledig uit, door bijvoorbeeld interpretatieverschillen, afrondingen of beperkingen bij het uitvoeren van de meting. 

Wij hebben alle moeite genomen om de bovenstaande informatie zo compleet en juist mogelijk weer te geven. Fouten of onjuistheden zijn echter niet geheel uit te sluiten. Vertrouw niet enkel op bovenstaande informatie, maar controleer alle informatie zorgvuldig wanneer je overgaat tot een aankoopbeslissing.

Kenmerken