Beschrijving

Prachtige Eurowoning die direct te betrekken is! aan de Ardennen 54 in Leusden! Bel snel voor een bezichtigings afspraak!

Wonen in het groen, met ruimte, comfort én een prachtig groen uitzicht welkom aan de Ardennen 54!

Deze verrassend ruime drive-in woning van circa 150 m² woonoppervlakte en een inhoud van bijna 500 m³ en ligt op een prachtige plek aan het Rozendal, omgeven door groen en met vrij uitzicht over een park. Hier geniet u dagelijks van rust, ruimte en een fijne woonomgeving!

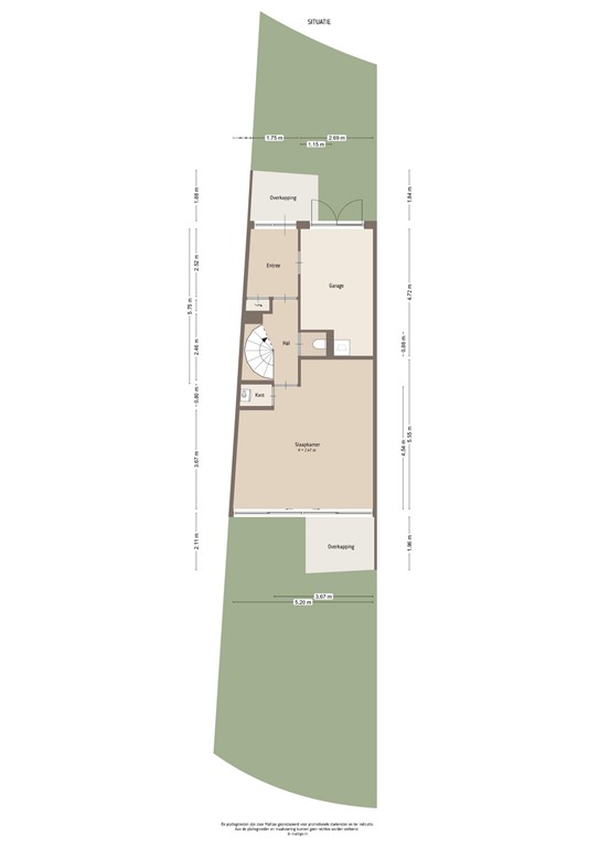
Begane grond:
De begane grond biedt een multifunctionele werk-/studiokamer met een heerlijk uitzicht op de zonnige tuin op het zuiden. Een ideale plek voor thuiswerken, een atelier of praktijkruimte. Vanuit deze ruimte kijkt u uit over de verzorgde tuin waar u volop kunt genieten van de zon en privacy. 

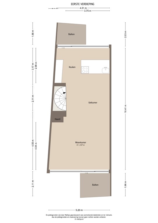
Eerste verdieping:
De eerste verdieping vormt het hart van de woning. Hier bevindt zich de prachtige moderne keuken, voorzien van alle benodigde inbouwapparatuur. De verdieping is recent stijlvol gemoderniseerd en beschikt over een fraaie visgraat PVC-vloer. De ruimte is open en licht doordat de indeling is aangepast, wat zorgt voor een heerlijk ruimtelijk gevoel!
Daarnaast beschikt deze verdieping over zowel een balkon aan de voorzijde als een balkon aan de achterzijde – perfect om op elk moment van de dag van de zon te genieten met een kopje koffie of een goed glas wijn!

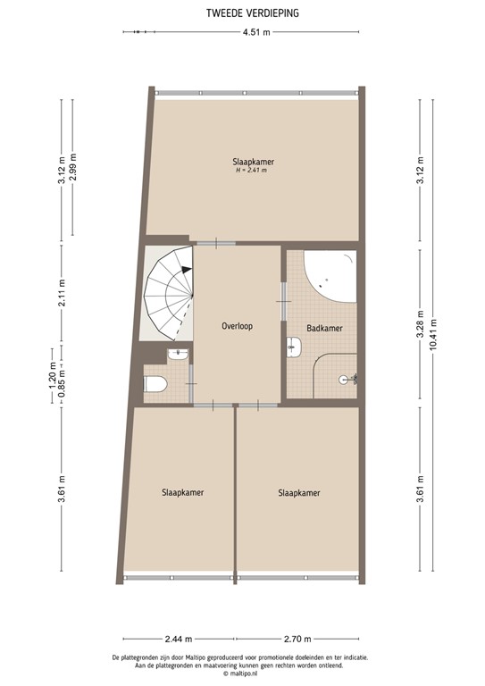
Tweede verdieping:
Op de tweede verdieping bevinden zich drie slaapkamers, een separaat toilet en een ruime badkamer voorzien van een ligbad, douche en wastafel. Ideaal voor een gezin of voor wie extra ruimte wenst voor werk of hobby.

Buiten en omgeving:
Parkeren kan op eigen terrein, en aan de voorzijde kijkt u vrij uit over een groen park. Als bewoner maakt u bovendien gebruik van een gezamenlijk zwembad en tennisbaan, wat deze woonomgeving extra bijzonder maakt.

Kortom, een ruime en sfeervolle woning op een fantastische groene locatie in Leusden, met volop leefruimte, moderne voorzieningen en unieke extra’s.
Maak snel een afspraak voor een bezichtiging en ervaar zelf de fijne sfeer van deze woning!

Bijzonderheden:
Keuken voorzien van alle inbouw apparatuur en Qooker
Oplevering in overleg,
Keurige staat van onderhoud.
Plat dak is gecontroleerd en nog in goede staat. circa in 2000 vervangen
Bijdragen bewoners voorziening oa zwembad, tennisbaan en openbaar groen €60,- per jaar.


Toelichtingsclausule NEN2580
De meetinstructie is gebaseerd op de NEN2580. De meetinstructie is bedoeld om een meer eenduidige manier van meten toe te passen voor het geven van een indicatie van de gebruiksoppervlakte. De meetinstructie sluit verschillen in meetuitkomsten niet volledig uit, door bijvoorbeeld interpretatieverschillen, afrondingen of beperkingen bij het uitvoeren van de meting.

Wij hebben alle moeite genomen om de bovenstaande informatie zo compleet en juist mogelijk weer te geven. Fouten of onjuistheden zijn echter niet geheel uit te sluiten. Vertrouw niet enkel op bovenstaande informatie, maar controleer alle informatie zorgvuldig wanneer je overgaat tot een aankoopbeslissing.

Kenmerken