Beschrijving

Wonen in een rustige, kindvriendelijke omgeving, direct grenzend aan park Vechtenstein? Aan een verkeersarme laan die niet-doorgaand is voor auto’s? Met veel ruimte, eigen parkeerplaatsen, garage/berging en eventueel geschikt voor praktijk aan huis? Dan is dit beslist het ideale object en een bezichtiging waard!

Dit heerlijke gezinshuis met een heerlijke, zonnige tuin is gelegen op een toplocatie en biedt volop mogelijkheden! Lopend het dorp in? Dat kan zeker! Op zeer korte afstand tref je een supermarkt, de bakker, drogist, diverse kledingwinkels, zorgcentrum met huisarts en apotheek en horecagelegenheden. In het voorjaar en de zomer komen veel boten voorbij varen op de Vecht, wat maakt dat het dorp erg levendig is! Daarnaast heeft Maarssen een prachtig buitengebied rondom de Vecht en ligt het huis op loopafstand van kinderboerderij ‘De Vechtse Hoeve’ met veel speelmogelijkheden en op korte afstand van de Maarssenveense plassen en het natuurgebied van Tienhoven. Op loopafstand van enkele minuten is een bushalte gelegen en op fietsafstand ligt het treinstation Maarssen met goede verbindingen naar Utrecht en Amsterdam. Ook met de auto ligt Maarssen erg centraal, binnen 25 minuten sta je al in Amsterdam of Utrecht. Vanuit Maarssen-Dorp is het centrum van Utrecht ook met de (elektrische) fiets uitstekend bereikbaar, zodat je ook het gezellige stadsleven binnen handbereik hebt. 

Indeling:
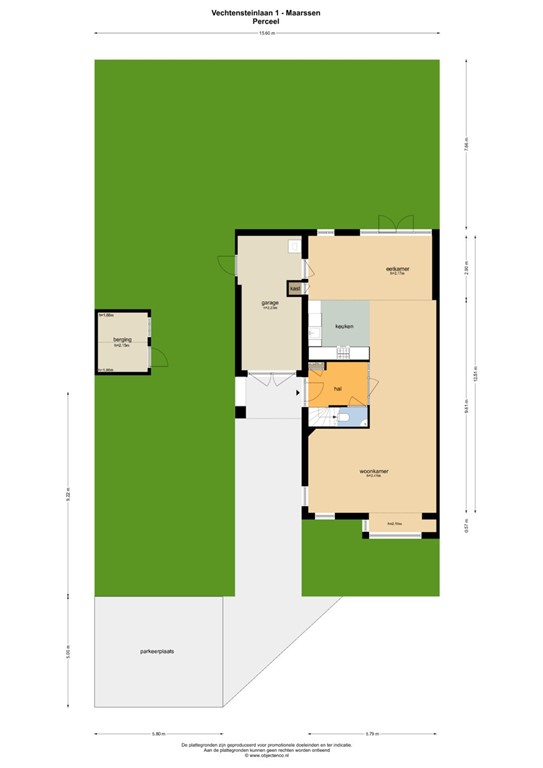
Zij-entree, ruime hal met garderoberuimte, meterkast, toilet en doorgang naar L-vormige woonkamer met erker aan de voorzijde en is zeer ruim van formaat. Aan de achterzijde bevindt zich de uitgebouwde woonkeuken. De keuken is in L-opstelling gesitueerd en de eetruimte biedt middels openslaande deuren toegang tot de achtertuin en staat eveneens in directe verbinding met de garage. Deze is geheel naar wens op meerdere manieren te gebruiken. 
1e verdieping: overloop, 4 ruim bemeten en allemaal volwaardig te noemen slaapkamers. Ruime badkamer met ligbad, inloopdouche, dubbele wastafelmeubel en wandcloset. 
Vaste trap naar geïsoleerde zolderverdieping met 5e slaapkamer en opstelling cv ketel en praktische bergruimte.  


Aanvullende informatie:

- Ruime hoekwoning met 143 m2 woonoppervlakte + 17 m2 overige inpandige ruimte
- Royaal perceel van totaal 450 m2
- 1 van de weinige percelen met achterom + toegang tot de achtertuin 
- 2 naast elkaar gelegen parkeerplekken op eigen terrein
- Voortuin met terras voor heerlijk zitten in de ochtendzon 
- Geschikt voor praktijk/kantoor aan huis
- Energielabel B
- Bouwjaar 1984
- Fraaie, vrije ligging
- Kindvriendelijke locatie nabij voorzieningen
- Op wandelafstand naar meerdere basisscholen

Toelichtingsclausule NEN2580 
De meetinstructie is gebaseerd op de NEN2580. De meetinstructie is bedoeld om een meer eenduidige manier van meten toe te passen voor het geven van een indicatie van de gebruiksoppervlakte. De meetinstructie sluit verschillen in meetuitkomsten niet volledig uit, door bijvoorbeeld interpretatieverschillen, afrondingen of beperkingen bij het uitvoeren van de meting. 

Wij hebben alle moeite genomen om de bovenstaande informatie zo compleet en juist mogelijk weer te geven. Fouten of onjuistheden zijn echter niet geheel uit te sluiten. Vertrouw niet enkel op bovenstaande informatie, maar controleer alle informatie zorgvuldig wanneer je overgaat tot een aankoopbeslissing.

Kenmerken