Beschrijving

Op zoek naar een ruim en licht appartement? Met een royale buitenruimte? En een gunstige centrale ligging nabij vele voorzieningen en uitvalswegen? Dan is dit beslist het ideale object en een bezichtiging waard!

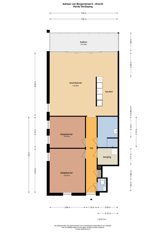
Ruim 3-kamer HOEK appartement van 97 m2 met riant balkon van 13 m2 met leuk uitzicht. Het appartement is gelegen op de 4e verdieping en maakt onderdeel uit van een actieve en gezonde VVE. Het geheel is gebouwd in 2002 en is derhalve energiezuinig en voorzien van energielabel A. 

De ligging in Zuilen is ideaal: dichtbij winkelcentrum Rokade en de Amsterdamsestraatweg voor de dagelijkse boodschappen, het lekkerste ijsje haal je bij ijssalon Roma en het fijne Julianapark voor je wekelijkse hardlooprondje is ook dichtbij. Zuilen ligt op nog geen 10 minuten fietsen van het centrum van Utrecht met de gezellige terrassen op de Neude en de Oudegracht en een enorme diversiteit aan goede restaurants, gezellige bars, vele hippe koffiezaken en de bekende warenhuizen en kledingzaken. Uitvalswegen en het Station Utrecht Centraal voor de bus, tram en trein zijn gemakkelijk te bereiken. Station Zuilen is maar 2 minuten fietsen.

Indeling:

Begane grond: via de centrale entree bereik je de centrale hal met brievenbussen, bellentableau, een trapopgang én een lift.

Vierde verdieping: vanuit de hal heb je toegang tot alle ruimtes. Aan de achterzijde vind je de ruime en lichte woonkamer met grote raampartijen en toegang tot het balkon. De woonkamer biedt volop ruimte voor een comfortabele zithoek en grote eettafel. Het aangrenzende ruime balkon is over de hele breedte met heerlijk groen uitzicht. De halfopen keuken is erg ruim en praktisch ingericht met veel werkruimte en opbergruimte. De keuken is voorzien van inbouwapparatuur. Terug in de hal zijn er twee fijne slaapkamers. Beide slaapkamers zijn van prima formaat. De badkamer is voorzien van een douche en vaste wastafel. Er is een apart toilet in de hal. in de hal is ook een berging te vinden met wasmachineaansluiting. In de onderbouw bevindt zich nog een aparte berging, handig voor je fiets of extra opslag.

Aanvullende informatie:

- Bouwjaar 2002
- Woonoppervlakte 97 m2 + buitenruimte van 13 m2
- Energielabel A
- HOEK appartement met fraai uitzicht
- Vrij parkeren in de directe omgeving
- Lift aanwezig in complex
- Geen vragenlijst en lijst van zaken aanwezig
- Niet gewoond clausule van toepassing
- Vaste notaris Koch Notarissen


Toelichtingsclausule NEN2580 
De meetinstructie is gebaseerd op de NEN2580. De meetinstructie is bedoeld om een meer eenduidige manier van meten toe te passen voor het geven van een indicatie van de gebruiksoppervlakte. De meetinstructie sluit verschillen in meetuitkomsten niet volledig uit, door bijvoorbeeld interpretatieverschillen, afrondingen of beperkingen bij het uitvoeren van de meting. 

Wij hebben alle moeite genomen om de bovenstaande informatie zo compleet en juist mogelijk weer te geven. Fouten of onjuistheden zijn echter niet geheel uit te sluiten. Vertrouw niet enkel op bovenstaande informatie, maar controleer alle informatie zorgvuldig wanneer je overgaat tot een aankoopbeslissing.

Kenmerken