Beschrijving

Wonen op loopafstand van de binnenstad en NS-station? Voldoende ruimte en slaapkamers zijn voor jou absolute must haves? En ook nog je eigen balkon en een heerlijke tuin? Dit toffe 4-kamer appartement biedt het allemaal en is dus absoluut een bezichtiging waard!

In populaire woonwijk TOLSTEEG is op de onderste 2 verdiepingen deze 4-kamermaisonette gesitueerd met gezamenlijke tuin en grote berging in de onderbouw.

Gunstig gelegen op loopafstand van het NS-station Vaartsche Rijn, de gezellige cafés en restaurants op Rotsoord en het Ledig Erf en alle overige voorzieningen. Het winkelcentrum Smaragdplein (met een wekelijkse markt) ligt direct om de hoek. In 10 minuten fietst u naar Utrecht Centraal Station en in 15 minuten naar het Utrecht Science Park en de bossen van Amelisweerd. Goed bereikbaar met zowel het openbaar vervoer als met de auto en nabij uitvalswegen. 
Parkeren middels parkeervergunning.

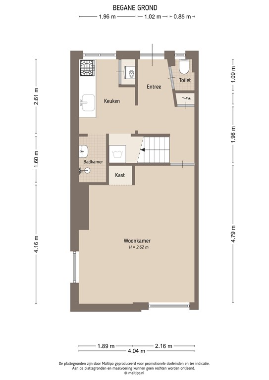
Indeling: 
4e woonlaag: 
Entree/hal met meterkast, toilet en toegang tot de keuken. Nette keuken in rechte opstelling met veel kastruimte en diverse inbouwapparatuur. badkamer met douche en vaste wastafel. Opstelling wasmachine en stookruimte. Woonkamer aan de voorzijde met trap naar de verdieping. 

5e woonlaag:
Overloop met toegang tot 3 slaapkamers, 1 kamer met vaste kast en toegang tot het balkon. De grootste slaapkamer bevindt zich aan de achterzijde en biedt eveneens een balkon. 

Aanvullende informatie:

- Bouwjaar 1960
- 4-kamer maisonnette met gezamenlijke tuin, balkons (7 m2) en berging in de onderbouw
- Woonoppervlakte 64 m2
- Berging in onderbouw van circa 6 m2
- Deeluitmakend van gezonde en actieve VVE circa €190,- per maand
- Nabij NS-station Vaartsche Rijn en binnenstad
- Project Notaris van Grafhorst Notarissen
- Parkeren middels parkeervergunning
- Oplevering kan spoedig
- Geen vragenlijst en lijst van zaken aanwezig
- Niet bewoond clausule van toepassing


Toelichtingsclausule NEN2580 
De meetinstructie is gebaseerd op de NEN2580. De meetinstructie is bedoeld om een meer eenduidige manier van meten toe te passen voor het geven van een indicatie van de gebruiksoppervlakte. De meetinstructie sluit verschillen in meetuitkomsten niet volledig uit, door bijvoorbeeld interpretatieverschillen, afrondingen of beperkingen bij het uitvoeren van de meting. 

Wij hebben alle moeite genomen om de bovenstaande informatie zo compleet en juist mogelijk weer te geven. Fouten of onjuistheden zijn echter niet geheel uit te sluiten. Vertrouw niet enkel op bovenstaande informatie, maar controleer alle informatie zorgvuldig wanneer je overgaat tot een aankoopbeslissing.

Kenmerken