Beschrijving

Een compleet verbouwde, uitgebouwde en instapklare woning? Met een eigen tuin? En een energielabel A? Dan is deze woning absoluut een bezichtiging waard!

De woning is het afgelopen jaar compleet verbouwd, uitgebouwd en derhalve 116 m2 (NEN2580) groot. Het geheel wordt gekenmerkt door een hoogwaardig afwerkingsniveau, fraaie keuken met kookeiland en prachtig sanitair. Verder beschikt deze gezinswoning over maar liefst 5 slaapkamers verdeeld over de eerste en tweede verdieping en heb je aan de voorzijde een compleet vrije ligging. 

De Schepenbuurt een gezellige buurt nabij diverse voorzieningen zoals openbaar vervoer, winkelcentrum Groeneweg, diverse eettentjes aan de Vleutenseweg en het Majellapark op loopafstand. De woning is tevens gunstig gelegen ten opzichte van diverse uitvalswegen (A2 en A27). Met het openbaar vervoer aan de Cartesiusweg ben je binnen enkele wandelminuten ben je op het station van Zuilen. Je kunt natuurlijk ook kiezen voor de trein vanaf station Utrecht welke op max 10 fietsminuten zit. In de buurt is een klein blokje openbaar groen, dat als parkje dienstdoet, en in het midden het Aakplein een veilige speelplaats voor de kleintjes. Kortom de woning bevindt zich op een uitstekende locatie in een sfeervolle en gezellige wijk met een heerlijke buiten en belangrijke voorzieningen binnen handbereik die je vele jaren woonplezier doen garanderen. 


Indeling:
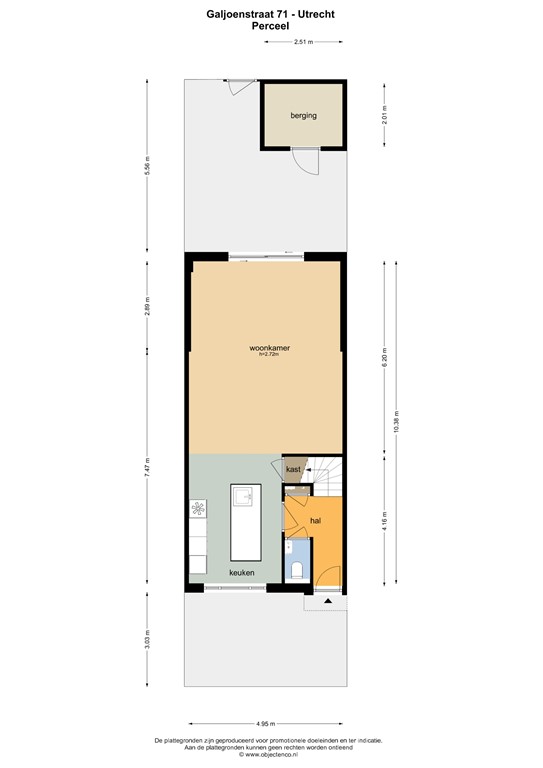
Entree, hal met meterkast, wandcloset met fonteintje en middels fraaie stalen deur toegang tot de straat gerichte keuken met kookeiland en complete inbouwapparatuur. De woonkamer is aan de achterzijde uitgebouwd en biedt via een schuifpui toegang tot de achtertuin met stenen berging en achterom. De woonkamer is voorzien van o.a. visgraten vloer (PVC) en strak gestucte wanden. 
1e verdieping: overloop, 3 in grootte variërende slaapkamers waarvan 1 toegang biedt tot eventueel dakterras, en een luxe uitgevoerde badkamer met inloopdouche, wastafelmeubel en wandcloset. 
Vaste trap naar volledig geïsoleerde zolderverdieping met nog 2 slaapkamers, een wasruimte en een stookruimte met opstelling nieuwe CV ketel. 


Aanvullende informatie: 

- Bouwjaar 1946
- Woonoppervlakte 116 m2
- Energielabel A, volledig geïsoleerd en v.v. dubbel glas 
- Mogelijkheid voor dakterras op 1e verdieping
- Hoogwaardig afgewerkt en turn-key
- Geen lijst van zaken en vragenlijst aanwezig
- Niet gewoond clausule van toepassing


Toelichtingsclausule NEN2580 
De meetinstructie is gebaseerd op de NEN2580. De meetinstructie is bedoeld om een meer eenduidige manier van meten toe te passen voor het geven van een indicatie van de gebruiksoppervlakte. De meetinstructie sluit verschillen in meetuitkomsten niet volledig uit, door bijvoorbeeld interpretatieverschillen, afrondingen of beperkingen bij het uitvoeren van de meting. 

Wij hebben alle moeite genomen om de bovenstaande informatie zo compleet en juist mogelijk weer te geven. Fouten of onjuistheden zijn echter niet geheel uit te sluiten. Vertrouw niet enkel op bovenstaande informatie, maar controleer alle informatie zorgvuldig wanneer je overgaat tot een aankoopbeslissing.

Kenmerken