Beschrijving

Zoek jij een goed geïsoleerd en comfortabel appartement? Met minimaal 2 goede slaapkamers? Gecombineerd met een centrale locatie in de jonge wijk Langerak, nabij winkels en voorzieningen? Dan is dit beslist het ideale object en een bezichtiging waard!

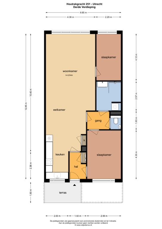
We nemen je graag mee door de woning om je alvast een indruk te geven:Via de lift in de hal op de begane grond komen wij aan op de derde verdieping.Bij de voordeur van het appartement aangekomen tref je gelijk een leuk zitje met groen uitzicht.Via de hal kom je binnen in de lange woonkamer van bijna 13 meter! Direct valt de grote raampartij op. Maak van je woonkamer een balkon, door de grote accordeon ramen die volledig open kunnen! Is de zon te fel? Maak dan gebruik van de elektrische screens. Het gehele appartement kent een strakke afwerking. De keuken is gesitueerd aan de voorzijde en in L-opstelling en beschikt over een inductiekookplaat, koel/vriescombinatie, afzuigkap, magnetron vaatwasser en oven.Het appartement heeft twee slaapkamers. De eerste is gecreëerd aan achterzijde van de woning. Deze is circa 9m². Via de hal is de tweede en grootste slaapkamer (circa 13m²) bereikbaar. Tevens is hier de moderne en luxe uitgevoerde badkamer uit 2025 te vinden. De badkamer is voorzien van een royale inloopdouche, wastafel met meubel en designradiator. Op de begane grond is er nog een berging van circa 6m².Wonen op de Houtrakgracht betekend lopend je boodschappen doen in winkelcentrum Parkwijk met op elke vrijdag op het plein de markt met visboer, bloemenkraam, slager, bakker en groenten boer. Diverse scholen in de buurt en kinderopvang op de begane grond van het complex! De uitvalswegen naar de A2 en A12 zijn dichtbij en met het openbaar vervoer sta je binnen 15 minuten in het centrum van Utrecht.

De feiten op een rij:- bouwjaar 2001- 85m² woonoppervlakte- Badkamer en toilet luxe uitgevoerd (2025)-Twee slaapkamers- Accordeon raam over de gehele breedte van de woonkamer- Eigen berging- Perfecte starters woning- Erfpacht eeuwigdurend afgekocht (AV1989)


Toelichtingsclausule NEN2580
De meetinstructie is gebaseerd op de NEN2580. De meetinstructie is bedoeld om een meer eenduidige manier van meten toe te passen voor het geven van een indicatie van de gebruiksoppervlakte. De meetinstructie sluit verschillen in meetuitkomsten niet volledig uit, door bijvoorbeeld interpretatieverschillen, afrondingen of beperkingen bij het uitvoeren van de meting.

Wij hebben alle moeite genomen om de bovenstaande informatie zo compleet en juist mogelijk weer te geven. Fouten of onjuistheden zijn echter niet geheel uit te sluiten. Vertrouw niet enkel op bovenstaande informatie, maar controleer alle informatie zorgvuldig wanneer je overgaat tot een aankoopbeslissing.

Kenmerken