Beschrijving

Aan de Julianaweg 168 gelegen in het zeer populaire Hoograven!

Ben je op zoek naar een fijne gezinswoning op een toplocatie in Utrecht? Dan is deze woning aan de Julianaweg 168 in de populaire wijk Hoograven absoluut een bezichtiging waard!

Instapklaar met recente deelrenovaties (2024)
Deze sfeervolle woning is in 2024 deels gerenoveerd. Zo zijn onder andere de keuken, vloeren, badkamer en elektra vernieuwd. Dat betekent modern wooncomfort gecombineerd met de charme van een bestaande woning.
De nieuwe keuken is fris en eigentijds uitgevoerd en vormt een heerlijke plek om te koken en samen te komen. De vernieuwde vloeren zorgen voor een strakke en warme uitstraling in huis.
De badkamer is compleet uitgevoerd en beschikt over: ligbad, douche, toilet en een wastafel
Hier geniet je van comfort en ontspanning na een lange dag.

Ideaal voor gezinnen
De woning ligt in de geliefde wijk Hoograven, een buurt die bekendstaat om haar kindvriendelijke karakter. In de directe omgeving vind je veel openbaar groen, speelveldjes en speeltuinen. Kinderen kunnen hier veilig buiten spelen!

Op slechts 5 minuten afstand ligt winkelcentrum Winkelcentrum Smaragdplein, waar je terecht kunt voor je dagelijkse boodschappen en diverse winkels onderander Lidl, Plus, Bakker en fietsenwinkel etc. Daarnaast ben je binnen korte tijd in het bruisende centrum van Utrecht en zijn uitvalswegen A27 A28 en A12 binnen 5 min bereikbaar. treinstation Vaartscherijn is tevens op fiets afstand.

Kortom:
Een fijn gerenoveerde,  gezinswoning op een fijne, groene en centrale locatie in Utrecht.
Maak snel een afspraak voor een bezichtiging en ontdek zelf de mogelijkheden van Julianaweg 168!

Aanvullende informatie: 
- Bouwjaar 1930
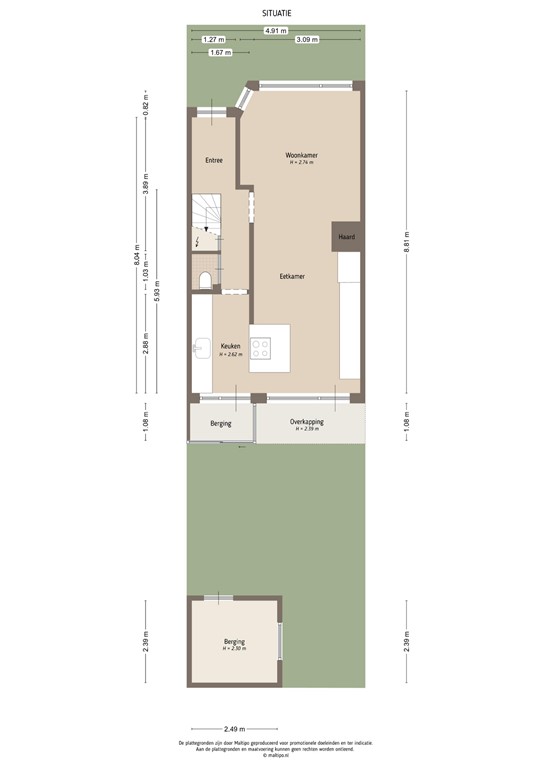
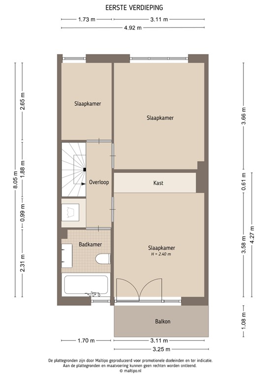
- zie voor indeling de uitgebreide plattegronden.
- Kindvriendelijke, gewilde locatie
- Vrije ligging aan plantsoen 
- Woonoppervlakte circa 106 m² 
- Bruto inhoud ca 355 m³ 
- Perceel oppervlakte 106 m² 

- Toelichtingsclausule NEN2580
De meetinstructie is gebaseerd op de NEN2580. De meetinstructie is bedoeld om een meer eenduidige manier van meten toe te passen voor het geven van een indicatie van de gebruiksoppervlakte. De meetinstructie sluit verschillen in meetuitkomsten niet volledig uit, door bijvoorbeeld interpretatieverschillen, afrondingen of beperkingen bij het uitvoeren van de meting.

Wij hebben alle moeite genomen om de bovenstaande informatie zo compleet en juist mogelijk weer te geven. Fouten of onjuistheden zijn echter niet geheel uit te sluiten. Vertrouw niet enkel op bovenstaande informatie, maar controleer alle informatie zorgvuldig wanneer je overgaat tot een aankoopbeslissing.

Kenmerken