Beschrijving

Op zoek naar een ruim appartement? Op een centrale plek nabij de stad en voorzieningen? En kun jij een gaaf uitzicht waarderen? Dan is dit beslist het ideale object en een bezichtiging waard!

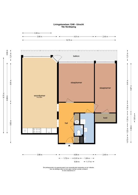
Leuk 3-kamer appartement van 90 m2 op de 16e etage waardoor je een super vet uitzicht hebt over de stad. Het geheel kent o.a. een ruime woonkamer, 2 slaapkamers, groot balkon en maakt onderdeel uit van een actieve en goed functioneerde Vereniging van Eigenaren. 

De ligging in dit gedeelte van Utrecht is erg praktisch. Openbaar vervoer (tram, bus) ligt om de hoek en de winkelvoorzieningen zijn op loopafstand gelegen. Ook op loopafstand van het appartement bevindt zich het mooi aangelegde park Transwijk waar zich onder andere een rosarium, vijvers, een kinderboerderij en een speelplaats bevinden. Het oude centrum van Utrecht is ca. 10 minuten fietsen. Dit is ook een ideale locatie voor bijvoorbeeld je studerende kinderen, met een rechtstreekse verbinding met de sneltram naar de Uithof/Science Park. Met de auto ben je binnen drie minuten op de dichtstbijzijnde uitvalsweg. 

Indeling: 
Begane grond: Afgesloten entree met intercominstallatie en met toegang tot het trappenhuis, lift (er zijn 3 liften in het complex) en de berging. 

16e etage: Entree appartement, hal met meterkast, garderoberuimte, toilet, bergkast en toegang tot de ruime woonkamer met open keuken welke in rechte opstelling gesitueerd is. Vanuit de woonkamer is tevens het balkon toegankelijk. 2 volwaardige slaapkamers waarvan 1 met vaste kast. Badkamer met wasmachine aansluiting, douche en  vaste wastafel.

Aanvullende informatie:

- Bouwjaar 1969
- Gezonde en actieve VVE, servicekosten bedragen 199 euro per maand
- Verwarming middels stadsverwarming
- Energielabel C
- Geen lijst van zaken en vragenlijst aanwezig
- Niet gewoond clausule van toepassing
- Oplevering kan spoedig


Toelichtingsclausule NEN2580 
De meetinstructie is gebaseerd op de NEN2580. De meetinstructie is bedoeld om een meer eenduidige manier van meten toe te passen voor het geven van een indicatie van de gebruiksoppervlakte. De meetinstructie sluit verschillen in meetuitkomsten niet volledig uit, door bijvoorbeeld interpretatieverschillen, afrondingen of beperkingen bij het uitvoeren van de meting. 

Wij hebben alle moeite genomen om de bovenstaande informatie zo compleet en juist mogelijk weer te geven. Fouten of onjuistheden zijn echter niet geheel uit te sluiten. Vertrouw niet enkel op bovenstaande informatie, maar controleer alle informatie zorgvuldig wanneer je overgaat tot een aankoopbeslissing.

Kenmerken