Beschrijving

Energiezuinig wonen in een comfortabel B-label appartement? En heb jij geen zin om te klussen, maar wil je meteen genieten van je eigen thuis? Op een centrale locatie nabij winkels, NS-station en de historische binnenstad? Dan is dit beslist het ideale object en absoluut een bezichtiging waard!

Op een heerlijke plek met uitzicht op veel groen, ligt dit goed onderhouden en ruime driekamer appartement met zonnig balkon welke op het zuiden is georiënteerd. Het appartement is de afgelopen jaren door de huidige bewoners keurig bewoond geweest en derhalve zo goed als instap-klaar. Het geheel is o.a. voorzien van hoogwaardige pvc vloer, strakke afwerking, dubbel glas (geheel HR++) en kunststof kozijnen. De locatie is bijzonder gunstig te noemen op een steenworp afstand van station Overvecht. De historische binnenstad ligt slechts op tien minuten fietsen, en tevens zijn de uitvalswegen goed bereikbaar A27/A12/A28. Een ideaal appartement voor een starter op de woningmarkt of wellicht voor ouders met studerende kinderen. Wordt dit jouw nieuwe thuis?! 

Indeling:
Begane grond: Gezamenlijke entree met brievenbussen, bellentableau en toegang tot de berging. 
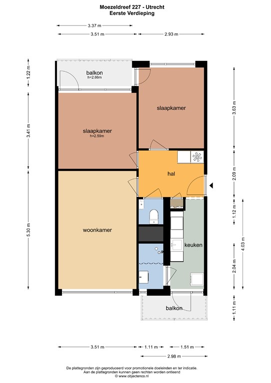
Trapopgang naar 1e Verdieping: Entree/hal, betegeld toilet, woonkamer met mooie laminaat vloer en toegang tot balkon aan de voorzijde, ruime slaapkamer aan de voorzijde met eveneens toegang tot het balkon. Tweede (slaap)kamer aan achterzijde, moderne keuken met enige inbouwapparatuur. via de bijkeuken toegang tot het tweede balkon, neutraal uitgevoerde, kleine badkamer met douche en vaste wastafel. In de onderbouw bevindt zich de eigen, afgesloten berging. 


Aanvullende informatie:

- Woonoppervlakte 60 m2
- 3-kamer appartement met 2-tal balkons en eigen berging 
- Energielabel A
- keurige laminaat vloer
- geen vragenlijst en lijst van zaken. wel incl gordijnen, wasmachine, waskamerkast, 
-  Volledig v.v. dubbel glas HR+++ beglazing.
- Deeluitmakend van een actieve VVE
- Verkoop incl gordijnen, lampen, wasmachine, wasdroger, losse koelkast (gang) en kast in de gang.
- Servicekosten bedragen Circa € 208,- euro per maand excl voorschot,
- Oplevering in overleg


Toelichtingsclausule NEN2580 
De meetinstructie is gebaseerd op de NEN2580. De meetinstructie is bedoeld om een meer eenduidige manier van meten toe te passen voor het geven van een indicatie van de gebruiksoppervlakte. De meetinstructie sluit verschillen in meetuitkomsten niet volledig uit, door bijvoorbeeld interpretatieverschillen, afrondingen of beperkingen bij het uitvoeren van de meting. 

Wij hebben alle moeite genomen om de bovenstaande informatie zo compleet en juist mogelijk weer te geven. Fouten of onjuistheden zijn echter niet geheel uit te sluiten. Vertrouw niet enkel op bovenstaande informatie, maar controleer alle informatie zorgvuldig wanneer je overgaat tot een aankoopbeslissing.

Kenmerken