Beschrijving

Centraal wonen met alle gemakken en voorzieningen in de buurt? Zoek jij een heerlijk, comfortabel en net onderhouden appartement? Met voldoende ruimte, een eigen buitenruimte en goed geïsoleerd? Dan is dit beslist het ideale object en een bezichtiging waard!

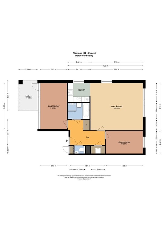
Goed onderhouden ruim en praktisch ingedeeld 3-kamer HOEK appartement met zonnig balkon en berging in de onderbouw in de populaire Tweede Daalsebuurt! Het appartement bevindt zich in een modern appartementencomplex v.v. een liftinstallatie. Via de lift bereik je het portaal op de vierde woonlaag dat slechts met één ander appartement gedeeld wordt. Je komt binnen in een royale hal van waaruit je toegang hebt tot alle vertrekken. De woonkamer is ruim en licht en biedt diverse inrichtingsmogelijkheden. Vanuit de woonkamer heb je, mede door de hoekligging op de 4e verdieping, een vrij en fraai uitzicht over de wijk en het groen. De moderne keuken is in hoekopstelling geplaatst en voorzien van diverse inbouwapparatuur(incl. inductiekookplaat, vaatwasser). Het gehele woongedeelte en de hal is voorzien van een keurig laminaat. Naast de woonkamer bevindt zich een ruime slaapkamer. De badkamer is in het midden van het appartement gesitueerd en voorzien van een ligbad, aparte douche en wastafel. Een tweede ruime slaapkamer bevindt zich aan de voorzijde van de woning welke tevens toegang biedt tot het privacy biedende balkon waar je volop van de zon kunt genieten. Verder beschikt het appartement over een apart toilet en een ruimte voor wasmachine droger. het appartement beschikt over een eigen (fietsen)berging in de onderbouw. Er is voldoende parkeergelegenheid (betaald) op het grote parkeerterrein voor het complex en in de omliggende straten. De omgeving Op een steenworp afstand bevindt zich winkelcentrum De Plantage voor de dagelijkse winkelvoorzieningen. Verder is het appartement centraal gelegen ten opzichte van het Utrechtse stadscentrum, Amsterdamse Straatweg, OV (o.a. Centraal station en station Zuilen) en de uitvalswegen.

Aanvullende informatie:

- Bouwjaar 1995
- Woonoppervlakte 78 m2
- Goed geïsoleerd, energielabel B
- Servicekosten bedragen € 165,25 per maand
- Stadsverwarming 
- Erfpacht eeuwigdurend afgekocht
- Parkeren middels vergunning
- Geen vragenlijst en lijst van zaken aanwezig
- Niet gewoond clausule van toepassing 
- Oplevering in overleg


Toelichtingsclausule NEN2580 
De meetinstructie is gebaseerd op de NEN2580. De meetinstructie is bedoeld om een meer eenduidige manier van meten toe te passen voor het geven van een indicatie van de gebruiksoppervlakte. De meetinstructie sluit verschillen in meetuitkomsten niet volledig uit, door bijvoorbeeld interpretatieverschillen, afrondingen of beperkingen bij het uitvoeren van de meting. 

Wij hebben alle moeite genomen om de bovenstaande informatie zo compleet en juist mogelijk weer te geven. Fouten of onjuistheden zijn echter niet geheel uit te sluiten. Vertrouw niet enkel op bovenstaande informatie, maar controleer alle informatie zorgvuldig wanneer je overgaat tot een aankoopbeslissing.

Kenmerken