| Prijs | € 675.000,- k.k. |
| Type object | Appartement, dubbel benedenhuis |
| Woonoppervlakte | 114 m² |
| Aanvaarding | In overleg |
| Status | Verkocht |
Aanmelding is enkel voor de statistieken, direct verkocht.
| Prijs | € 675.000,- k.k. |
| Status | Verkocht |
| Aanvaarding | In overleg |
| Aangeboden sinds | Maandag 24 november 2025 |
| Type object | Appartement, dubbel benedenhuis |
| Woonlaag | 1e woonlaag |
| Soort bouw | Bestaande bouw |
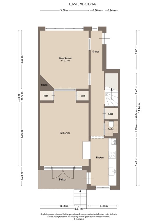
| Woonoppervlakte | 114 m² |
| Inhoud | 400 m³ |
| Oppervlakte externe bergruimte | 6 m² |
| Oppervlakte gebouwgebonden buitenruimte | 10 m² |
| Aantal bouwlagen | 1 (en 1 kelder) |
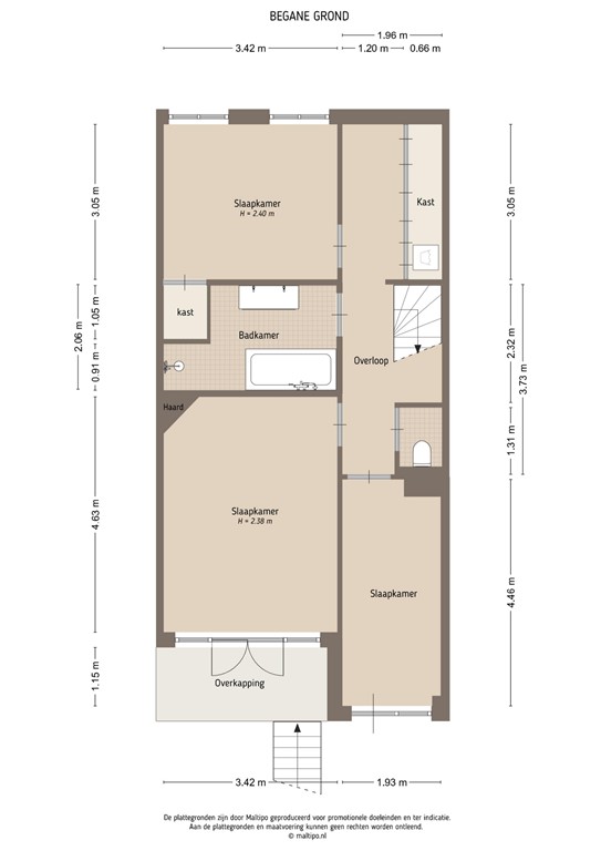
| Aantal kamers | 5 (waarvan 3 slaapkamers) |
| Badkamervoorzieningen | Douche Dubbele wastafel |
| Kadastrale aanduiding | Catharijne B 7164 |
| Omvang | Appartementsrecht of complex |
| Eigendomsituatie | Eigen grond |
| Indexnummer | 4 |