Beschrijving

Centraal wonen vlak bij de binnenstad? Prachtig wonen aan de centraal gelegen Talmalaan? en ook nog eens prachtig uitzicht?

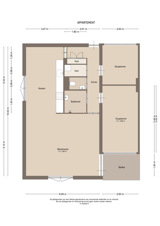
Dit verrassend ruime (92m2) driekamer hoek appartement ligt op een unieke locatie in hartje Utrecht, in de populaire wijk Tuinwijk! De woning bevindt zich op de hoek van het complex en op de vierde en tevens bovenste verdieping, wat zorgt voor veel licht en een levendig uitzicht over de stad.
Het appartement beschikt over een zeer lichte woonkamer, een moderne open keuken, twee slaapkamers, een badkamer en ruim balkon. Het complex is gebouwd in 2012, volledig geïsoleerd en instapklaar. Daarnaast profiteer je van comfortabele voorzieningen zoals een lift, eigen berging en een afgesloten overdekte parkeerplaats!

De ligging is ideaal: de gezellige binnenstad met restaurants, terrassen en winkels ligt op loopafstand. De bus stopt om de hoek, met de auto ben je binnen circa 7 minuten op de snelweg en op de fiets sta je in slechts 10min naast de Dom!
Nieuwsgierig? We vertellen je graag meer en laten je met veel plezier dit pracht appartement zien!

indeling:
Via de hal, die toegang biedt tot alle ruimtes, kom je het appartement binnen. Direct valt de ruimtelijkheid en het prettige licht op. De woonkamer ligt op de bovenste verdieping, waardoor je een prachtig en vrij uitzicht hebt over de stad. Een heerlijke plek om na een drukke werkdag te ontspannen.
Op zonnige dagen stap je vanuit de woonkamer zo het balkon op. Daarnaast is er aan de voorzijde een gezellig zitje waar je bijvoorbeeld kunt genieten van een kop koffie met uitzicht richting de Domtoren.
De moderne open keuken (2012) sluit naadloos aan op de woonkamer. De keuken is compleet uitgerust met onder andere een combi-oven, vaatwasser, koel-vriescombinatie en inductiekookplaat. De eettafel staat direct naast de keuken, waardoor koken en gezellig tafelen moeiteloos samengaan. Dankzij de grote raampartijen geniet je hier eveneens van een mooi uitzicht over Utrecht.

Het appartement beschikt over twee slaapkamers. De grootste slaapkamer is uitstekend geschikt als master bedroom. De tweede kamer, die grenst aan de eerste slaapkamer, is ideaal als werk-, logeer- of hobbykamer, maar kan ook dienen als extra bergruimte.
De badkamer is compact maar praktisch ingericht met een douchecabine, wastafelmeubel en designradiator. In de hal bevindt zich daarnaast een aparte ruimte met de aansluitingen voor wasmachine en droger. Het toilet is separaat.


Op de begane grond van het complex bevindt zich een ruime berging, ideaal voor fietsen, gereedschap of andere spullen. Vanuit de centrale hal heb je direct toegang tot de fietsenstalling en je eigen overdekte, afgesloten parkeerplaats.
Buitenleven
De woning ligt op steenworp afstand van de bruisende Utrechtse binnenstad met haar grachten, winkels, restaurants en terrassen rond de Neude.
Toch even ontsnappen aan de stadse drukte? In de directe omgeving zijn volop mogelijkheden om te sporten en te ontspannen. Zo ligt sportpark Loevenhoutsedijk vlakbij en is ook het Griftpark op korte afstand voor een wandeling, picknick of sportieve activiteit.

Bijzonderheden:
Bouwjaar 2012
Energielabel A
Balkon op het westen en zitje bij de voordeur met uitzicht op de Domtoren
Aangesloten op stadsverwarming en voorzien van mechanische ventilatie
Volledig geïsoleerd en voorzien van dubbele hr++ beglazing
Complex met lift en berging
Eigen overdekte en afgesloten parkeerplaats
Nabij uitvalswegen (Ring Utrecht en A27) en openbaar vervoer
Actieve VvE, bijdrage Circa €230,16- per maand. 
Bijdragen mandelig terrein € 143,15 per jaar
Oplevering in overleg

Kenmerken