Beschrijving

Op een toplocatie aan de rand van de historische binnenstad van Utrecht? En een goed onderhoudsniveau is een fijne bijkomstigheid? Dan is dit beslist het ideale object!

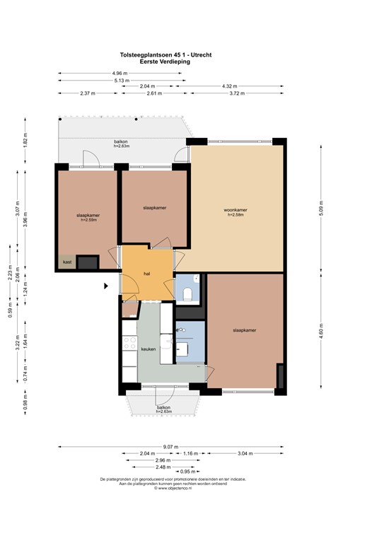
Dit goed afgewerkte 4-kamer appartement biedt o.a. 3 goed bemeten slaapkamers, moderne en neutrale keuken en badkamer, een 2-tal balkons met een gezamenlijke grootte van ruim 12 m2 en een eigen berging in de onderbouw. het appartement is in september 2021 voorzien van een grondige verbouwing o.a.nieuwe keuken, badkamer, cv en groepenkast.

De locatie is bovendien bijzonder fijn te noemen. Het appartement ligt nabij alle wenselijke voorzieningen, zoals: Winkelcentrum Smaragdplein, groenvoorzieningen en het leuke Rotsoord met diverse horecagelegenheden zoals de watertoren “WT Urban Kitchen”, “LE:EN”, "Klein Berlijn" en “Camping Ganspoort”. Openbaar vervoeraansluitingen zoals station Vaartsche Rijn ligt op 5 minuten lopen en Ledig Erf op ongeveer 10 minuten lopen. Met de auto zijn de uitvalswegen eenvoudig aan te rijden en parkeren kan rondom het complex. 

Indeling: 
Begane grond: Centrale entree met bellentableau en brievenbussen. Trapopgang naar de hogere verdiepingen en trap richting de bergingen. 
1e verdieping: entree, hal met garderoberuimte, meterkast en toilet met fonteintje. Doorgang naar de gezellige en ruime woonkamer. 3 volwaardige slaapkamers waarvan er 2 zich aan de voorzijde bevinden en toegang hebben tot een riant balkon. 3e slaapkamer aan achterzijde. Mooie keuken (2021) voorzien van diverse inbouwapparatuur en afgewerkt in lichte en neutrale kleurstellingen met toegang.tot 2e balkon. Een keurige badkamer (2021) met inloopdouche en wastafel tot slot maakt het tot een comfortabel en zeer interessant object op zeer gewilde plek! 

Aanvullende informatie:
Recent gerenoveerd sep 2021
Keuken 2021
CV  2021
meterkast 2021
Badkamer 2021
Bouwjaar 1958
Woonoppervlakte 69 m2
Extra grote buitenruimte, totaal ruim 12 m2
Omzettingsvergunning aanwezig 
beschikbaar vanaf 1 oktober 2023
Topplek nabij binnenstad en station Vaartsche Rijn
Aanvaarding in overleg
Niet gewoond clausule van toepassing
Geen vragenlijst en lijst van zaken aanwezig


Toelichtingsclausule NEN2580 
De meetinstructie is gebaseerd op de NEN2580. De meetinstructie is bedoeld om een meer eenduidige manier van meten toe te passen voor het geven van een indicatie van de gebruiksoppervlakte. De meetinstructie sluit verschillen in meetuitkomsten niet volledig uit, door bijvoorbeeld interpretatieverschillen, afrondingen of beperkingen bij het uitvoeren van de meting. 

Wij hebben alle moeite genomen om de bovenstaande informatie zo compleet en juist mogelijk weer te geven. Fouten of onjuistheden zijn echter niet geheel uit te sluiten. Vertrouw niet enkel op bovenstaande informatie, maar controleer alle informatie zorgvuldig wanneer je overgaat tot een aankoopbeslissing.

Kenmerken