Beschrijving

Luxe, ruimte en duurzaamheid aan het water – instapklaar wonen in de mooiste straat van Utrecht!

Welkom in deze instapklare, luxe en stijlvolle hoekwoning (3-onder-1-kap) in de geliefde, groene wijk Rijnvliet in Utrecht. Een woning waar ruimte, licht, comfort en duurzaamheid perfect samenkomen. Gelegen aan het water, omringd door groen én op fietsafstand van het bruisende stadscentrum van Utrecht.
Deze moderne gezinswoning uit 2021, volledig gasloos, is tot in de puntjes afgewerkt en straalt kwaliteit uit in elk detail. Met een royale woonoppervlakte van ca. 170 m², plafondhoge deuren, een hoogwaardige afwerking en een heerlijke woon-/leefkeuken is dit een huis waar je zó in kunt trekken.
Comfortabel, luxe én energiezuinig.
De woning voldoet aan alle moderne comforteisen:
•	Energielabel A
•	Volledig geïsoleerd met HR++ glas
•	21 zonnepanelen (opbrengst ca. 6.200 kWh per jaar)
•	Vloerverwarming op de begane grond
•	Airconditioning op alle slaapkamers op eerste én tweede verdieping (verwarmen en koelen) van het merk Daikin 
•	Kalkvrij water door waterontharder 
•	Luxe keuken met A-merk inbouwapparatuur 
•	Professioneel aangelegde voor en achtertuin
•	Sfeervolle veranda (3 heaters, plafondventilator en tv- en internetaansluiting)
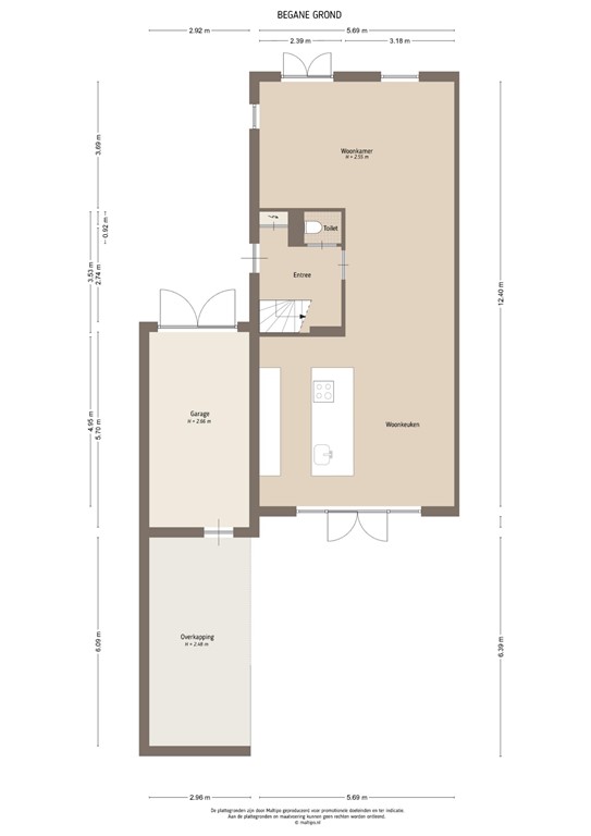
Daarnaast beschikt de woning over een eigen oprit en een aangebouwde garage, goed voor twee privéparkeerplaatsen.

Indeling:

Begane grond:
Via de zij-entree betreed je de woning. De hal geeft toegang tot het moderne toilet, de meterkast, een op maat gemaakte trapkast en de trapopgang. Via de plafondhoge deur kom je in het midden van het huis terecht. 
Aan de voorzijde bevindt zich de ruime en lichte woonkamer met vrij uitzicht over het water. De strak gestucte wanden en plafonds, gecombineerd met de visgraat gelegde houten parketvloer. De gehele benedenverdieping heeft een verlaagd plafond met ingebouwde spots.
De tuingerichte leefkeuken vormt het hart van het huis. Deze royale keuken beschikt over openslaande deuren naar de achtertuin en is uitgevoerd met een kastenwand en kookeiland. De luxe keuken is voorzien van hoogwaardige Siemens- en Bora-inbouwapparatuur, waaronder:
•	5-pits inductiekookplaat met geïntegreerde afzuiging (Bora)
•	Oven en combi-oven (Siemens)
•	Koelkast en vriezer (Siemens)
•	Quooker
•	Vaatwasser (Siemens)
•	Wijnklimaatkast met twee temperaturen (Liebherr)
•	Ingebouwde koffiebonen machine (Siemens) 
De greeploze matzwarte afwerking in combinatie met het wit marmeren werkblad maakt deze keuken tijdloos en sfeervol.

Eerste verdieping:
Ruime overloop met toegang tot drie royale slaapkamers, de badkamer en een separaat toilet. Alle slaapkamers zijn voorzien van moderne/luxe laminaatvloer (Quickstep), airconditioning en tv- en internetaansluiting. 
De master bedroom aan de achterzijde beschikt over een maatwerk inbouwkast met verlichting. De twee slaapkamers aan de voorzijde hebben openslaande deuren met een Frans balkon en vrij uitzicht over de wijk en het water.
De moderne badkamer is compleet uitgerust met:
•	Inloopdouche met glazen wand
•	Ligbad
•	Wastafelmeubel met opzetkommen
•	Designradiator
•	Zwevend badkamermeubel voor extra opbergruimte

Tweede verdieping:
De tweede verdieping biedt verrassend veel ruimte. Hier vind je een praktische waskamer (ook te gebruiken als slaapkamer) met dakraam. In de waskamer staat een op maat gemaakte wasmachine en drogerkast. Daarnaast een royale vierde slaapkamer. Te gebruiken als speel of werkkamer. De achterzijde beschikt over een groot dakkapel, waardoor deze kamer ook nog eenvoudig om te bouwen is naar vijfde slaapkamer. De op maat gemaakte knieschotten zorgen bovendien voor veel extra bergruimte. Ook deze verdieping is voorzien van airconditioning en tv- en internet aansluiting. Tweede badkamer is eenvoudig te realiseren op deze ruime tweede verdieping. 

Tuin:
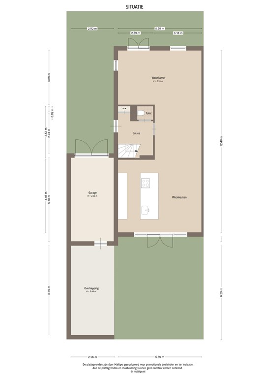
De moderne en ruime achtertuin, gelegen op het noordoosten, is een heerlijke plek om te ontspannen. De sfeervolle veranda met heaters en plafondventilator maakt het mogelijk om het hele jaar door buiten te genieten. Aan de achtergevel hangt een elektrisch zonnescherm (met afstandsbediening) over de gehele breedte van de woning. Naast de ingegraven trampoline met waterafvoer, is er aan de veranda een verlengstuk gerealiseerd voor een schommel, ideaal voor gezinnen met kinderen. De ruime voortuin biedt gelegenheid om te genieten van de avondzon, met uitzicht over de singels van Rijnvliet. 
De complete oprit, voor- en achtertuin inclusief veranda en met zorg geplaatste verlichting, is ontworpen en op maat gebouwd door BG Exclusieve Buitenverblijven. 

Wonen in Rijnvliet,
Rijnvliet is een jonge, duurzame en kindvriendelijke wijk, uniek opgezet rondom een voedselbos. De wijk biedt veel groen, water en rust. Basisscholen, kinderopvang, sportvoorzieningen bevinden zich in het nabijgelegen en het sportpark. Het Leidsche Rijn Centrum ligt op korte afstand en de historische binnenstad van Utrecht bereik je in circa 15 minuten fietsen. Ook de A2, A12 en het openbaar vervoer zijn uitstekend bereikbaar. Recreatieplas Strijkviertel bevind zich op loopafstand voor een wandeling of een frisse duik. 

Bijzonderheden:
•	Hoekwoning (3-onder-1-kap)
•	Woonoppervlakte ca. 170 m²
•	Bouwjaar 2021
•	Instapklaar en hoogwaardig afgewerkt
•	Airconditioning op eerste en tweede verdieping
•	Vloerverwarming begane grond
•	Parkeergelegenheid op eigen terrein voor twee auto’s (oprit + garage)
•	Aangebouwde garage (berging / werkruimte / parkeren) geisoleerd, gestucd en luxe vloer 
•	21 zonnepanelen
•	Energielabel A
•	Groot deel van inboedel/meubels is ter overname 
•	Gehele woning op maat gemaakte horren 
•	Oplevering in overleg, op korte termijn beschikbaar 

Kortom: een moderne, duurzame en luxe gezinswoning op een fantastische locatie in Utrecht. Ben je op zoek naar ruimte, comfort én een groene leefomgeving? Dan is dit jouw nieuwe thuis. Maak snel een afspraak en ervaar het zelf!


Toelichtingsclausule NEN2580
De meetinstructie is gebaseerd op de NEN2580. De meetinstructie is bedoeld om een meer eenduidige manier van meten toe te passen voor het geven van een indicatie van de gebruiksoppervlakte. De meetinstructie sluit verschillen in meetuitkomsten niet volledig uit, door bijvoorbeeld interpretatieverschillen, afrondingen of beperkingen bij het uitvoeren van de meting.

Wij hebben alle moeite genomen om de bovenstaande informatie zo compleet en juist mogelijk weer te geven. Fouten of onjuistheden zijn echter niet geheel uit te sluiten. Vertrouw niet enkel op bovenstaande informatie, maar controleer alle informatie zorgvuldig wanneer je overgaat tot een aankoopbeslissing.

Kenmerken