Beschrijving

Bijzonder luxe wonen in een recent opgeleverde HOEKwoning met optimale isolatie (energielabel A+++)? Kun jij een goed op de zon gelegen achtertuin en een eigen carport + parkeerplaats erg waarderen? En het liefst op een centrale plek met alle gemakken om de hoek? Dan is dit misschien wel jouw nieuwe (t)huis! 

Deze woning is opgeleverd eind 2021, werkelijk van alle gemakken voorzien en kent een zeer hoogwaardig afwerkingsniveau. Zo hebben de huidige eigenaren voor een luxe, complete keuken en hoogwaardig sanitair gekozen evenals fraaie vloer- en wandafwerking. Ook zijn er 11 zonnepanelen aanwezig, airco in de woonkamer en biedt de woning thans 6 slaapkamers en zijn er voorbereidingen getroffen voor een 2e badkamer. Een heerlijke tuin en een carport met eigen parkeerplaats maken het geheel compleet en absoluut een bezichtiging waard!

Deze instapklare gezinswoning is gelegen in de geheel nieuwe, gesloten woonwijk Gouwpark, een wijk met alleen nieuwbouwwoningen. Je woont hier op loopafstand van een winkelcentrum met onder meer een supermarkt (AH XXL), diverse winkels en de apotheek. Hiernaast is ook het Zaans Medisch Centrum gevestigd. Op loopafstand vind je onder meer de Heemtuin en het Burgemeester In 't Veldpark. Kinderopvang en basisschool bevinden zich eveneens op loopafstand, terwijl voortgezet onderwijs lopend of per fiets bereikbaar is. Dat laatste geldt ook voor de vele Zaanse sportfaciliteiten. Het centrum van Zaandam, met een ruime selectie aan winkels en horeca en diverse culturele faciliteiten, is per fiets in 5 minuten bereikbaar. Vanaf daar sta je in iets meer dan tien minuten op Amsterdam Centraal. De bushalte is vlakbij huis en het NS-station Kogerveld is lopend of per fiets eenvoudig te bereiken. Met de auto rij je in een paar minuten naar de snelweg A7 richting Purmerend en Hoorn en, via de aansluitende A8 en de ring A10, richting Amsterdam. Kortom: een topplek met alle gemakken nabij!

Indeling: 
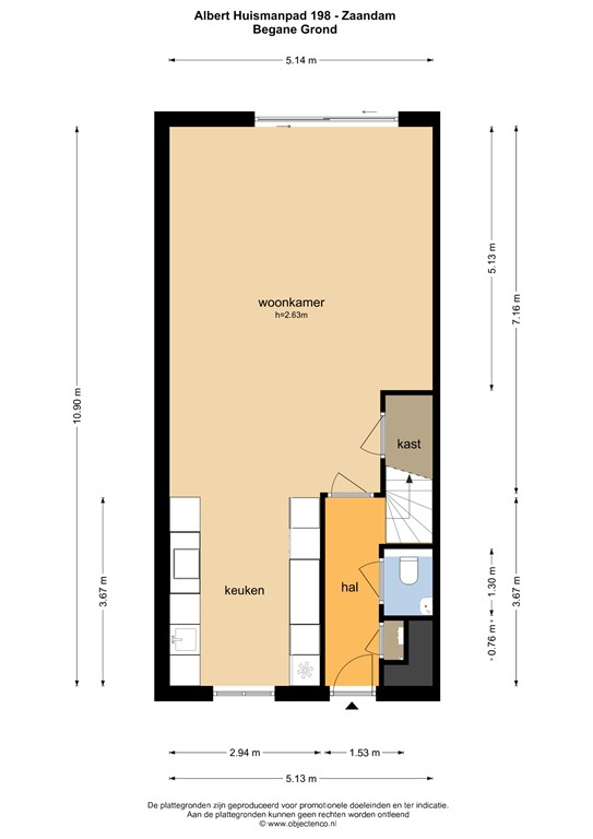
Entree, hal met meterkast, garderoberuimte, luxe toilet, trapopgang en middels stalen deur is er een doorgang naar tuin gerichte woon-eetkamer. De gehele begane grond is voorzien van hoogwaardige visgraten vloer met vloerverwarming, airco, schuifpui naar de tuin en staat in directe verbinding met de open keuken. Deze is aan de voorzijde gesitueerd, fraai 2-delig uitgevoerd en werkelijk van alle gemakken voorzien (o.a. quooker, Bora afzuiging etc). 
1e verdieping: overloop, 3 volwaardige slaapkamers en een zeer smaakvol uitgevoerde badkamer met ruime inloopdouche, dubbel wastafelmeubel en wandcloset. 
Vaste trap naar zolderverdieping met 3 slaapkamers. In 1 kamer zijn reeds voorbereidingen getroffen voor een 2e badkamer. Een technische ruimte met opstelling voor wasmachine, droger, ventilatiesysteem completeert het geheel. 

Aanvullende informatie:

- Woonoppervlakte 155 m2
- Bruto inhoud 550 m3
- Zeer luxe afwerking en turn key
- Achtertuin op het zuiden gesitueerd 
- Carport en parkeerplaats direct achter de woning gelegen
- 11 zonnepanelen aanwezig en gedeeltelijk vloerverwarming
- Verwarming middels stadsverwarming
- Volledig geïsoleerd 
- Energielabel A+++
- Woninggarantie gaat over op nieuwe eigenaar


- Toelichtingsclausule NEN2580 
De meetinstructie is gebaseerd op de NEN2580. De meetinstructie is bedoeld om een meer eenduidige manier van meten toe te passen voor het geven van een indicatie van de gebruiksoppervlakte. De meetinstructie sluit verschillen in meetuitkomsten niet volledig uit, door bijvoorbeeld interpretatieverschillen, afrondingen of beperkingen bij het uitvoeren van de meting. 

Wij hebben alle moeite genomen om de bovenstaande informatie zo compleet en juist mogelijk weer te geven. Fouten of onjuistheden zijn echter niet geheel uit te sluiten. Vertrouw niet enkel op bovenstaande informatie, maar controleer alle informatie zorgvuldig wanneer je overgaat tot een aankoopbeslissing.

Kenmerken