Beschrijving
NB! ONLY REQUESTS BY EMAIL WILL BE PROCESSED. IF INTERESTED, PLEASE CONTACT US BY EMAIL ONLY!!
READ ADDITIONAL TERMS! at the bottom of the text .
LET OP! ENKEL AANVRAGEN PER MAIL WORDEN IN BEHANDELING GENOMEN. BIJ INTERESSE ALLEEN CONTACT VIA DE MAIL!!
LEES AANVULLENDE VOORWAARDEN! onder aan de tekst.
Deze ruime en lichte jaren 1900 benedenwoning is gelegen in de gezellige wijk Lombok. De woning beschikt over 3 kamers, een halfopen keuken en heeft een bruto woonoppervlakte van ca. 96m2!, en dat op steenworp afstand van Utrecht Centraal!
Kortom: Een heerlijk lichte woning op een echte toplocatie!
Indeling:
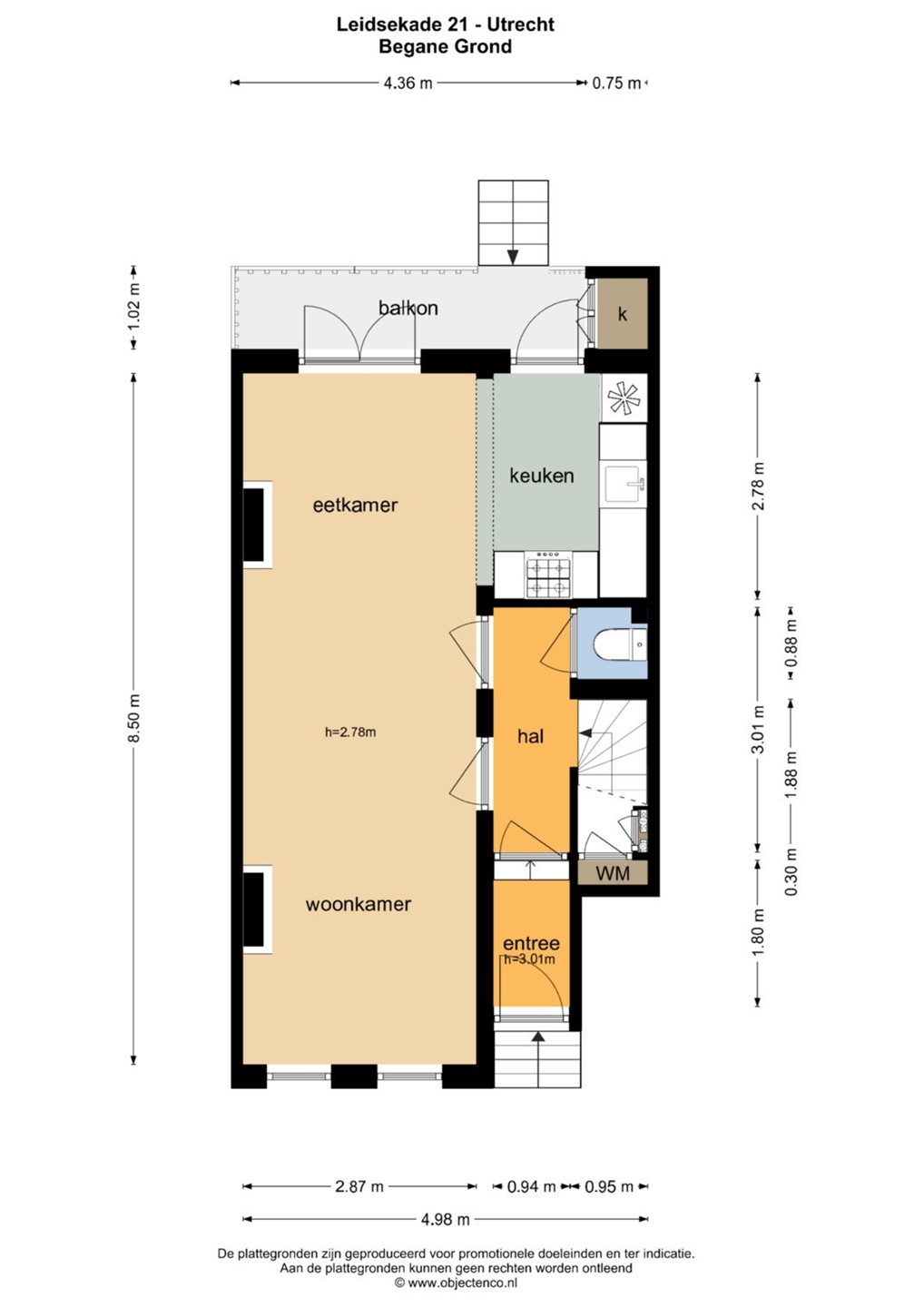
Begane grond:
Entree met trap naar de bel-etage
Eerste verdieping:
Hal met toegang tot de woon-eetkamer met half open keuken, toilet. De doorzon woonkamer is maar liefst ca. 40m2 en biedt daarmee genoeg mogelijkheden voor een ruime zithoek en aparte eethoek. Door de grote raampartijen aan beide zijden van de kamer is het een heerlijk lichte ruimte. De halfopen keuken zorgt voor een nog ruimer gevoel. De keuken beschikt over meerdere inbouwapparatuur.. De hal biedt tevens toegang tot het toilet.
Souterrain:
Via de trap komt u in de hal welke toegang biedt tot de 2 slaapkamers, badkamer en inpandige berging met wasmachine aansluiting.
Buurt:
Lombok is een geliefde wijk onder een breed publiek door de grote hoeveelheid voorzieningen op loopafstand en de binnenstand op 5 minuten fietsen. Zo zitten in de directe omgeving meerdere leuke horecazaken, (eet)winkels en supermarkten. Met een paar minuten bent u op het hippe Ledig Erf of Rotsoort met alles wat deze plekken te bieden hebben. Ook is de woning goed gelegen ten opzichte van de uitvalswegen, zo zit u met enkele minuten op de snelweg (A2, A12 en A27). Maakt u liever gebruik van het OV Utrecht centraal ligt op enkele minuten loopafstand.
Bijzonderheden:
- Startdatum: per direct;
- De huurprijs bedraagt €2.000,00 exclusief nutsvoorzieningen;
- Woningdelers toegestaan, met hoofd huurder.
- Borg: € 4.000,00 (2x de kale huurprijs);
- Inkomenseis: 3 keer de maandhuur (bruto); mag gezamelijk zijn.
- Woning beschikt over een heerijk eigen veranda (5m2) en riante tuin;
- Diplomaten clausule van toepassing.
- Geen huisdieren.
Details:
- Start date: immediately;
- The rental price is €2,000.00 excluding utilities;
- Home sharers allowed, with main tenant.
- Deposit: € 4,000.00 (2x the basic rental price);
- Income requirement: 3 times the monthly rent (gross); may be together.
- House has a lovely private balcony (5m2) and garden;
- No pets.
BIJ INTERESSE
Neem de volgende informatie op in uw email:
Ben je student, in loondienst of zelfstandig ondernemer?
Indien: werkend, voor welk bedrijf? Indien: studerend, welke studie/welke instelling?
De gewenste huurperiode (voorkeur startdatum en verwachte huurperiode)
Aantal bewoners en de relatie onderling (gezin/partners/vrienden)
Bruto jaarinkomen (eventueel ook dat van de partner)
Ondernemer; langer dan 3 jaar.
Kopie legitimatie
IF INTERESTED
Please include the following information in your email:
Are you a student, employed or self-employed?
If: working, for which company? If: studying, which study/institution?
The desired rental period (preferred start date and expected rental period)
Number of residents and the relationship between them (family/partners/friends)
Gross annual income (possibly also that of the partner)
Entrepreneur; longer than 3 years.
Copy of identification