Beschrijving
Nieuwstraat 23B. Instapklaar appartement met zonnig dakterras (14 m2)
Wonen in het gezellige dorpscentrum van Baarn? In een instapklaar, goed geïsoleerd en verrassend ruim appartement? En mag daar ook een zonnig dakterras bij horen? Dan is dit beslist de ideale woning en absoluut een bezichtiging waard!
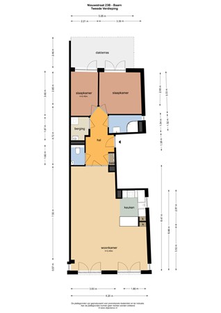
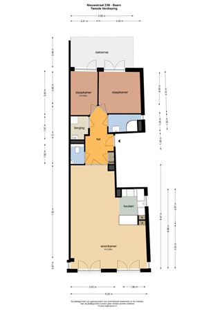
In het centrum gelegen, royaal en licht 3-kamer appartement met een aan de achterzijde, rustig gelegen, zonnig dakterras van ruim 14 m2. Dit appartement, met een woonoppervlakte van 83 m2, ligt op de bovenste woonlaag (dus geen bovenburen) van een kleinschalig complex met 3 appartementen. De ligging is uniek, op loopafstand van het NS-station, bossen en alle winkels onder handbereik. Via de met een video-intercom bewaakte en afgesloten entree, loop je via het trappenhuis naar de tweede verdieping.
Indeling: ruime hal met toilet en fonteintje, bijkeuken/multifunctionele ruimte met c.v.-ketel, mechanische afzuiging en wasmachine/drogeraansluiting. Doorgang naar de zeer ruime L-vormige living met in het zitgedeelte tweemaal openslaande deuren (met Franse balkons met avondzon), ruim eetgedeelte en open keuken met inbouwapparatuur en bar. Aan de achterzijde is het slaapgedeelte: een moderne badkamer met douchecabine, wastafel en voorzien van een raam. Ruime ouderslaapkamer, voorzien van airco, met openslaande deuren naar het royale dakterras. Daarnaast een 2e slaapkamer met deur naar het dakterras. Het gehele appartement is voorzien van een lichte tegelvloer v.v. vloerverwarming en is volledig geïsoleerd. Zeer lichte woning doordat alle leefruimten ramen voor, achter en aan de zijkant hebben. Vrij uitzicht over de centrumbebouwing aan de achterzijde en aan de voorzijde. Op de begane grond is een eigen berging aan de achterzijde aanwezig van ruim 4 m2.
Aanvullende informatie:
- Bouwjaar 2001
- Woonoppervlakte 83 m2 (NEN2580)
- Riant, zonnig dakterras van ruim 14 m2
- Prive berging op begane grond
- Energielabel B
- Centrumlocatie
- Deeluitmakend van actieve en gezonde VVE
- Geen vragenlijst en lijst van zaken aanwezig
- Oplevering in overleg
Toelichtingsclausule NEN2580
De meetinstructie is gebaseerd op de NEN2580. De meetinstructie is bedoeld om een meer eenduidige manier van meten toe te passen voor het geven van een indicatie van de gebruiksoppervlakte. De meetinstructie sluit verschillen in meetuitkomsten niet volledig uit, door bijvoorbeeld interpretatieverschillen, afrondingen of beperkingen bij het uitvoeren van de meting.
Wij hebben alle moeite genomen om de bovenstaande informatie zo compleet en juist mogelijk weer te geven. Fouten of onjuistheden zijn echter niet geheel uit te sluiten. Vertrouw niet enkel op bovenstaande informatie, maar controleer alle informatie zorgvuldig wanneer je overgaat tot een aankoopbeslissing.