Beschrijving
Op zoek naar een ruim gezinshuis met 6 slaapkamers? Altijd al gedroomd van een diepe zonnige tuin met een eigen veranda? Dit alles gecombineerd met een centrale ligging nabij allerlei voorzieningen? Dan is dit beslist het ideale object en een bezichtiging waard!
Deze heerlijke gezinswoning is de afgelopen jaren goed onderhouden en kent een zee aan ruimte. De woning is gelegen aan een rustige en kindvriendelijke laan in de Professoren-buurt. Op korte afstand bevinden zich diverse uitvalswegen, scholen, sportvelden en de heerlijke bossen! Ook het gezellige en uitgebreide centrum is goed aan te fietsen.
Indeling:
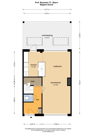
Begane grond: entree, ruime hal met afgesloten garderoberuimte/diepe voorraadkast, meterkast en modern toilet met fontein. Doorgang naar grote woonkamer met aan de achterzijde een open keuken met apparatuur en gezellige bar. Vanuit de keuken loop je zo de veranda op. Deze is over de volle breedte van het huis: de ideale plek om zomer en winter lekker te zitten.
Eerste verdieping: overloop, vier ruime en volwaardige slaapkamers en een badkamer met inloopdouche, tweede toilet en wastafel.
Tweede verdieping: voorzolder met plek voor wasmachine en droger, veel bergruimte en nog eens twee slaapkamers, beiden met dakkapel en veel ruimte.
De woning kent een ruime voortuin en een heerlijke, nog ruimere achtertuin met veranda, vrijstaande stenen schuur en een eigen achterom.
Aanvullende informatie:
- Bouwjaar 1969
- Woonoppervlakte 121 m2
- Tuin op het zuiden
- Energielabel B
- Dubbel glas, spouwmuurisolatie, dakisolatie
- Instapklaar
- Kindvriendelijke locatie
Toelichtingsclausule NEN2580
De meetinstructie is gebaseerd op de NEN2580. De meetinstructie is bedoeld om een meer eenduidige manier van meten toe te passen voor het geven van een indicatie van de gebruiksoppervlakte. De meetinstructie sluit verschillen in meetuitkomsten niet volledig uit, door bijvoorbeeld interpretatieverschillen, afrondingen of beperkingen bij het uitvoeren van de meting.
Wij hebben alle moeite genomen om de bovenstaande informatie zo compleet en juist mogelijk weer te geven. Fouten of onjuistheden zijn echter niet geheel uit te sluiten. Vertrouw niet enkel op bovenstaande informatie, maar controleer alle informatie zorgvuldig wanneer je overgaat tot een aankoopbeslissing.