Beschrijving
Op zoek naar een ruime 30-er jaren gezinswoning? Met een goede tuin, oprit en garage? Op een centrale plek met voorzieningen in de nabijheid? Dan is dit beslist het ideale object en een bezichtiging waard!
Op een geliefde locatie aan een rustige ventweg met ruim plantsoen gelegen, karakteristieke 30er jaren hoekwoning met garage, oprit voor 1 auto, mooie diepe voortuin en een zonnige achtertuin op het zuidoosten.
Deze fijne gezinswoning, waarbij veel stijlkenmerken nog intact zijn, beschikt over 3 goede slaapkamers en een ruime zolderverdieping. Een heerlijk gezinshuis!
Op deze plek is het heel fijn wonen met de Zuiderheide om de hoek en de nabijheid van meerdere basisscholen, winkels en uitvalswegen en toch op slechts 5 minuten fietsen van het centrum en centraal station.
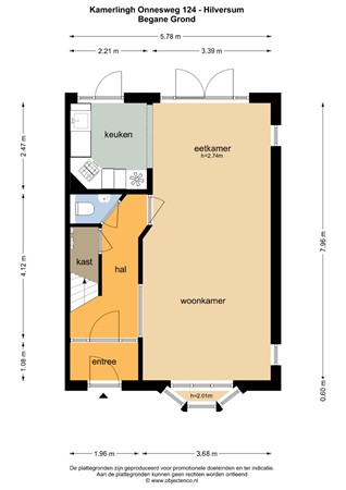
Indeling:
Entree, hal met vestibule/tochtportaal en garderoberuimte. Provisiekast/meterkast, toilet en doorgang naar ruime woon-eetkamer met erker aan de voorzijde en openslaande deuren naar de achtertuin. Open keuken in L-opstelling met diverse inbouwapparatuur en tevens toegang tot de achtertuin.
1e verdieping: overloop, 3 volwaardige slaapkamers waarvan 2 bijzonder ruim van formaat zijn. Badkamer met ligbad, douche, vaste wastafel en toilet.
Vaste trap naar geïsoleerde zolderverdieping met veel bergruimte. Voorzolder met praktische ingebouwde kast+vide met extra bergruimte, wasmachine opstelling en cv installatie.
Aanvullende informatie:
- Bouwjaar 1933
- Woonoppervlakte 119 m2
- Perceeloppervlakte 240 m2
- Energielabel C
- Fraaie voor- en achtertuin met royale oprit
- Ruime schuur/garage
- Centrale ligging
- Ideaal gezinshuis
Toelichtingsclausule NEN2580
De meetinstructie is gebaseerd op de NEN2580. De meetinstructie is bedoeld om een meer eenduidige manier van meten toe te passen voor het geven van een indicatie van de gebruiksoppervlakte. De meetinstructie sluit verschillen in meetuitkomsten niet volledig uit, door bijvoorbeeld interpretatieverschillen, afrondingen of beperkingen bij het uitvoeren van de meting.
Wij hebben alle moeite genomen om de bovenstaande informatie zo compleet en juist mogelijk weer te geven. Fouten of onjuistheden zijn echter niet geheel uit te sluiten. Vertrouw niet enkel op bovenstaande informatie, maar controleer alle informatie zorgvuldig wanneer je overgaat tot een aankoopbeslissing.