Beschrijving
Wonen aan de Zuiderweg
Ruime en duurzame rijwoningen in het hart van Hilversum
Tussen de Zuiderweg en de Lijsterweg verrijst een stijlvol nieuw hofje waar ruim wonen, groen en de levendigheid van Hilversum moeiteloos samenkomen. Op loopafstand van station Hilversum Centraal en omringd door alles wat het Gooi zo aantrekkelijk maakt — van de heidevelden tot aan de gezellige winkelstraten.
Royaal wonen met karakter
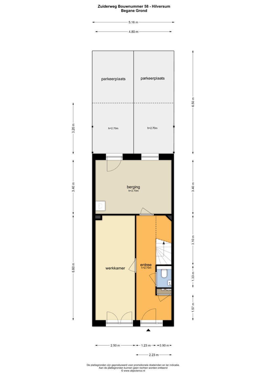
Het project omvat zes tussenwoningen van circa 142 m² en één hoekwoning van circa 154 m², ontworpen door Atelier Dutch. Elke woning beschikt over een eigen tuin, een inpandige berging en twee eigen parkeerplaatsen — een luxe die in deze omgeving niet vanzelfsprekend is.
Kwaliteit die u voelt
Het interieur kenmerkt zich door luxe sanitair van Villeroy & Boch, fraai tegelwerk en vloerverwarming in alle ruimten. De woningen worden zonder keuken opgeleverd, zodat u volledige vrijheid heeft om uw eigen droomkeuken te realiseren. Via de projectleverancier zijn diverse maatwerkopties beschikbaar.
Duurzaam en toekomstbestendig
Alle woningen worden gasloos opgeleverd en voldoen aan de meest actuele energie-eisen. De bouw wordt uitgevoerd door Kelderman Bouw en valt onder de Woningborg Garantie- en Waarborgregeling — voor volledige zekerheid tijdens en na de bouw.
Alles binnen bereik
Station Hilversum Centraal ligt op een steenworp afstand, met directe verbindingen naar Amsterdam, Utrecht, Amersfoort en Almere. De A1, A2, A6 en A27 zijn binnen enkele minuten bereikbaar per auto. De groene buitenruimte, ontworpen door Bureau Lubbers, zorgt ervoor dat thuiskomen elke dag voelt als vakantie.
Kenmerken:
Woningtype 6 tussenwoningen en 1 hoekwoning
Woonoppervlakte ca. 142 m² (tussenwoning) / ca. 154 m² (hoekwoning)
Tuin Eigen tuin bij elke woning
Parkeren 2 eigen parkeerplaatsen per woning
Berging Inpandige berging
Keuken Zonder keuken; standaard aansluitpunten aanwezig
Sanitair Villeroy & Boch
Verwarming Vloerverwarming in alle ruimten
Energie Gasloos, voldoet aan actuele energie-eisen
Oplevering Behangklare wanden, wit spackspuitwerk, zandcementdekvloer
Garantie Woningborg Garantie- en Waarborgregeling
Bouwer Kelderman Bouw
Prijs tussenwoning € 795.000 v.o.n.
Prijs hoekwoning € 865.000 v.o.n.
Start bouw Juni/juli 2026
DISCLAIMER:
Artist impressions, perspectiefbeelden, sfeerbeelden en andere visualisaties die door of namens de ontwikkelaar, verkoper of aannemer zijn of worden gebruikt, zijn uitsluitend bedoeld om een algemene indruk van het project en de beoogde architectonische uitstraling te geven. Aan dergelijke beelden kunnen geen rechten worden ontleend. Deze visualisaties zijn indicatief en kunnen onderdelen bevatten die afwijken van de uiteindelijke uitvoering van het project.
In de artist impressions en andere visualisaties kunnen onder meer afwijkingen voorkomen ten aanzien van onder andere maar niet uitsluitend:
· kleuren en materialen van gevels en daken;
· detaillering van gevels, kozijnen, balkons en installaties;
· maatvoering, positionering en afmetingen van gebouwen en bouwdelen;
· situering van ramen, balkons, buitenruimten en installaties;
· inrichting van de openbare ruimte, parkeerplaatsen, bestrating en groenvoorzieningen;
· omliggende bebouwing en zichtlijnen;
· straatmeubilair, verlichting, voertuigen, personen en overige sfeercomponenten.
Voor de exacte uitvoering van de woningen en het project zijn uitsluitend de contractstukken zoals genoemd in de aannemingsovereenkomst bepalend. Alle afbeeldingen, visualisaties, impressies of andere uitingen die geen onderdeel uitmaken van de in de overeenkomst genoemde contractstukken, maken geen onderdeel uit van de overeenkomst en kunnen derhalve nimmer aanleiding geven tot enige aanspraak jegens de ontwikkelaar, verkoper of aannemer.