Beschrijving
Op één van de mooiste plekken van Hilversum, tussen de Zuiderweg en de Lijsterweg, ontstaan twee bijzondere 2-onder-1-kapwoningen. Verscholen in een nieuw, groen hofje — maar op steenworp afstand van alles wat het leven aangenaam maakt. Van het culturele hart van de stad tot de rust van het Goois Natuurreservaat.
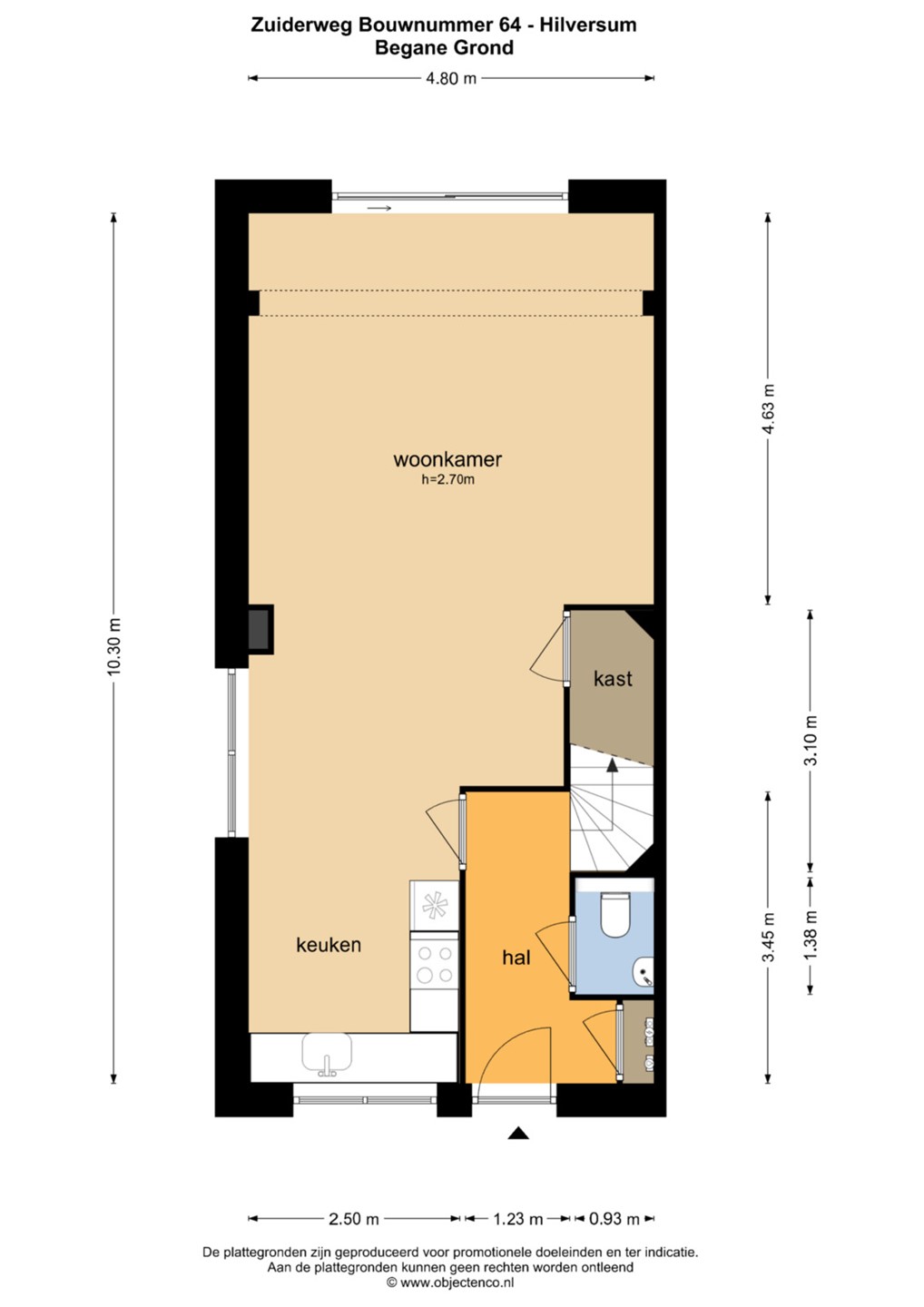
Ruimte om écht te wonen
Met een woonoppervlakte van circa 126 m², een heerlijk zonnige en diepe tuin, een buitenberging en twee eigen parkeerplaatsen bieden deze woningen alles wat u nodig heeft. Eén parkeerplaats grenst direct aan de achtertuin, de tweede bevindt zich centraal op het binnenterrein. Ontworpen door Atelier Dutch, met de karakteristieke aandacht voor licht, ruimte en harmonie.
Tot in de puntjes verzorgd
Het interieur is voorzien van luxe sanitair van Villeroy & Boch en fraai tegelwerk. Alle ruimten beschikken over vloerverwarming. De woningen worden zonder keuken opgeleverd — bewust, zodat u uw eigen keuken geheel naar wens kunt laten ontwerpen. Standaard aansluitpunten zijn aanwezig en via de projectleverancier zijn diverse aanpassingen mogelijk.
Gebouwd voor de toekomst
Gasloos, energiezuinig en gebouwd door Kelderman Bouw volgens alle actuele normen. De Woningborg Garantie- en Waarborgregeling biedt u volledige zekerheid, zowel tijdens de bouw als in de jaren daarna.
De wereld aan uw voeten
Station Hilversum Centraal ligt op loopafstand, met directe treinverbindingen naar Amsterdam, Utrecht, Amersfoort en Almere. Per auto bent u in enkele minuten op de A1, A2, A6 of A27. De groene buitenruimte van het hofje, vormgegeven door Bureau Lubbers, maakt de thuiskomst elke dag bijzonder.
Kenmerken
Woningtype 2-onder-1-kapwoning
Aantal 2 woningen
Woonoppervlakte ca. 126 m²
Tuin Zonnige, diepe eigen tuin met buitenberging
Parkeren 2 eigen parkeerplaatsen (1 aan achtertuin, 1 op binnenterrein)
Keuken Zonder keuken; standaard aansluitpunten aanwezig
Sanitair Villeroy & Boch
Verwarming Vloerverwarming in alle ruimten
Energie Gasloos, voldoet aan actuele energie-eisen
Oplevering Behangklare wanden, wit spackspuitwerk, zandcementdekvloer
Garantie Woningborg Garantie- en Waarborgregeling
Bouwer Kelderman Bouw
Prijs € 895.000 v.o.n.
Start bouw Juni/juli 2026
DISCLAIMER:
Artist impressions, perspectiefbeelden, sfeerbeelden en andere visualisaties die door of namens de ontwikkelaar, verkoper of aannemer zijn of worden gebruikt, zijn uitsluitend bedoeld om een algemene indruk van het project en de beoogde architectonische uitstraling te geven. Aan dergelijke beelden kunnen geen rechten worden ontleend. Deze visualisaties zijn indicatief en kunnen onderdelen bevatten die afwijken van de uiteindelijke uitvoering van het project.
In de artist impressions en andere visualisaties kunnen onder meer afwijkingen voorkomen ten aanzien van onder andere maar niet uitsluitend:
· kleuren en materialen van gevels en daken;
· detaillering van gevels, kozijnen, balkons en installaties;
· maatvoering, positionering en afmetingen van gebouwen en bouwdelen;
· situering van ramen, balkons, buitenruimten en installaties;
· inrichting van de openbare ruimte, parkeerplaatsen, bestrating en groenvoorzieningen;
· omliggende bebouwing en zichtlijnen;
· straatmeubilair, verlichting, voertuigen, personen en overige sfeercomponenten.
Voor de exacte uitvoering van de woningen en het project zijn uitsluitend de contractstukken zoals genoemd in de aannemingsovereenkomst bepalend. Alle afbeeldingen, visualisaties, impressies of andere uitingen die geen onderdeel uitmaken van de in de overeenkomst genoemde contractstukken, maken geen onderdeel uit van de overeenkomst en kunnen derhalve nimmer aanleiding geven tot enige aanspraak jegens de ontwikkelaar, verkoper of aannemer.