Beschrijving
Een woning met heel veel ruimte is datgene wat jij zoekt? In een kindvriendelijke, rustige woonwijk in het groene Maarssen? En een garage is eveneens een absolute must? Dan is dit beslist het ideale object en een bezichtiging waard!
Zeer royale eengezinswoning (dwarskapwoning, 7,50 meter breed!) met voor- en zonnige achtertuin (zuid/oost), houten tuinhuis en een aangebouwde garage. Deze verrassend ruime woning heeft maar liefst 5 slaapkamers, een woonkamer van ruim 40 m2, optimale lichtinval en veel bergruimte. Kortom: een fijn gezinshuis waar wij zeer enthousiast over zijn, jij ook?
De woning ligt in de geliefde wijk Zwanenkamp. Waarom is deze wijk zo geliefd? In de buurt is een klein winkelcentrum voor de dagelijkse boodschappen, scholen op korte afstand, veel speelgelegenheden voor kinderen en de wijk is ruim en groen van opzet. Tel daarbij op de ligging op korte afstand van het grote wijkpark met kinderboerderij, speeltuin en sportgelegenheden. Ook de afstand tot het grote winkelcentrum Bisonspoor en het NS-station is kort. Een fijne woonomgeving! Bereikbaarheid: De centrale ligging van de woning staat garant voor een goede bereikbaarheid van diverse voorzieningen. Maarssen ligt op ca. 25 autominuten van Amsterdam en 10 minuten van Utrecht. Het N.S. station in Maarssen heeft directe verbindingen met Amsterdam en Utrecht.
Indeling:
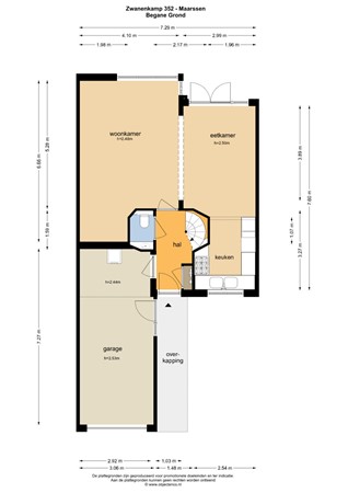
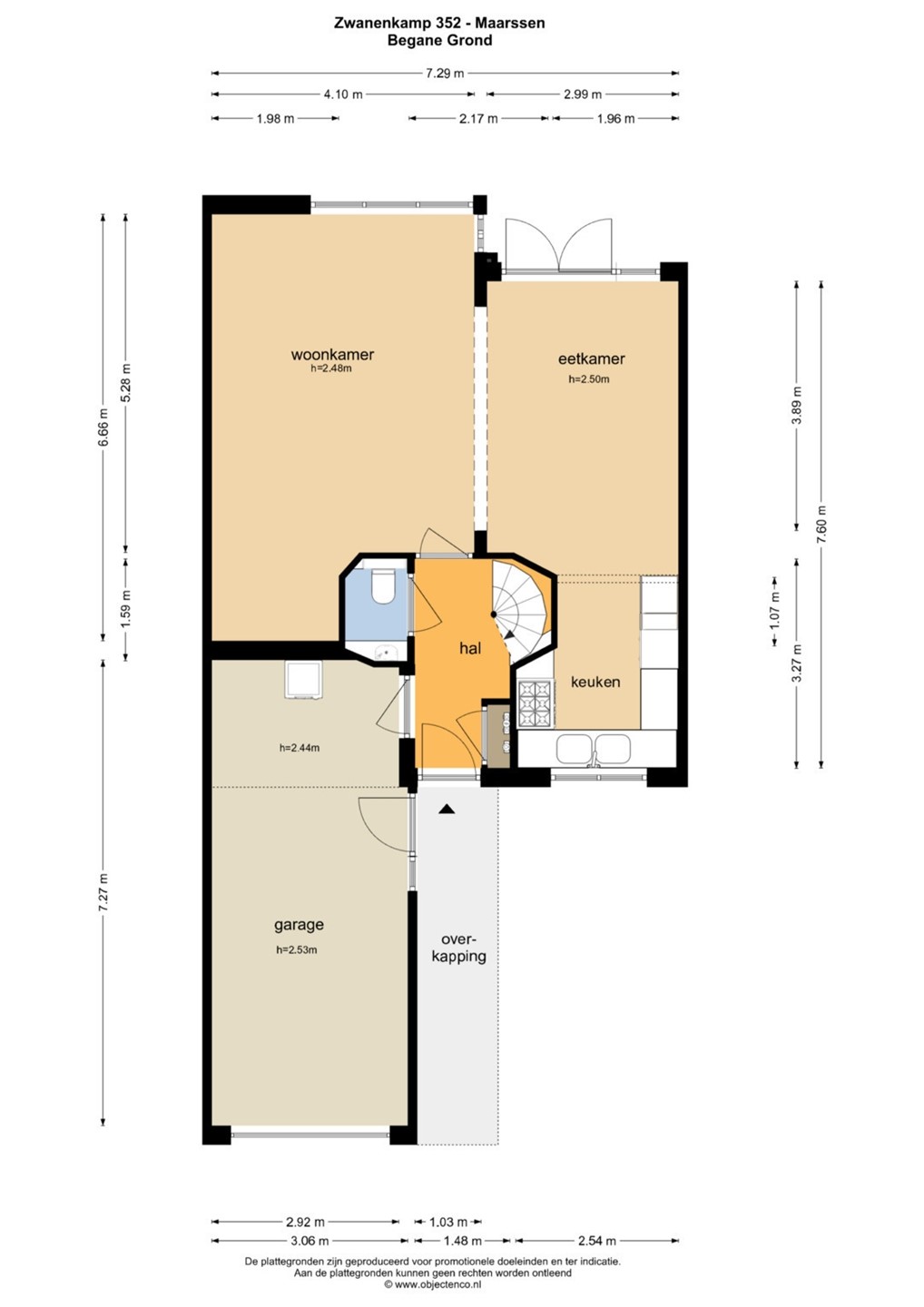
Begane grond: Entree, hal met meterkast, toilet met fonteintje en trapopgang en doorgang naar woonkamer. De woonkamer is ca. 42 m2 heeft een speelse indeling door de U-vorm en is voorzien van laminaatvloer. De keuken is modern en open en voorzien van complete inbouwapparatuur. Tuin: Voortuin met parkeergelegenheid voor 1 auto. Fraai aangelegde achtertuin ca. 7,5 x 11,5 meter diep op het zuid/oosten. Door de ligging van de tuin achter een groenwal geniet je hier van een ruim, groen uitzicht. Een heerlijke zonnige tuin! Garage: Aangebouwde stenen garage met parkeergelegenheid voor 1 auto.
1e verdieping: Overloop met toegang tot de 4 volwaardige en ruim bemeten slaapkamers en de badkamer. Het zijraam geeft veel extra daglicht. Badkamer: Complete ruime badkamer met ligbad, douchecabine, dubbele wastafel met meubel een 2e toilet. 2e verdieping: Via vaste trap bereikbaar. Ruime voorzolder waar de wasmachine, droger en c.v. ketel in een afgesloten bergruimte staan opgesteld. Ruime 5e slaapkamer.
3e verdieping: Bergvliering, bereikbaar via een vlizotrap.
Kortom: voor wie op zoek is naar een ruime eengezinswoning, absoluut een bezichtiging waard!
bijzonderheden,
-Heerlijk gezinswoning
-Laadpaal voor auto aanwezig
-Garage eventueel om te bouwen naar woonruimte
-100m van diverse winkel oa supermarkt, bakker, etc
-14 Zonnenpanelen
-oplevering in overleg.
Toelichtingsclausule NEN2580
De meetinstructie is gebaseerd op de NEN2580. De meetinstructie is bedoeld om een meer eenduidige manier van meten toe te passen voor het geven van een indicatie van de gebruiksoppervlakte. De meetinstructie sluit verschillen in meetuitkomsten niet volledig uit, door bijvoorbeeld interpretatieverschillen, afrondingen of beperkingen bij het uitvoeren van de meting.
Wij hebben alle moeite genomen om de bovenstaande informatie zo compleet en juist mogelijk weer te geven. Fouten of onjuistheden zijn echter niet geheel uit te sluiten. Vertrouw niet enkel op bovenstaande informatie, maar controleer alle informatie zorgvuldig wanneer je overgaat tot een aankoopbeslissing.