Beschrijving
Op zoek naar een ruim 4 kamer appartement? Op een centrale plek nabij de stad en voorzieningen? En kun jij een gaaf uitzicht waarderen? Dan is dit beslist het ideale object en een bezichtiging waard!
pro achting 4 kamer Hoekappartement van maar liefst 105 m2! op de 8e etage waardoor je een super vet uitzicht hebt over de stad. Het geheel kent o.a. een ruime woonkamer, 3 slaapkamers, groot balkon en maakt onderdeel uit van een actieve en goed functioneerde Vereniging van Eigenaren.
De ligging in dit gedeelte van Utrecht is erg praktisch. Openbaar vervoer (tram, bus) ligt om de hoek en de winkelvoorzieningen zijn op loopafstand gelegen. Ook op loopafstand van het appartement bevindt zich het mooi aangelegde park Transwijk waar zich onder andere een rosarium, vijvers, een kinderboerderij en een speelplaats bevinden. Het oude centrum van Utrecht is ca. 10 minuten fietsen. Dit is ook een ideale locatie voor bijvoorbeeld je studerende kinderen, met een rechtstreekse verbinding met de sneltram naar de Uithof/Science Park. Met de auto ben je binnen drie minuten op de dichtstbijzijnde uitvalsweg.
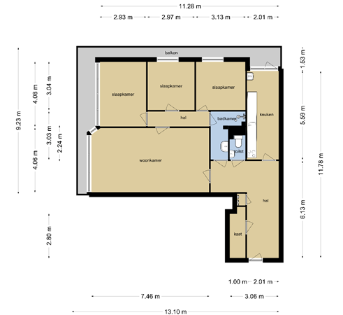
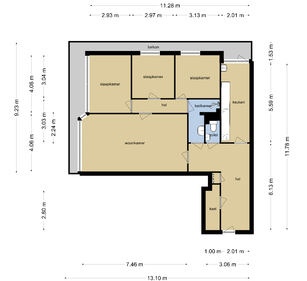
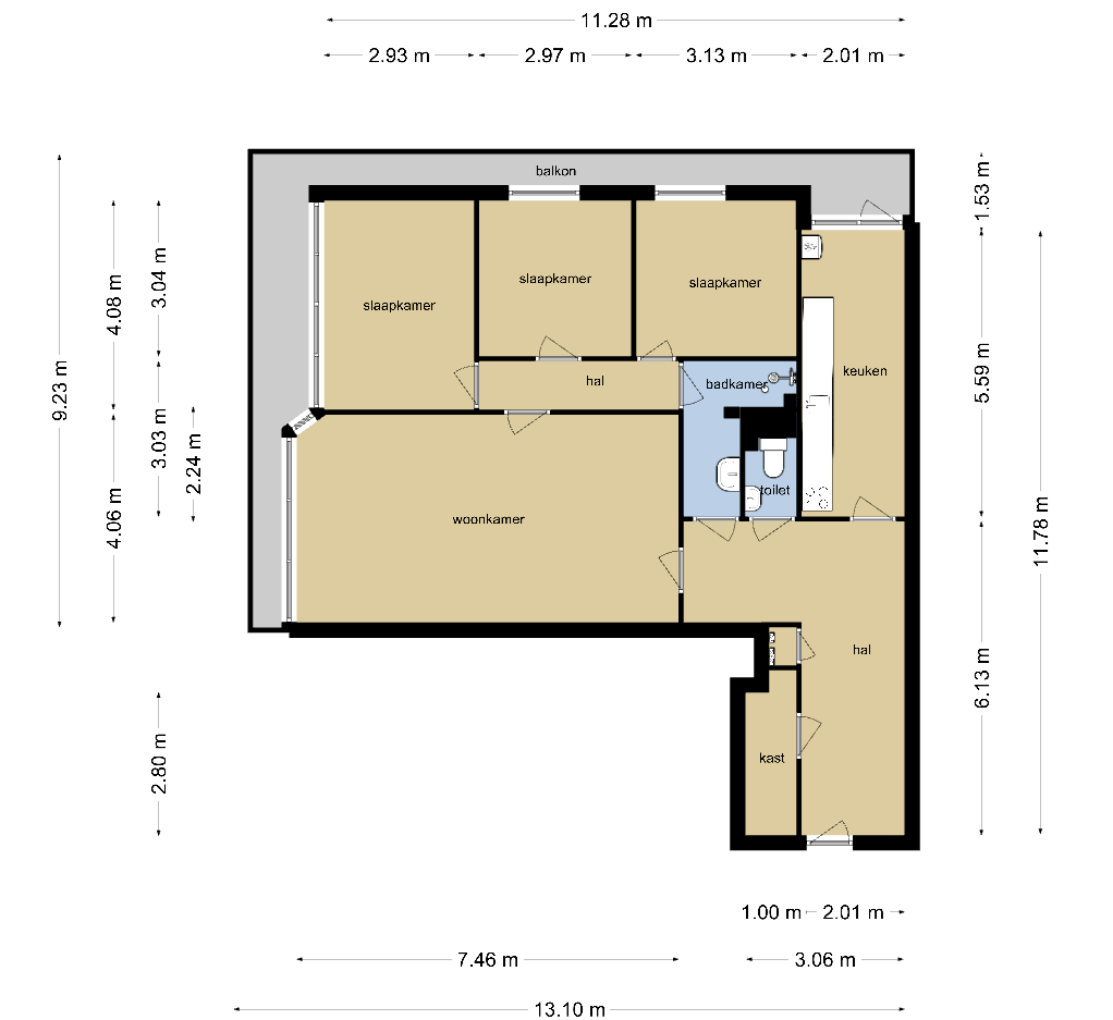
Indeling:
Begane grond: Afgesloten entree met intercominstallatie en met toegang tot het trappenhuis, lift (er zijn 3 liften in het complex) en de berging.
8e etage: Entree appartement, hal met meterkast, garderoberuimte, toilet, bergkast en toegang tot de ruime woonkamer met open keuken welke in rechte opstelling gesitueerd is. Vanuit de woonkamer is tevens het balkon toegankelijk. 3 volwaardige slaapkamers waarvan 1 met vaste kast. Badkamer met wasmachine aansluiting, douche en vaste wastafel.
Aanvullende informatie:
- Bouwjaar 1969
- Gezonde en actieve VVE, servicekosten bedragen totaal icl water €261 euro per maand
- Verwarming middels stadsverwarming
- Geen lijst van zaken en vragenlijst aanwezig
- Niet gewoond clausule van toepassing
- Project Notaris van Grafhorst Notarissen
- Oplevering kan spoedig