Beschrijving
Wonen in 1 van de meest gewilde starterswijken van Utrecht? Hou jij van een authentieke sfeer en karakter? En op zoek naar veel ruimte? En een ontzettend licht huis? Dan is dit beslist het ideale object en een bezichtiging waard!
Deze ruim bemeten (91m2) bovenwoning met eigen buitenruimte (13m2) zit boordevol karaktervolle details. Zo zijn er fraaie hoge plafonds, en prachtig glas in lood aanwezig. Het geheel is de afgelopen jaren keurig bewoond en heeft o.a. de beschikking over een nette keuken en net sanitair. Ook is het gehele pand gedeeltelijk v.v. dubbel glas en maakt het onderdeel uit van een actieve Vereniging van Eigenaren.
De Burg. van Tuyllkade in Zuilen is echt een buurt waar het op dit moment hot en happening is. Net buiten het centrum is dit een plek waar alles samenkomt: supermarkten, restaurants, cafés, parken en ga zo nog maar even door. Het ligt allemaal binnen handbereik! Binnen een paar tellen loop je in het Julianapark en het is met 10 min fietsen het centrum in voor al het fijne wat de binnenstad te bieden heeft. Mocht je toch de stad uit willen, dan is Zuilen uitstekend ontsloten naar uitvalswegen voor de auto of via nabijgelegen OV-haltes richting Utrecht Centraal of buurgemeenten. Kortom super fijne plek en echt een bezichtiging waard!
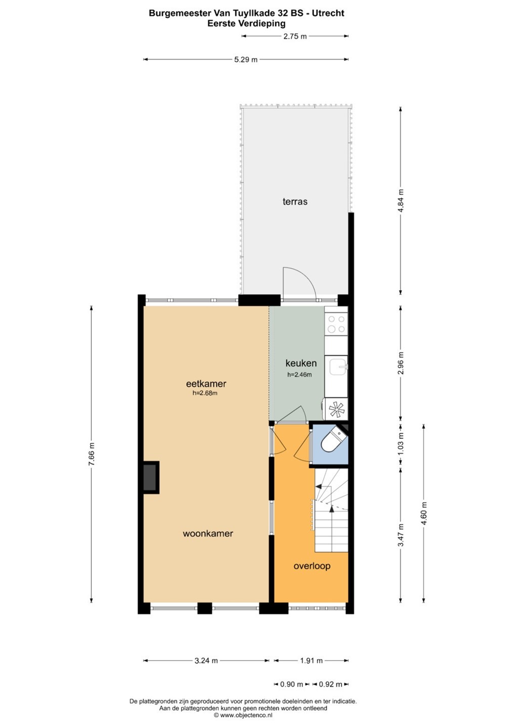
Indeling:
Begane grond: entree, hal met meterkast en trapopgang naar verdieping.
1e verdieping: hal met garderoberuimte, toilet en doorgang naar de fraaie gezellige woonkamer. Aan de voorzijde bevindt zich in L-vorm de ruime living met hoge plafonds. De achterkamer wordt thans al eetkamer gebruikt en staat in directe verbinding met de L-vormige open keuken welke is voorzien van inbouwapparatuur. Ook biedt deze ruimte toegang middels deur naar het terras (gelegen op het westen)
2e verdieping: overloop, 2 in grootte slaapkamers bijde ruim van formaat zijn. In de slaapkamer aan de achterzijde bevindt zich tevens de wasmachine aansluiting en opstelling cv ketel. Moderne en zeer ruime badkamer met fraai bad, inloopdouche wastafel en wandcloset.
Ruime zolder met vaste trap.
Aanvullende informatie:
- Bouwjaar 1930
- Prachtige lichte woning, veel zonlicht!
- Woonoppervlakte 91 m2
- Vele originele details nog aanwezig
- Eigen terras 13m2
- 3 slaapkamers
- Gezonde en actieve VVE, KvK € 125,- per maand inschrijving aanwezig
- Energielabel D
- Geen vragenlijst + lijst van zaken aanwezig
- Niet gewoond clausule van toepassing
- Oplevering in overleg, kan snel.
Toelichtingsclausule NEN2580
De meetinstructie is gebaseerd op de NEN2580. De meetinstructie is bedoeld om een meer eenduidige manier van meten toe te passen voor het geven van een indicatie van de gebruiksoppervlakte. De meetinstructie sluit verschillen in meetuitkomsten niet volledig uit, door bijvoorbeeld interpretatieverschillen, afrondingen of beperkingen bij het uitvoeren van de meting.
Wij hebben alle moeite genomen om de bovenstaande informatie zo compleet en juist mogelijk weer te geven. Fouten of onjuistheden zijn echter niet geheel uit te sluiten. Vertrouw niet enkel op bovenstaande informatie, maar controleer alle informatie zorgvuldig wanneer je overgaat tot een aankoopbeslissing.