Beschrijving
Een heerlijk gezinshuis op een rustige, gewilde locatie? Met voldoende slaapkamers en een heerlijke diepe tuin op het zuiden? En een woning waaraan je de finishing touch nog kunt toevoegen? Dan is dit beslist het ideale object en een bezichtiging waard!
De ligging is erg fijn te noemen. Oog in Al is één van de meest geliefde wijken van Utrecht: groen, rustig en toch dicht bij het stadscentrum. De wijk staat bekend om het dorpse karakter, de vele parkjes en speeltuintjes, plus het populaire Park Oog in Al. Voor je dagelijkse boodschappen loop je zo naar de Händelstraat, waar je een supermarkt, diverse speciaalzaken en gezellige horeca vindt. Binnen 10 minuten fietsen sta je in de binnenstad, op Utrecht Centraal of het nieuwe centrum van Leidsche Rijn (aan de overkant van de Daphne Schippersbrug). Ook de uitvalswegen A2 en A12 zijn snel bereikbaar.
INDELING
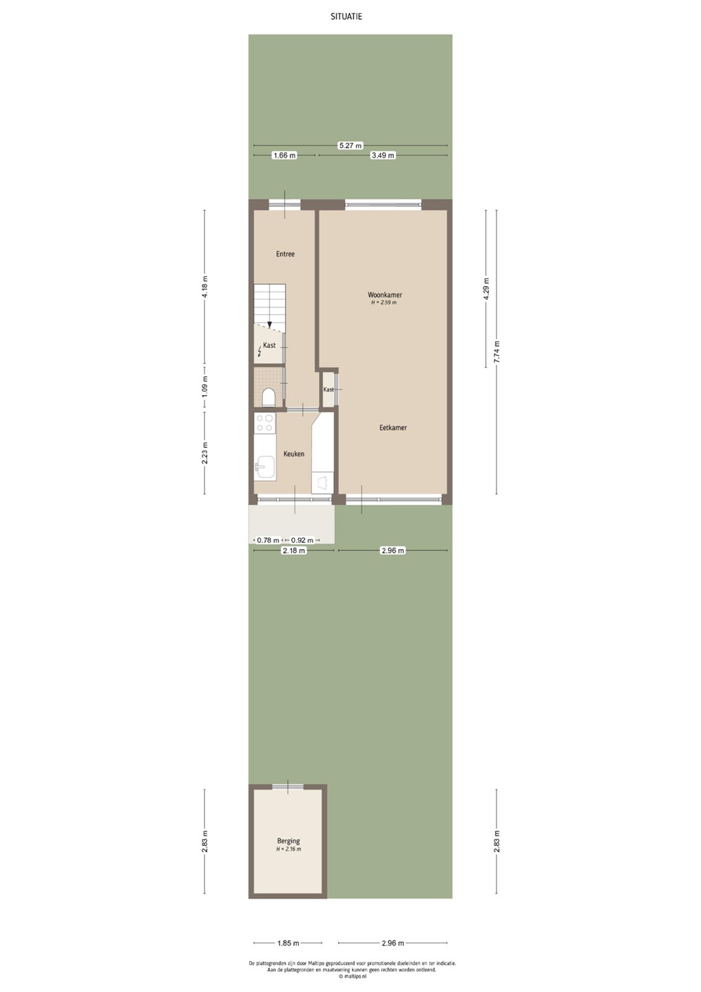
Begane grond: entree, hal, garderoberuimte, meterkast, toilet met fonteintje, trapopgang en doorgang naar dichte keuken met keukenopstelling in 2 elementen en deur naar buiten. Heerlijk lichte woon-eetkamer met mogelijkheid voor open keuken.
1e verdieping: overloop, 3 slaapkamers waarvan 2 ruim te noemen zijn en 1 slaapkamer toegang heeft tot balkon aan de achterzijde. Badkamer met douche en vaste wastafel.
Vaste trap naar zolderverdieping met opstelling cv ketel en mogelijkheid voor slaapkamer(s). Deze ruimte is thans circa 14 m2 en bij plaatsing dakkapel/groot dakraam mogen deze meters ook bij de woonoppervlakte gerekend worden.
Tuin
De woning beschikt over zowel een voor- als achtertuin. De voortuin (ca. 25 m2) is gelegen op het noorden en biedt voldoende ruimte voor meerdere fietsen. De zonnige, groene achtertuin (ca. 67 m2) is gelegen op het zuiden en heeft verschillende mogelijkheden voor gezellige zithoeken in de zon of in de schaduw op een warme zomerdag. Daarnaast vind je hier een stenen berging en een achterom. Kortom, een heerlijke plek om te genieten van rust en ruimte in de stad!
Aanvullende informatie:
- Bouwjaar 1953
- Energielabel C
- Diepe achtertuin met zuidligging
- Woonoppervlakte 96 m2 (inclusief 14 m2 overige inpandige ruimte zolder)
- Parkeren middels vergunning
- Kindvriendelijke locatie
- Geen vragenlijst en lijst van zaken aanwezig
- Niet gewoond clausule van toepassing
Toelichtingsclausule NEN2580
De meetinstructie is gebaseerd op de NEN2580. De meetinstructie is bedoeld om een meer eenduidige manier van meten toe te passen voor het geven van een indicatie van de gebruiksoppervlakte. De meetinstructie sluit verschillen in meetuitkomsten niet volledig uit, door bijvoorbeeld interpretatieverschillen, afrondingen of beperkingen bij het uitvoeren van de meting.
Wij hebben alle moeite genomen om de bovenstaande informatie zo compleet en juist mogelijk weer te geven. Fouten of onjuistheden zijn echter niet geheel uit te sluiten. Vertrouw niet enkel op bovenstaande informatie, maar controleer alle informatie zorgvuldig wanneer je overgaat tot een aankoopbeslissing.