Beschrijving
Ben jij op zoek naar woongenot gecombineerd met een hoog afwerkingsniveau en sfeer? Op een zeer gewilde plek met alle gemakken in de nabije omgeving? Dan is deze fraaie, karakteristieke middenwoning met erker en zonnige achtertuin met achterom absoluut een bezichtiging waard!
De woning is gelegen aan een rustige, maar brede straat in de geliefde wijk “Oog in Al”. Licht en afwerking met oog voor detail kenmerken de woning. Deze heerlijke gezinswoning is volledig gerenoveerd met behoud van details zoals glas-in-lood en paneeldeuren en plafondlijsten. Voorzien van verwarming middels cv.-ketel, gestuukte wanden, dubbel glas, luxe inbouwkeuken en badkamer, 2 dakkapellen etc. Oog in Al is erg populair bij jonge gezinnen die de voorzieningen van de stad willen combineren met een beschutte leefomgeving. Voorzieningen als speeltuinen, scholen, openbaar vervoer, park “Oog in Al”, de uitvalswegen A2 en A12, en winkels en restaurants zijn in de directe nabijheid gelegen. Het centrum en centraal station liggen op slechts 10 minuten fietsafstand. Tijdens een bezichtiging kun je de rest van de gemakken en luxe van de woning aanschouwen. Wordt dit nieuwe huis jouw thuis!?
Indeling:
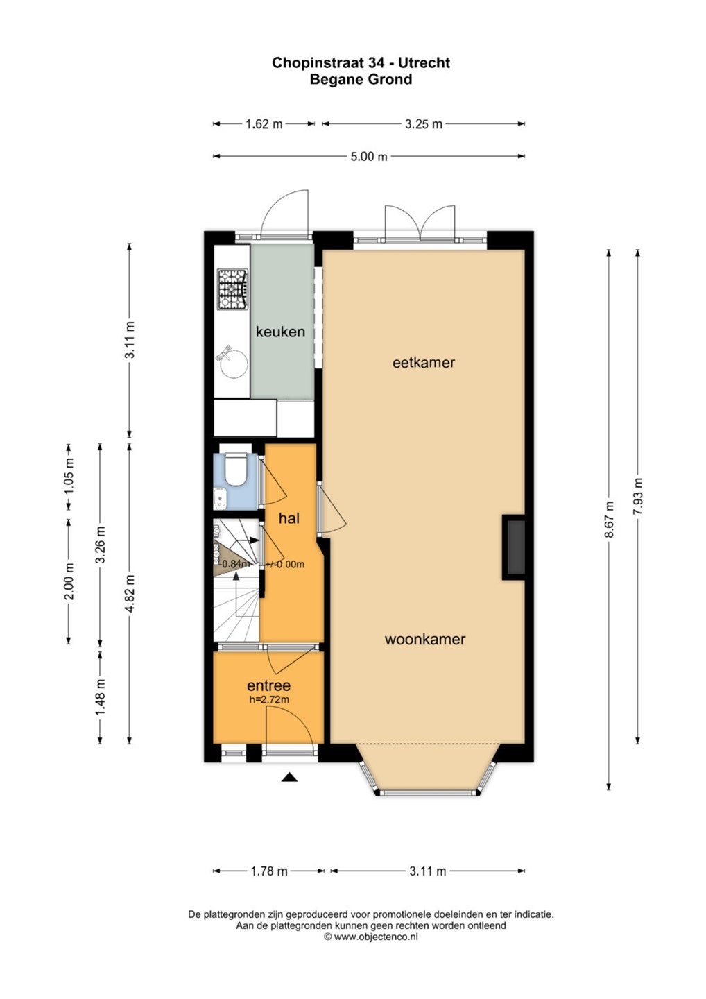
Begane grond: Entree/hal met tochtportaal, hangend toilet met fontein en kelderkast. Lichte en fraaie woonkamer met erker en aan de achterzijde openslaande deuren met toegang tot de zonnige achtertuin, gelegen op het zuid-westen. Moderne half open inbouwkeuken voorzien van complete inbouwapparatuur en gesitueerd in L-opstelling. De begane grond is voorzien van houten vloerdelen. 1e verdieping: Overloop, 2 ruime slaapkamers (voorheen 3) waarvan 1 kamer toegang heeft tot het balkon en ruime, ingebouwde kastwand. Tevens voorzien van prettige studiehoek, Separaat toilet met fontein. Moderne volledig betegelde badkamer voorzien van inloopdouche, vaste wastafel en designradiator. De verdieping is evenals de begane grond voorzien van houten vloerdelen. 2e verdieping: Voorzolder met knieschotten, toegang tot de bergvliering en opstelplaats voor wasmachine aansluiting. Hier zijn 2 volwaardige slaapkamers gerealiseerd. Zowel aan de voor- als achterzijde is een dakkapel aanwezig.
Aanvullende informatie:
- Bouwjaar 1935
- Cv ketel 2011
- Energielabel C
- Woonoppervlakte 106 m2
- Goed onderhouden en zo te betrekken
- 5 slaapkamers
- Vele originele details nog aanwezig
- Parkeren voor de deur
- Zonnige achtertuin met achterom zuid West
Toelichtingsclausule NEN2580
De meetinstructie is gebaseerd op de NEN2580. De meetinstructie is bedoeld om een meer eenduidige manier van meten toe te passen voor het geven van een indicatie van de gebruiksoppervlakte. De meetinstructie sluit verschillen in meetuitkomsten niet volledig uit, door bijvoorbeeld interpretatieverschillen, afrondingen of beperkingen bij het uitvoeren van de meting.
Wij hebben alle moeite genomen om de bovenstaande informatie zo compleet en juist mogelijk weer te geven. Fouten of onjuistheden zijn echter niet geheel uit te sluiten. Vertrouw niet enkel op bovenstaande informatie, maar controleer alle informatie zorgvuldig wanneer je overgaat tot een aankoopbeslissing.