Beschrijving
Sfeervolle en ruime drive-in woning in geliefd Tuindorp-Oost aan De Vooysplantsoen 58, Utrecht
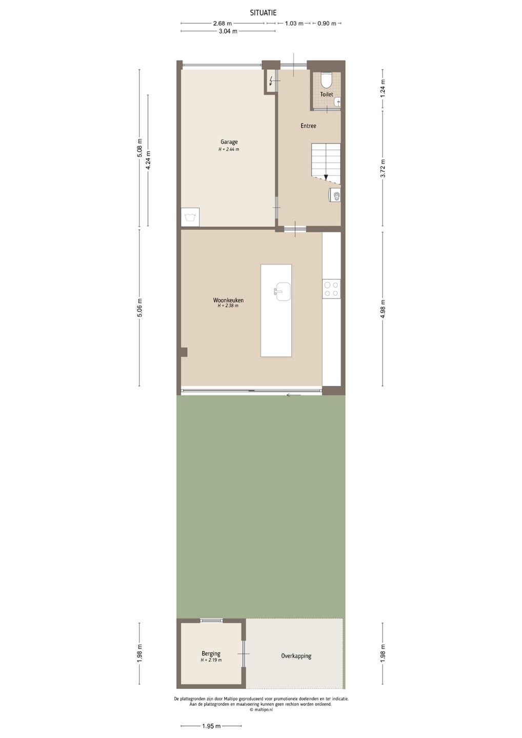
Welkom bij deze royale drive-in woning van maar liefst 146 m² aan het kindvriendelijke De Vooysplantsoen in het populaire Tuindorp-Oost. Een ideale woonplek voor gezinnen die op zoek zijn naar ruimte, comfort en een rustige groene omgeving, terwijl alle voorzieningen binnen handbereik liggen. Op loopafstand vind je winkelcentrum De Gaard, scholen, speeltuinen en diverse sportfaciliteiten.
Indeling:
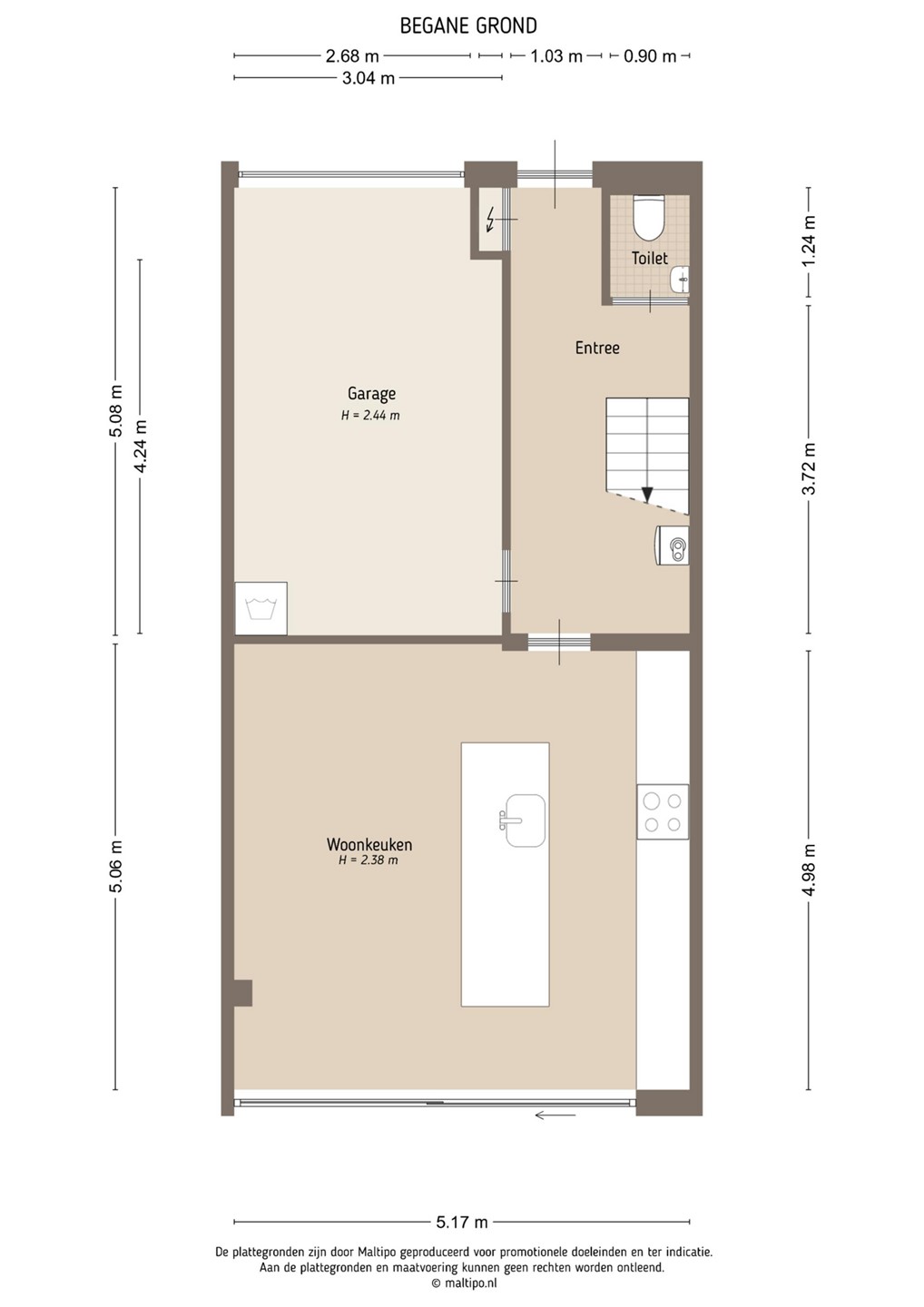
Begane grond:
Via de entree is er toegang tot de ruime moderne keuken en garage die ook als leefruimte tegemoet kan worden. Deze lichte leefkeuken met kookeiland (2019) en voorzien van vloerverwarming vormt het hart van het huis: dankzij de grote glazen pui aan de achterzijde komt er volop daglicht binnen en sta je direct in contact met de zonnige tuin. Een heerlijke plek voor lange ontbijtsessies of etentjes met vrienden.
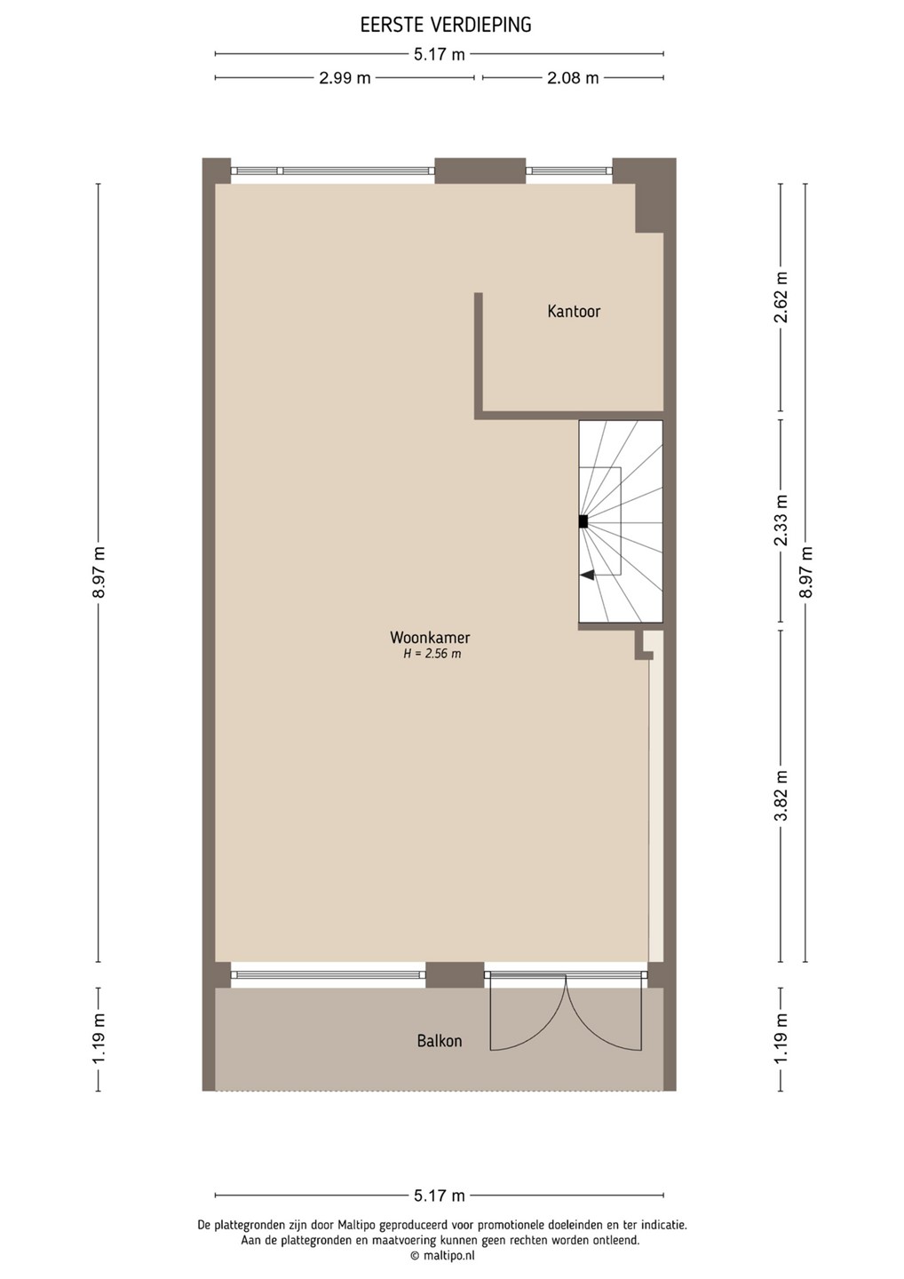
Eerste verdieping
Hier bevindt zich de royale woonkamer met toegang tot een sfeervol balkon. Dankzij de prettige lichtinval voelt de living ruim en warm aan. Deze verdieping biedt bovendien een fijne thuiswerkplek, ideaal voor wie vanuit huis werkt.
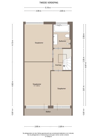
Tweede verdieping vind je drie ruime slaapkamers en een net gerenoveerde badkamer (2024) met oa ligbad, inloopdouche. 2e toilet en wastafels. De kamers zijn stuk voor stuk licht en praktisch ingedeeld — perfect voor een (groeiend) gezin!
Locatie
De woning ligt aan een rustig pleintje, waar kinderen veilig kunnen spelen. De omgeving is groen en verkeersluw, ideaal voor jonge gezinnen. Daarnaast ben je met de fiets binnen enkele minuten in het centrum van Utrecht of bij het Griftpark.
Kortom: een ruime en lichte gezinswoning op een toplocatie in Tuindorp-Oost, met volop mogelijkheden en alle denkbare voorzieningen in de buurt. Kom snel kijken en laat je verrassen door de ruimte en sfeer van deze fijne woning!
Bijzonderheden.
-Perfect familie huis
-16 zonnepanelen
-Keuken en uitbouw 2019
-Badkamer 2024
-Verwarming dmv cv ketel 2025
-10 min fietsen naar de Dom
-Steenworp afstand van winkel centrum de Gaard.
-Zeer veel privacy door de vrije ligging van de tuin
-Oplevering in overleg