Beschrijving
Wonen op een heerlijke plek in Tuindorp? Met een royale woonoppervlakte van ca. 140 m² en een hoogwaardig afwerkingsniveau? Dan is dit jouw kans! Deze jaren ’30 woning is beslist een bezichtiging waard!
De ligging is ideaal: midden in het hart van de geliefde wijk Tuindorp. Deze groene en kindvriendelijke buurt staat bekend om haar ruime opzet, diverse speeltuinen en de nabijheid van meerdere parken. Met de fiets of te voet ben je zó in het centrum van Utrecht, en binnen vijf minuten rijd je met de auto de ring op. Ook het NS-station ligt op slechts vier minuten loopafstand. Voor de dagelijkse boodschappen vind je winkelcentrum De Gaard om de hoek, met naast een grote supermarkt ook tal van speciaalzaken en horeca. In de buurt liggen bovendien diverse basisscholen (OBS Tuindorp, Regenboogschool, Paulusschool) en middelbare scholen (o.a. Rietveld College).
Deze uitstekend onderhouden en gemoderniseerde jaren ’30 woning biedt veel ruimte, licht en comfort. Met een sfeervolle uitbouw, maar liefst vijf slaapkamers, en twee luxe badkamers is dit een ideaal gezinshuis. De diepe achtertuin op het westen maakt het geheel compleet!
Indeling:
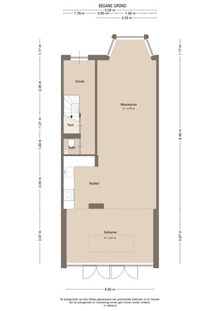
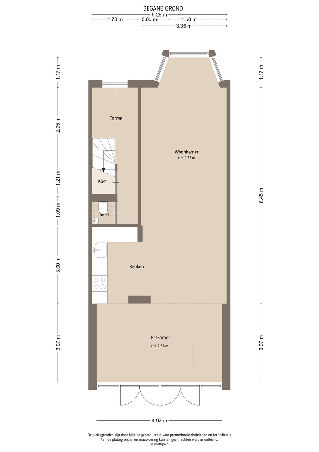
Begane grond:
Entree, ruime hal met toilet en fonteintje. Vanuit de hal stap je de lichte woonkamer in, voorzien van erker en doorloop naar de royale open leefkeuken. De keuken is uitgerust met een dik aanrechtblad en diverse inbouwapparatuur (spoelbak, kookplaat, afzuigkap, vaatwasser en combi-oven). Via de hoge openslaande deuren bereik je de zonnige achtertuin, gelegen op het westen en voorzien van een praktische berging.
Eerste verdieping:
Overloop, luxe badkamer met dubbele wastafel, ligbad, toilet en regendouche. Drie slaapkamers, waarvan twee aan de voorzijde. De slaapkamer aan de achterzijde beschikt over een ruim balkon over de volle breedte van de woning.
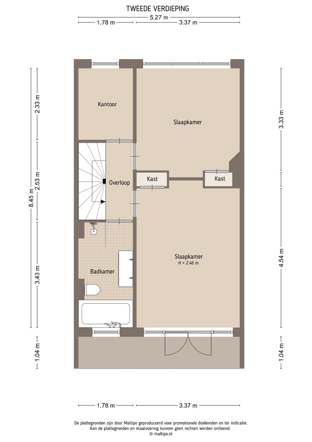
Tweede verdieping:
Dankzij twee grote dakkapellen is dit een bijzonder lichte verdieping. Hier vind je twee slaapkamers, beide voorzien van airconditioning en extra bergruimte achter de knieschotten. De tweede badkamer is ruim opgezet en luxe uitgevoerd, met onder meer aansluitingen voor was- en droogmachine. Vanuit de voorste slaapkamer is via een vaste trap de ruime vliering bereikbaar – ideaal als opslagruimte, speelzolder of logeerruimte.
Bijzonderheden:
• Bouwjaar 1934
• Woonoppervlakte ca. 140 m²
• Uitbouw en beide badkamers gerealiseerd in 2021
• Twee luxe badkamers
• Energielabel B
• Verwarming middels cv-ketel (2021)
• Voorzien van 10 zonnepanelen (2022)
• Gehele woning voorzien van houten parketvloer
• Airconditioning op de tweede verdieping (2021)
• Diepe achtertuin op het westen
• Gewild en kindvriendelijk Tuindorp
Een heerlijk gezinshuis op een toplocatie – maak snel een afspraak voor een bezichtiging!
Toelichtingsclausule NEN2580
De meetinstructie is gebaseerd op de NEN2580. De meetinstructie is bedoeld om een meer eenduidige manier van meten toe te passen voor het geven van een indicatie van de gebruiksoppervlakte. De meetinstructie sluit verschillen in meetuitkomsten niet volledig uit, door bijvoorbeeld interpretatieverschillen, afrondingen of beperkingen bij het uitvoeren van de meting.
Wij hebben alle moeite genomen om de bovenstaande informatie zo compleet en juist mogelijk weer te geven. Fouten of onjuistheden zijn echter niet geheel uit te sluiten. Vertrouw niet enkel op bovenstaande informatie, maar controleer alle informatie zorgvuldig wanneer je overgaat tot een aankoopbeslissing.