Beschrijving
Hoe fijn is wonen op de Griftstraat? Stel je eens voor: ’s Ochtends word je wakker op zolder, waar de robuuste houten balken meteen voor een vakantiehuisje gevoel zorgen. Eenmaal beneden zet je de openslaande deuren naar de tuin open, maak je een ontbijtje in de moderne leefkeuken en dit eet je op in de zonnige, groene achtertuin. Wonen op de ruime en lichte Griftstraat 16 is heerlijk, je bent hier in het hart van het knusse Wittevrouwen. Een van de mooiste en meest gezellige wijken van Utrecht. Maar tegelijkertijd kun je ook zo naar het centrum wandelen of een rondje maken door het Griftpark. Wanneer je terugkomt van je wandeling kun je zomers heerlijk buiten zitten op het dakterras, waar je tot zonsondergang nog kan genieten van de laatste zonnestralen. Dit is zo'n woning waar prachtige oude details nog steeds aanwezig zijn, waardoor de charme van het pand bewaard is gebleven, maar tegelijkertijd is het van alle gemakken voorzien zoals een nieuwe badkamer en heerlijke uitbouw waardoor een fijne, ruime woonkamer is ontstaan. Comfort en charme in één woning, met genoeg slaapkamers (voor kinderkamer(s) of een kantoor), op een toplocatie in Utrecht. Wat wil je nog meer?
Verbouwingen / onderhoud aan de Griftstraat 16
Nieuwe CV ketel: 2021 (laatste onderhoud april 2023)
Gehele huis is dubbel glas
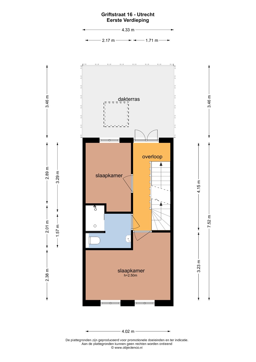
Deuren naar dakterras - Eind 2021 geplaatst
Gevelreining achter - Eind 2021
Voordeur buiten geschilderd - Eind 2021
Kozijnen voor en achter - Juli 2020
Nieuwe keuken met Bora afzuiging inductie kookplaat - Juli 2020
Nieuwe wc beneden - Juni 2020
Uitbouw - Juni 2020 (alle ramen & deuren achter zijn hr++ glas)
Dakraam met plat glas - Juni 2020
Dakterras - Juni 2020
Nieuwe trap naar zolder - Juni 2017
Nieuwe badkamer boven - Juni 2017
Leuke info:
Maar liefst bruto 125m2!
Mooie, hoge plafonds wat voor een ruimtelijk gevoel zorgt (3,10 m hoog)
Moderne leefkeuken met marmerlook blad en bora afzuiging & inductie kookplaat
Licht huis, door de grote ramen is er veel daglicht
Originele houten vloeren
In de lente & zomer veel zon in de achtertuin
Dakterras met avondzon
Recent gerenoveerd met behoud van oude details
Nieuwe badkamer, toilet en keuken
Fijne buurt met alle gemakken (supermarkt, cafeetjes, park etc.) op loopafstand
Drie slaapkamers, dus veel ruimte voor een kinderkamers, kantoor of kleedkamers
Geheel glad gestuukte wanden en plafonds
Originele paneeldeuren
Mogelijkheid tot 2 slaapkamers op de zolderverdieping
Erfpacht, canon eeuwigdurend afgekocht