Beschrijving
Hofstraat 14 – Utrecht | Modern wonen in geliefd Oudwijk!
Welkom aan de Hofstraat 14: een prachtig modern afgewerkt huis op een toplocatie in het populaire Oudwijk. Deze woning combineert stijl, comfort en een uitstekende ligging op unieke wijze. Een plek waar je zó kunt intrekken.
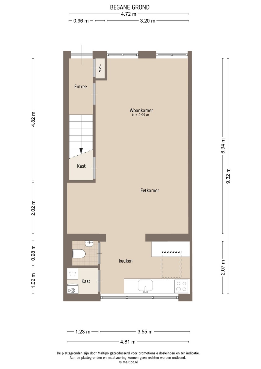
Bij binnenkomst valt direct het hoge afwerkingsniveau op. De begane grond is voorzien van een elegante visgraatvloer, wat zorgt voor een warme en luxe uitstraling. De strakke afwerking en moderne details maken dit huis helemaal van nu.
De woning beschikt over twee ruime slaapkamers en een moderne badkamer met een fraaie inloopdouche. Als absolute eyecatcher zijn er maar liefst twee dakterrassen: hier geniet je in alle rust van de zon, een goed glas wijn of een ontspannen moment buiten – midden in de stad.
Wonen in Oudwijk:
De Hofstraat ligt in de prachtige en rustige wijk Oudwijk, ideaal gesitueerd tussen het Wilhelminapark en de Burgemeester Reigerstraat. Voor dagelijkse boodschappen wandel je binnen 5 minuten naar de Albert Heijn, de slager of de bakker. Ook op culinair gebied zit je hier perfect, met onder andere restaurant Wilhelminapark in het park en hotspots als Buurten en diverse winkels om de hoek.
Daarnaast fiets je in circa 10 minuten naar Utrecht Centraal en woon je aan de rand van de binnenstad, waardoor het centrum van Utrecht op loopafstand ligt.
Kortom: een modern, instapklaar huis met veel buitenruimte, gelegen op een van de meest geliefde plekken van Utrecht. Hofstraat 14 is er één die je gezien móét hebben.Te koop gekomen in de wijk "Oudwijk" is deze fijne gezinswoning met 2 slaapkamers énmaarliefst 2 dakterrassen met fenomenaal uitzicht!
bijzonderheden:
Keurige staat van onderhoud
Maar liefst 2 dakterrassen
Instap klaar
Verwarming en warm water dmv cv ketel bouwjaar 2017
Meterkast voorzien van 6 groepen.
Niet gewoond clausule en geen vragenlijst aanwezig
Project Notaris Hoekstra en Partners Utrecht
Oplevering in overleg