Beschrijving
Wonen in een zeer rustige buurt, in de groene wijk Overvecht? Op zoek naar een betaalbare gezinswoning? Met o.a. 5 voldoende slaapkamers en een goede tuin op het zuiden? Dan is dit beslist het ideale object!
De Hondurasdreef is een rustige straat, vlakbij groen en het fietspad langs de Klopvaart. In slechts een paar minuutjes ben je bij Fort aan de Klop, een gastvrije plek op een historische locatie. Voor je dagelijkse boodschappen loop je bijvoorbeeld naar de Jumbo en op de fiets ben je al snel bij het grote Shoppingcenter Overvecht met een keur aan winkels. Hou je van sporten? Wandelen en hardlopen doe je langs de Vecht, je kunt op de fiets naar de Maarsseveense Plassen. De Vechtsebanen liggen om de hoek en hier kun je schaatsen, paddelen en fitnessen. Mocht je iets verder van huis willen dan zijn uitvalswegen via de ring naar de A2 en A27 snel bereikbaar. Bovendien kun je gratis parkeren in de wijk.
Kortom: Een fijne en praktische gezinswoning op een zeer gunstige en centrale locatie!
Indeling:
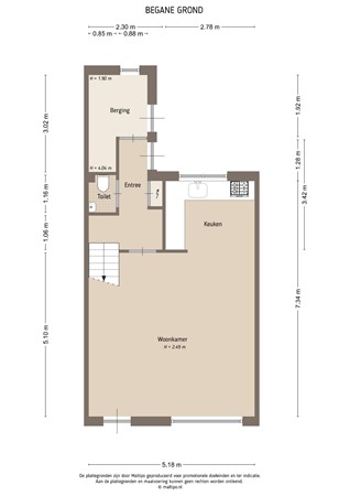
Begane grond: entree, hal met meterkast en toegang tot de woonkamer en berging. Ruime open keuken in een hoekopstelling met diverse inbouwapparatuur en uitkijk op straat. Hal met toilet en fontein. De hal biedt doorgang naar de bijkeuken. Aan de voorzijde van de woning bevindt zich een ruime afgesloten berging. De tuin is gelegen op het zonnige zuiden en heeft een achterom.
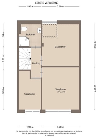
Eerste verdieping: overloop met trapopgang en toegang tot alle vertrekken, waaronder drie slaapkamers en een badkamer met inloopdouche en 2e toilet en tevens wastafel. De kamers aan de achterzijde van de woning beschikken over grote ramen.
Tweede verdieping deze bovenste verdieping komt uit op de royale overloop met bergruimte onder het schuine dak. Ook is er ruimte voor de C.V. opstelling Gefit 2017. Hier is de vierde slaapkamer welke beschikt over een dakraam. Mogelijkheid tot een 5e slaapkamer
Bijzonderheden:
• Bouwjaar 1985
• Keurige keuken met inbouw apparatuur
• De woning zal intern gemoderniseerd kunnen worden
• Kunststof kozijnen
• Voorzien van dubbele beglazing
• C.V. ketel in eigendom Nefit 2017
• De erfpacht is eeuwig durend afgekocht AV 1989
• Verkoper heeft de woning niet zelf bewoond
• Oplevering in overleg, kan spoedig
Toelichtingsclausule NEN2580
De meetinstructie is gebaseerd op de NEN2580. De meetinstructie is bedoeld om een meer eenduidige manier van meten toe te passen voor het geven van een indicatie van de gebruiksoppervlakte. De meetinstructie sluit verschillen in meetuitkomsten niet volledig uit, door bijvoorbeeld interpretatieverschillen, afrondingen of beperkingen bij het uitvoeren van de meting.
Wij hebben alle moeite genomen om de bovenstaande informatie zo compleet en juist mogelijk weer te geven. Fouten of onjuistheden zijn echter niet geheel uit te sluiten. Vertrouw niet enkel op bovenstaande informatie, maar controleer alle informatie zorgvuldig wanneer je overgaat tot een aankoopbeslissing.