Beschrijving
Wonen in het populaire Tuindorp-Oost? Met uniek en vrij uitzicht op het mooiste stuk aan het Kouwerplantsoen? En ruimte genoeg voor een groot gezin? Dan is dit beslist het ideale object!
Aan deze brede groene laan in de wijk Tuindorp-Oost staat deze royale tussenwoning met grote voor- en achtertuin, stenen schuur en achterom. Deze lichte woning heeft aan de voorzijde vrij uitzicht over een schitterende groenstrook. De woning is zeer goed onderhouden en voorzien van o.a. luxe, ruime keuken, strakke wand- en vloer afwerking, 14 zonnepanelen, dak- vloer en muurisolatie en dubbel glas. Je loopt in 2 minuten naar winkelcentrum De Gaard met o.a. een grote Albert Heijn, een sportschool en het restaurant Buurten De Gaard. Tevens is de woning gunstig gelegen ten opzichte van uitvalswegen en op fietsafstand van het bruisende centrum. Kortom: een unieke mogelijkheid om vrij te wonen met alle voorzieningen van de stad om de hoek!
Indeling:
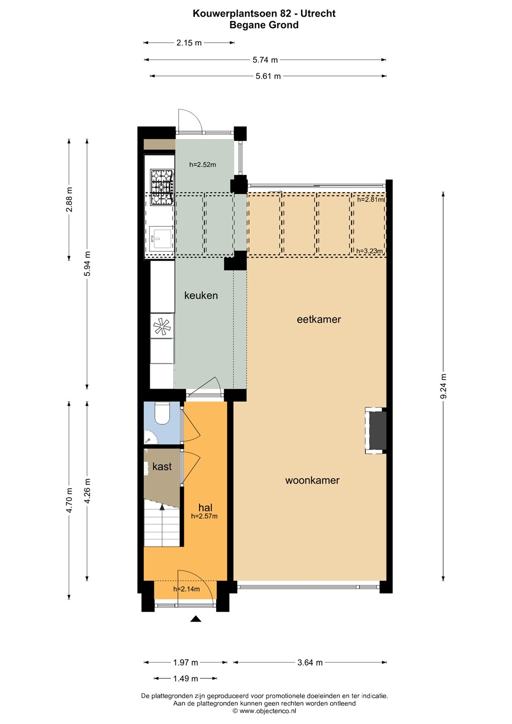
Begane grond: entree met meterkast / kelder, toegang tot het toilet, de uitgebouwde woonkamer en trapopgang naar de eerste verdieping. Toilet met hoekfontein.
Ruime woon- eetkamer met o.a. sfeervolle gashaard, uitgebouwde, luxe open keuken met 5-pits gasfornuis, afzuigkap, oven, vaatwasser, koelkast, vriezer en Quooker en toegang tot de tuin.
Sfeervol aangelegde achtertuin, gelegen op het oosten met vrijstaande stenen schuur met openslaande deuren en achterom. Berging voorzien van elektra.
1e verdieping: overloop met trapopgang naar 2e verdieping, vaste kast en toegang tot alle vertrekken.
Badkamer met douche, toilet en dubbele wastafel. 2 goed bemeten slaapkamers waarvan de kamer aan de achterzijde kastruimte biedt.
Waskamer met witgoedopstelling en wastafel.
Vaste trap naar geïsoleerde zolderverdieping. Overloop met vaste kast en toegang tot alle kamers.
Slaapkamer achterzijde met tevens opstelling cv (gasgestookte Remeha combiketel 2009)
Slaapkamer met aan de voorzijde 4 dakramen.
Aanvullende informatie:
- Bouwjaar 1958
- Voorzien van dak, vloer- en muurisolatie
- 14 zonnepanelen totaal 4160 Wp (2019)
- Uitgebouwde woonkamer/keuken
- 2 airco's aanwezig
- Dak schuur betreft een Eco dak
- Keurig onderhouden
- Kindvriendelijke, gewilde locatie
- Vrije ligging aan plantsoen
- Woonoppervlakte 127 m²
- Bruto inhoud 454 m³
- Perceeloppervlakte 150 m²
- Toelichtingsclausule NEN2580
De meetinstructie is gebaseerd op de NEN2580. De meetinstructie is bedoeld om een meer eenduidige manier van meten toe te passen voor het geven van een indicatie van de gebruiksoppervlakte. De meetinstructie sluit verschillen in meetuitkomsten niet volledig uit, door bijvoorbeeld interpretatieverschillen, afrondingen of beperkingen bij het uitvoeren van de meting.
Wij hebben alle moeite genomen om de bovenstaande informatie zo compleet en juist mogelijk weer te geven. Fouten of onjuistheden zijn echter niet geheel uit te sluiten. Vertrouw niet enkel op bovenstaande informatie, maar controleer alle informatie zorgvuldig wanneer je overgaat tot een aankoopbeslissing.