Beschrijving
Wil jij ook wonen op een absolute top plek in Utrecht Oost? In een rustige straat, maar toch in de nabijheid van winkels, restaurants en alles wat deze locatie zo geliefd maakt? En ben jij liefhebber van de 30-er jaren stijl en heb jij geen zin om te moeten klussen? Dan is dit beslist het ideale object en een bezichtiging waard!
Zeer sfeervolle, lichte eindwoning met stadstuin in de leukste wijk van Utrecht: Oudwijk. Dus het verrukkelijke Wilhelminapark, alle leuke winkels van de Burgemeester Reigerstraat, de gezelligste restaurantjes én het stadscentrum op loopafstand. Bus en uitvalswegen om de hoek, ruime parkeergelegenheid en toch lekker rustig.
De Lindestraat is een charmante, rustige straat, waar kinderen nog lekker buiten kunnen spelen. De woning is verrassend ruim (102 m2), gunstig ingedeeld en dankzij de nette staat van afwerking zo te betrekken. Kernwoorden hierbij zijn: Fraaie houten vloeren, hoge plafonds, strak stucwerk en heel veel kastruimte.
Indeling:
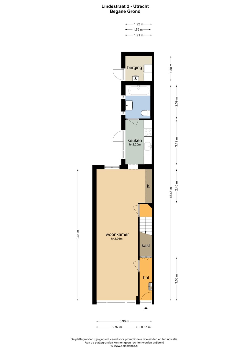
Begane grond: Entree, hal, meterkast, ingebouwde, verrassend ruime garderobekast. Ruime, lichte woon/eetkamer met openslaande ramen naar de tuin, inbouwkast, keuken voorzien van alle benodigde inbouwapparatuur, met toegang tot de tuin. De badkamer (toilet, ligbad en wastafelmeubel) is gelegen achter de keuken, wat vooral met kleine kinderen ideaal is. In de berging - via de tuin te bereiken - zijn de cv-ketel (in 2016 vernieuwd), wasmachine en droger opgesteld.
Eerste verdieping: Overloop, 2 zeer ruime slaapkamers over de volle breedte van het huis, 1 lichte tussenkamer met inbouwkast, tweede toilet met wastafel.
Tweede verdieping: Zolder, te gebruiken als werk- of slaapkamer. Ingebouwd bureau met bergruimte achter de knieschotten, en een luxueuze inbouwkast met hanggedeelte, legplanken en diepe lades.
Aanvullende informatie:
- Bouwjaar 1933
- Woonoppervlakte 102 m2
- Goed onderhoudsniveau
- Parkeren middels parkeervergunning
- Oplevering in overleg, kan spoedig
- Niet gewoond clausule van toepassing
- Geen vragenlijst en lijst van zaken aanwezig
Toelichtingsclausule NEN2580
De meetinstructie is gebaseerd op de NEN2580. De meetinstructie is bedoeld om een meer eenduidige manier van meten toe te passen voor het geven van een indicatie van de gebruiksoppervlakte. De meetinstructie sluit verschillen in meetuitkomsten niet volledig uit, door bijvoorbeeld interpretatieverschillen, afrondingen of beperkingen bij het uitvoeren van de meting.
Wij hebben alle moeite genomen om de bovenstaande informatie zo compleet en juist mogelijk weer te geven. Fouten of onjuistheden zijn echter niet geheel uit te sluiten. Vertrouw niet enkel op bovenstaande informatie, maar controleer alle informatie zorgvuldig wanneer je overgaat tot een aankoopbeslissing.