Beschrijving
UNIEK!
Wonen in een prachtig, statig herenhuis met vrij uitzicht op water en park? Ruimte en een heerlijke tuin zijn belangrijke uitgangspunten bij uw zoektocht? En is een combinatie van wonen en werken ook een harde eis? Dan is dit beslist het ideale object en absoluut een bezichtiging waard!
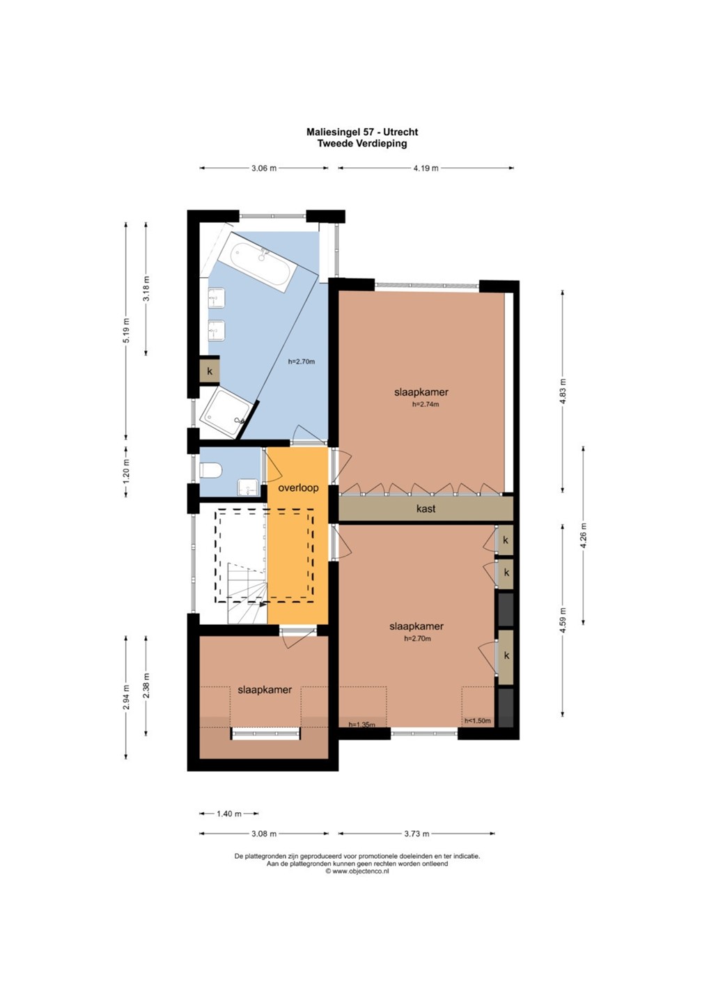
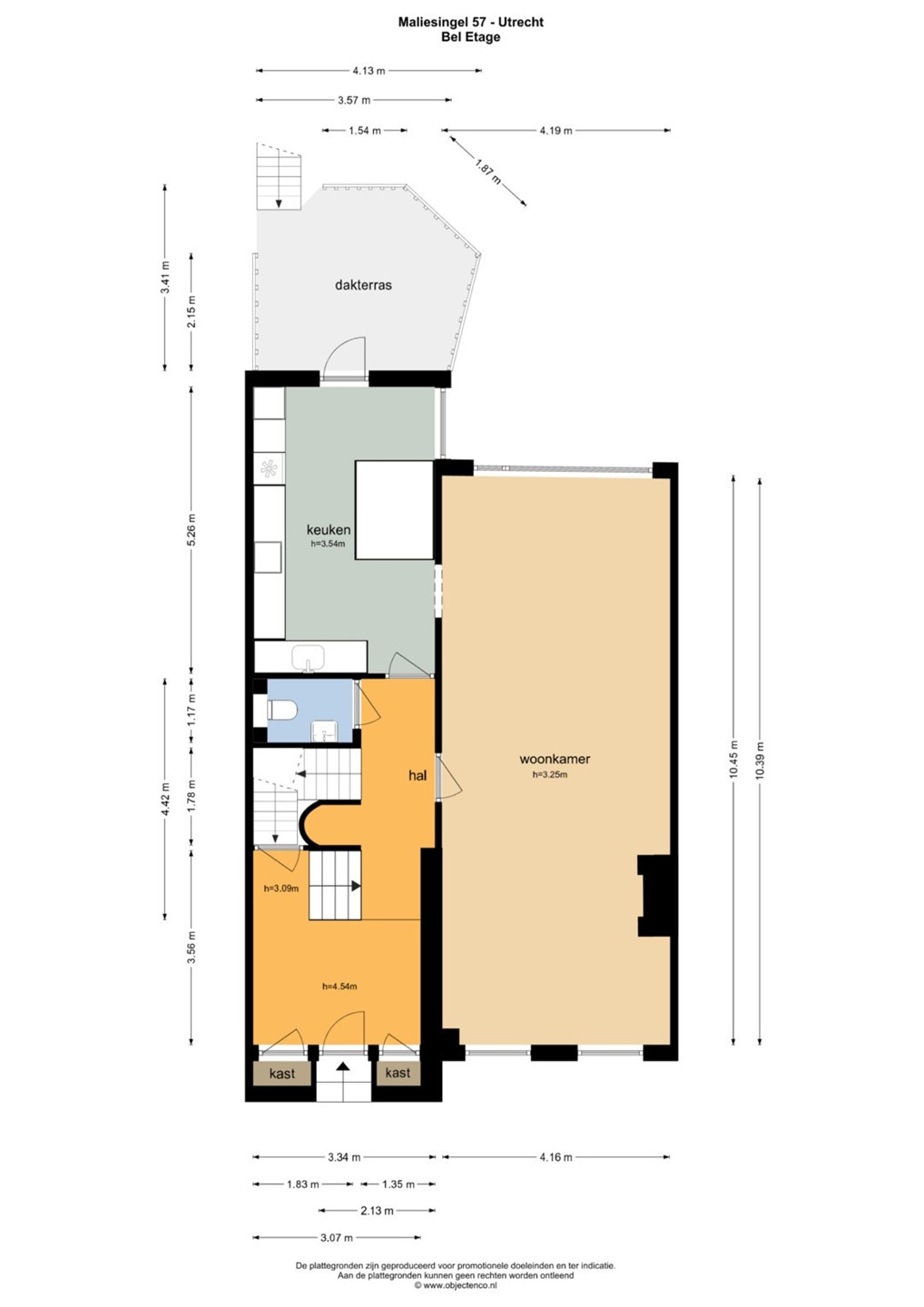
Karakteristiek en charmant herenhuis met royale achtertuin, inpandige berging en balkon. Wonen aan de Maliesingel is voor velen een grote wens. Dit historische object op een A-locatie maakt het mogelijk om van alle seizoenen te genieten van een prachtig stadsgezicht. De brede singel, de oude bomen, het zicht op het water, het Zocherpark en karakteristieke bebouwing, maken het tot een van de meest bijzondere locaties van Utrecht. Vanuit de centrale ligging is het mogelijk om van al hetgeen de stad te bieden heeft optimaal te genieten. U bent zo in het centrum om te winkelen of een hapje te eten bij een van de vele restaurants of heerlijk wandelen in de nabij gelegen parken. Daarnaast is het station en de uitvalswegen in directe nabijheid gelegen. De bestrating van de Maliesingel is recent gerenoveerd in het nieuwe “auto’s te gast – concept” (30 km per uur). Het geheel is goed onderhouden en voorzien van: gedeeltelijk dubbel glas, verwarming middels stadsverwarming, openhaard, deels houten vloeren, fraaie schouwen, fantastisch trappenhuis, paneeldeuren en hoge ornamenten plafonds etc. Tijdens een bezichtiging kunt u de rest van de gemakken van de woning aanschouwen! Wordt dit charmante herenhuis uw nieuwe thuis? Begane grond/entree: Bij binnenkomst een opmerkelijk hoge hal met marmeren vloer en enkele treden omhoog voor de beletage en enkele treden omlaag voor het souterrain. Souterrain: hal met bergruimte onder de trap, garderobekast en ruim hangend toilet met fontein. Aan de voorzijde bevindt zich een dubbele bergkamer. Aan de achterzijde is een ruime mooie kamer met deur naar de tuin en dubbele en suite deuren naar een inpandige berging. Tevens is er een separate bergkast met een wasmachine – en drogeraansluiting. Hal, keuken, tuinkamer en inpandige berging zijn voorzien van vloerverwarming. Beletage: Hal, hangend toilet met fontein. Indrukwekkende living met mooie hoogte, schouw, sierplafonds, houten vloerdelen en een werkelijk uniek uitzicht op de singel. Aan de achterzijde een fraaie recent gerenoveerde keuken met complete inbouwapparatuur en veel kastruimte. Tevens is er van achterzijde toegang tot een fraai terras. Mede aan de achterzijde is het uitzicht opmerkelijk! 1e verdieping: hal, hangend toilet met fontein. Aan de voorzijde bevindt zich thans een riante slaapkamer welke dienst doet als atelier c.q. hobbyruimte met fraai zicht over de singel en het water. Tevens is er aan de achterzijde nog een slaapkamer te vinden alsmede een prachtig gerenoveerde riante badkamer met vrijstaand bad, duo inloopdouche en dubbele wastafels. 2e verdieping: hal met extra lichtinval door de aanwezigheid van een groot daklicht boven het trappenhuis. Hangend toilet met fontein. Op deze verdieping zijn 3 slaapkamers aanwezig. Complete badkamer met inloopdouche, ligbad, dubbele vaste wastafel en vloerverwarming.
Aanvullende informatie:
- Bouwjaar 1875
- Toplocatie
- Woonoppervlakte 320 m2, inhoud 1278 m3
- Royale, diepe tuin met vrije ligging
- Energielabel C
- Combinatie wonen/werken mogelijk
- Beschermd stadsgezicht
- Oplevering in overleg
Toelichtingsclausule NEN2580
De meetinstructie is gebaseerd op de NEN2580. De meetinstructie is bedoeld om een meer eenduidige manier van meten toe te passen voor het geven van een indicatie van de gebruiksoppervlakte. De meetinstructie sluit verschillen in meetuitkomsten niet volledig uit, door bijvoorbeeld interpretatieverschillen, afrondingen of beperkingen bij het uitvoeren van de meting.
Wij hebben alle moeite genomen om de bovenstaande informatie zo compleet en juist mogelijk weer te geven. Fouten of onjuistheden zijn echter niet geheel uit te sluiten. Vertrouw niet enkel op bovenstaande informatie, maar controleer alle informatie zorgvuldig wanneer je overgaat tot een aankoopbeslissing.