Beschrijving
Op zoek naar een energiezuinig (A-label) gezinshuis? Zoek jij veel ruimte, speelse indeling en meerdere buitenruimten? Dit alles gecombineerd met een centrale, kindvriendelijke locatie? Dan is dit beslist het ideale object!
Heerlijk ruime kadewoning met carport en grote berging. Deze extra ruime woning met carport en besloten tuin ligt in de groene wijk Langerak. De achterzijde van deze woning biedt vrij uitzicht over het water, de voorzijde van de woning ligt aan een zeer rustige straat.
Naast de besloten tuin, beschikt de woning ook nog over een ruim dakterras die vanuit de eetkamer is te bereiken.
De woning is gebouwd in 2000 en derhalve duurzaam gebouwd en van alle hedendaagse gemakken voorzien.
Nabij de woning is het winkelcentrum Parkwijk gelegen. Ook diverse scholen, sportvoorzieningen en kinderopvang liggen in de buurt. De bushalte ligt om de hoek en de uitvalswegen A2 en A12 zijn binnen een paar minuten bereikbaar.
Kortom, een ideaal gezinshuis met volop ruimte!
Indeling:
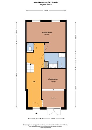
Begane grond
Carport. Berging (ruim 35 m3!) en poort met toegang tot de besloten en fraai aangelegde tuin.
Entree. Meterkast. Separaat toilet. Badkamer voorzien van dubbele wastafel en ruime inloopdouche. Twee (slaap)kamers, waarvan de kamer aan de tuinzijde beschikt over openslaande deuren naar de tuin. Vaste kast onder de trap. Trapopgang naar de 1ste verdieping.
1e Verdieping:
Royale woon- en eetkamer met open keuken gelegen op de gehele verdieping. De keuken is uitgevoerd met een inductiekookplaat, afzuigkap, vaatwasser en koel-vriescombinatie. Vanuit de keuken en woonkamer is er toegang tot het zonnige dakterras middels openslaande deuren.
2de Verdieping:
Overloop met toegang tot alle vertrekken. Wasruimte met aansluiting voor de wasmachine. Ruime slaapkamer met vaste kasten en veel lichtinval door de aanwezigheid van een dakkapel. Kleinere slaapkamer met toegang tot de vliering via de vlizotrap. Een 2e badkamer met douche, bad, dubbele wastafel en toilet completeert het geheel.
HIGHLIGHTS:
- Keuken gemoderniseerd, vernieuwd in 2020
- Badkamer 2e verdieping gerealiseerd in 2017
- 8 zonnepanelen (2021)
- Badkamer en toilet begane grond gerealiseerd in 2022
- Woonkamer, trapopgangen en slaapkamer voorzijde gerenoveerd in 2022
Aanvullende informatie:
- Bouwjaar 2000
- Energielabel A, volledig geïsoleerd
- Tuin en zonneterras op het zuidwesten
- Parkeren op eigen erf (carport)
- Badkamer en keuken recent vernieuwd
- Gewilde ligging in Langerak
- Stadsverwarming
- Erfpacht eeuwigdurend afgekocht AV 1989
- Oplevering in overleg
Toelichtingsclausule NEN2580
De meetinstructie is gebaseerd op de NEN2580. De meetinstructie is bedoeld om een meer eenduidige manier van meten toe te passen voor het geven van een indicatie van de gebruiksoppervlakte. De meetinstructie sluit verschillen in meetuitkomsten niet volledig uit, door bijvoorbeeld interpretatieverschillen, afrondingen of beperkingen bij het uitvoeren van de meting.
Wij hebben alle moeite genomen om de bovenstaande informatie zo compleet en juist mogelijk weer te geven. Fouten of onjuistheden zijn echter niet geheel uit te sluiten. Vertrouw niet enkel op bovenstaande informatie, maar controleer alle informatie zorgvuldig wanneer je overgaat tot een aankoopbeslissing.