Beschrijving
UNIEK OBJECT TE KOOP OP TOPLOCATIE IN WITTEVROUWEN!
Zoek je een woning met veel ruimte en gebruiksmogelijkheden? Of een interessante belegging, al dan niet in combinatie met een ouder-kind constructie en dus woonruimte voor kind(eren)? Dit alles op een heerlijke locatie, niet ver van de binnenstad en pal om de hoek van de Biltstraat? Dan is dit beslist het ideale object!
Deze enorm ruime, lichte woning is gelegen in de gezellige Ooftstraat in de wijk "Wittevrouwen”. De Ooftstraat is een rustige zijstraat van de Poortstraat, met éénrichtingsverkeer. De woning is maar liefst 147m2 (bruto179m2) groot en biedt diverse gebruiksmogelijkheden. Enkele mogelijkheden zijn: een ruime gezinswoning, kantoor aan huis, een eigen verdieping voor thuiswonende student of verhuur hiervan. Thans is de woning ingericht met 3 volwaardige woonverdiepingen met ieder een eigen buitenruimte.
De woning is in de loop der jaren goed onderhouden, doch verdient afhankelijk van gebruiksdoeleinde enige aanpassing.
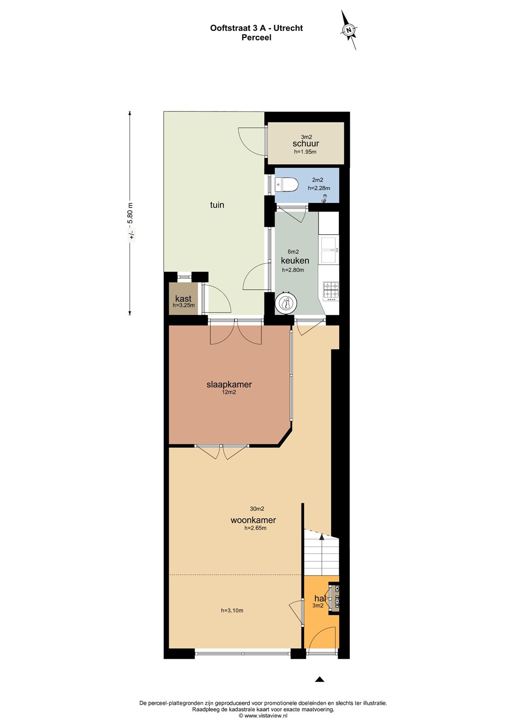
Huidige indeling:
Begane grond: Entree, hal met trap naar de eerste verdieping. Hal met doorgang naar de lichte ruime woonkamer. Middels openslaande deuren bereik je de slaapkamer. Deze biedt genoeg ruimte voor een 2-persoonsbed en 4-deurs kledingkast. De slaapkamer heeft openslaande deuren naar de stadstuin. Via de woonkamer kom je tevens terecht in de dichte keuken, ook deze heeft een deur naar de tuin. Doorgang naar badkamer. De tuin biedt voldoende mogelijkheden om gezellige eet- en lounge plekjes te creëren. Tevens is de tuin voorzien van een schuur.
Eerste verdieping: Overloop met trap naar de goed geïsoleerde tweede verdieping. De overloop biedt toegang tot de ruime woonkamer. Aan de voorzijde van de woning tref je een zeer ruime slaapkamer aan, met veel lichtinval. Aan de achterzijde bevindt zich een gesloten keuken aan. Ook is hier een 2e badkamer. Het speelse balkon, toegankelijk vanuit de woonkamer en de keuken, geeft een leuk uitzicht op de omgeving achter de woning.
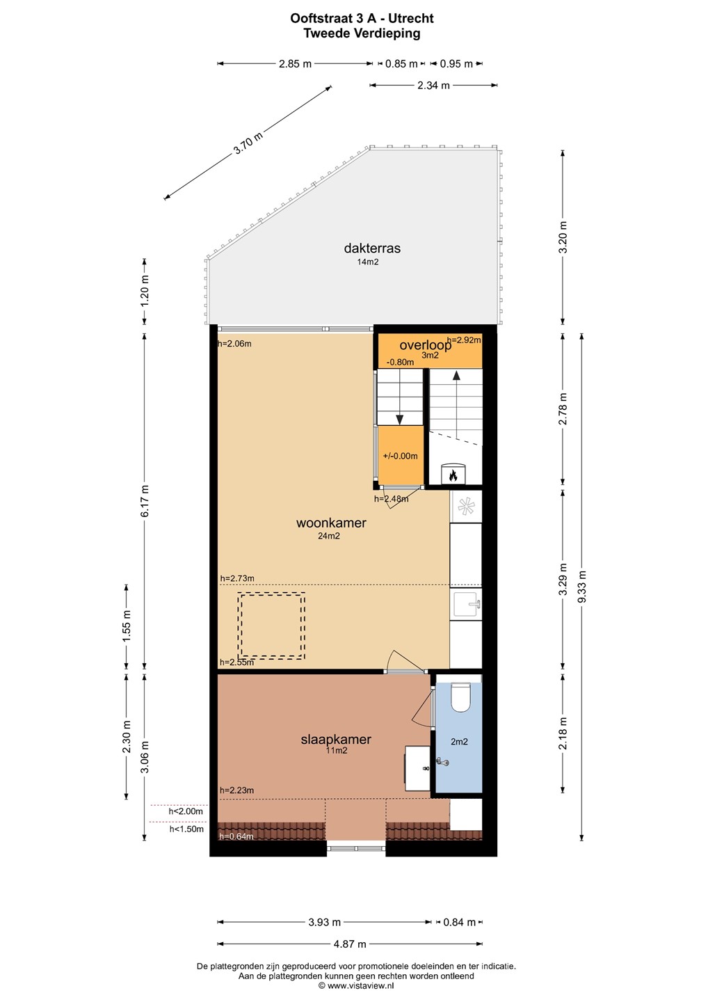
Tweede verdieping: Overloop, welke toegang biedt tot de woonkamer en open keuken. Aan de voorzijde van de woning tref je de slaapkamer aan met dakkapel. De slaapkamer geeft toegang tot de badkamer. Aan de achterzijde van de woning is het ruime balkon gesitueerd, met weids uitzicht over de omgeving.
Deze fijne woonplek in Wittevrouwen biedt een gevarieerde, rustige en zeer prettige woonomgeving dichtbij het stadscentrum. De woning is prettig gelegen ten opzichte van diverse en leuke voorzieningen zoals 'Koffie75', en de beste ijssalon van Utrecht, 'Roberto's.' Er zit een warme bakker en supermarkt om de hoek voor de dagelijkse boodschappen. Er zijn verschillende kinderdagverblijven en een basisschool om de hoek. Op de nabij gelegen Biltstraat is er een ruime keuze aan diverse restaurants en het Griftpark ligt op loopafstand. Het oude centrum is op fiets-/wandelafstand gelegen. Reis je veel met het openbaar vervoer? Het Centraal Station is per fiets of met diverse busverbindingen van af de Biltstraat goed bereikbaar evenals het universiteitscentrum De Uithof.
Aanvullende informatie:
- Bouwperiode circa 1881
- Woning is bouwtechnisch gekeurd.
- Woonoppervlakte 147 m2 (NEN2580) Bruto maar liefst 179m2!
- Bruto inhoud 582 m3
- Parkeren middels vergunningsstelsel
- Rustige ligging, in eenrichtingsstraat
- Niet gewoond clausule van toepassing
- Aanvaarding kan spoedig
Toelichtingsclausule NEN2580
De meetinstructie is gebaseerd op de NEN2580. De meetinstructie is bedoeld om een meer eenduidige manier van meten toe te passen voor het geven van een indicatie van de gebruiksoppervlakte. De meetinstructie sluit verschillen in meetuitkomsten niet volledig uit, door bijvoorbeeld interpretatieverschillen, afrondingen of beperkingen bij het uitvoeren van de meting.
Wij hebben alle moeite genomen om de bovenstaande informatie zo compleet en juist mogelijk weer te geven. Fouten of onjuistheden zijn echter niet geheel uit te sluiten. Vertrouw niet enkel op bovenstaande informatie, maar controleer alle informatie zorgvuldig wanneer je overgaat tot een aankoopbeslissing.