Beschrijving
UNIEK: Op zoek naar de ultieme plek en het ultieme huis in Tuindorp? Een karakteristieke, ruime (190 m2) 30-er jaren hoekwoning met sfeer, warmte en een waanzinnig afwerkingsniveau. En ook nog een fraaie tuin met volop privacy, parkeerplaats en meerdere zitgedeelten met zon en schaduw. Dan is dit beslist het ideale object en absoluut een bezichtiging waard!
In de geliefde 30-er jaren woonwijk Tuindorp zijn diverse speeltuinen, drie basisscholen, een voortgezet onderwijs, kinderdagverblijven, sportvoorzieningen en gezondheidscentra te vinden. In het vernieuwde winkelcentrum De Gaard (op loopafstand) vind je een divers en volledig winkelaanbod voor de dagelijkse boodschappen en gezellige horecagelegenheden. Het Griftpark, de binnenstad maar ook natuurgebieden liggen op korte fietsafstand. In deze wijk vind je een treinstation en met de auto ben je binnen enkele minuten op de ring van Utrecht of de snelwegen rondom de stad.
De huidige bewoners hebben het huis 5 jaar geleden volledig gestript en op verschillende plekken uitgebouwd en compleet gerenoveerd met uitsluitend materialen van top kwaliteit en daarbij oog houdend voor de typische 30-er jaren sfeer zodat diverse authentieke details bewaard gebleven zijn. Tevens is volop aandacht geschonken aan goede isolerende voorzieningen. Er is onder andere dak-, muur- en vloerisolatie aanwezig en de woning is geheel voorzien van nieuwe kozijnen en dubbel glas (HR++).
Graag nodigen wij je uit voor een uitgebreide rondleiding door deze bijzondere woning!
Indeling:
Entree, vestibule met garderoberuimte en fraaie deur naar hal met trapkast, meterkast en toilet met luxe uitgevoerd sanitair. Doorgang naar riante en fraai uitgebouwde L-vormige woon-eetkamer met onder andere openslaande deuren naar tuin, ramen met roede-verdeling, visgraten parketvloer (met vloerverwarming) en sfeervolle gasgestookte tunnelhaard. De woonkamer staat in directe verbinding met de keuken welke luxe en bijzonder sfeervol is uitgevoerd en de beschikking heeft over complete en luxe inbouwapparatuur waaronder een wijn klimaatkast. Ook vanuit deze ruimte bieden openslaande deuren toegang tot de tuin. Deze ruimte biedt toegang tot zowel een praktische werkkamer alsmede een speel/game ruimte voor de kinderen. Tot slot is er ook nog een zeer ruime bijkeuken/berging te vinden met opstelling wasmachine, droger en vriezer.
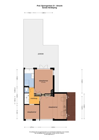
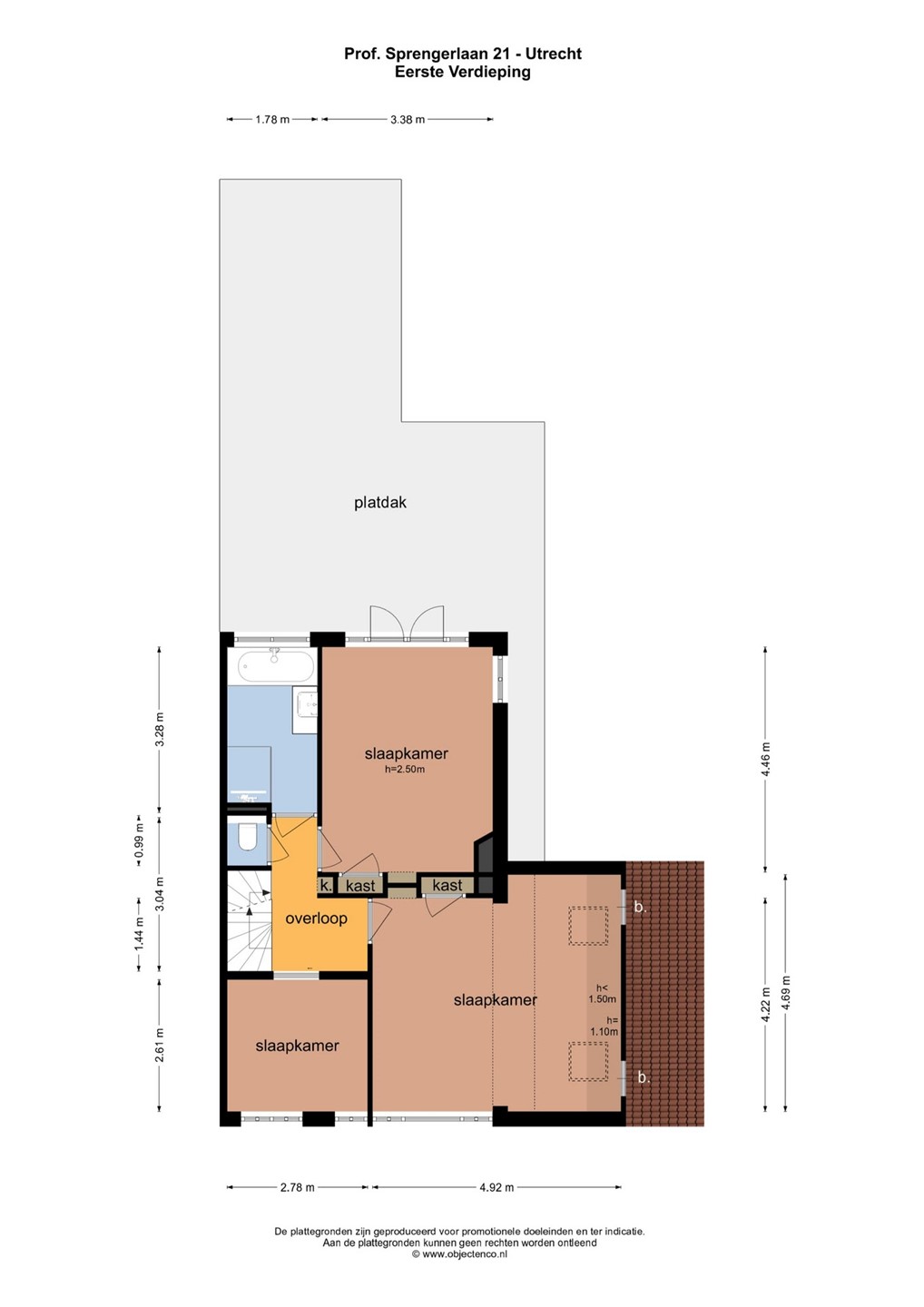
1e verdieping: overloop, 3 volwaardige (waarvan 2 zeer ruime) slaapkamers met vaste kasten en praktische bergruimten. In de achtergelegen slaapkamer zijn openslaande deuren aanwezig. Zeer smaakvol uitgevoerd badkamer met comfortabele gietvloer inclusief vloerverwarming, ligbad, separate douche en vaste wastafel met eikenhouten maatwerkmeubel. Tevens is er een separaat toilet aanwezig op deze verdieping.
Vaste trap naar geïsoleerde en praktisch ingerichte zolderverdieping. Hier bevindt zich nog een slaapruimte en is volop maatwerk bergruimte. Ook is er een wederom smaakvol en luxe uitgevoerde badkamer en suite aanwezig met comfortabele gietvloer, douche, vast wastafelmeubel en wandcloset.
De tuin is fraai aangelegd, heeft de beschikking over meerdere terrassen met zon en schaduw en biedt optimale privacy en rust. Er is een mogelijkheid om te parkeren op eigen terrein middels eigen toegangspoort.
Een absolute parel met een woonoppervlakte van maar liefst 190 m2 en een waanzinnig afwerkingsniveau. Zien is verliefd worden!
Aanvullende informatie:
- Zeer hoogwaardig afwerkingsniveau
- Luxe keuken en sanitair
- Bouwjaar 1931
- Woonoppervlakte 190 m2
- Bruto inhoud 714 m3
- Mogelijkheid voor parkeren op eigen terrein
- Rondom ruimtelijk uitzicht
- Besloten tuin met volop privacy
- Energielabel B
- Absolute toplocatie
- Aanvaarding in overleg
Toelichtingsclausule NEN2580
De meetinstructie is gebaseerd op de NEN2580. De meetinstructie is bedoeld om een meer eenduidige manier van meten toe te passen voor het geven van een indicatie van de gebruiksoppervlakte. De meetinstructie sluit verschillen in meetuitkomsten niet volledig uit, door bijvoorbeeld interpretatieverschillen, afrondingen of beperkingen bij het uitvoeren van de meting.
Wij hebben alle moeite genomen om de bovenstaande informatie zo compleet en juist mogelijk weer te geven. Fouten of onjuistheden zijn echter niet geheel uit te sluiten. Vertrouw niet enkel op bovenstaande informatie, maar controleer alle informatie zorgvuldig wanneer je overgaat tot een aankoopbeslissing.