Beschrijving
Wil jij wonen op een absolute TOPlocatie in hartje binnenstad? Met alle gemakken en voorzieningen welke de stad biedt om de hoek? In een tof appartement om de hoek van het Neude? Dan is dit beslist het ideale object!
Locatie! Locatie! Locatie! Dat geldt absoluut voor deze unieke plek. Letterlijk om de hoek van het Neude bevindt zich deze fijne 2-kamer bovenwoning. Het appartement maakt onderdeel uit van een kleinschalige VVE.
Het geheel ligt verscholen midden in het historisch centrum van Utrecht. Met nog geen 1 minuut lopen sta je midden op de Neude. De gezellige horeca van Utrecht ligt allemaal op loopafstand. Met ongeveer 5 minuten fietsen ben je op het centraal station. Verschillende supermarkten bevinden zich op steenworp afstand van de woning.
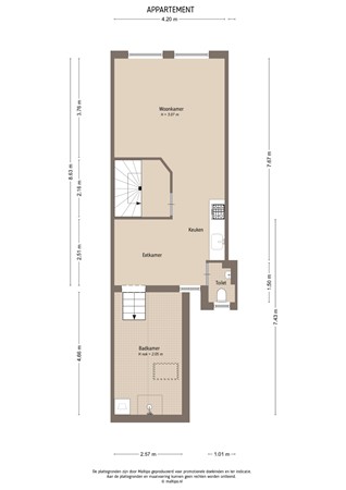
Indeling:
Begane grond: bellentableau en gemeenschappelijke entree en trapopgang naar de verdieping.
1e verdieping: Entree, sfeervolle woonkamer aan de voorzijde gelegen met o.a. fraai balkenplafond en massief houten vloer. De open keuken staat in directe verbinding met de woonkamer, is in rechte opstelling gesitueerd en heeft de beschikking over enige inbouwapparatuur. Toilet met fonteintje, doorgang naar ruime badkamer met douche, werk vide, en aansluiting wasmachine. Trap naar slaapkamer van circa 10 m2 completeert het geheel.
Aanvullende informatie:
- Bouwperiode circa 1910
- Woonoppervlakte circa 52 m2
- 2-kamer appartement met goede slaapkamer en werk/slaap vide
- KvK registratie aanwezig
- VVE actief
- Verbruik geschiedt via tussenmeters
- Indicatie servicekosten 75 euro per maand
- Geen vragenlijst en lijst van zaken aanwezig
- Niet gewoond clausule van toepassing
- Project Notaris van Grafhorst Notarissen
Toelichtingsclausule NEN2580
De meetinstructie is gebaseerd op de NEN2580. De meetinstructie is bedoeld om een meer eenduidige manier van meten toe te passen voor het geven van een indicatie van de gebruiksoppervlakte. De meetinstructie sluit verschillen in meetuitkomsten niet volledig uit, door bijvoorbeeld interpretatieverschillen, afrondingen of beperkingen bij het uitvoeren van de meting.
Wij hebben alle moeite genomen om de bovenstaande informatie zo compleet en juist mogelijk weer te geven. Fouten of onjuistheden zijn echter niet geheel uit te sluiten. Vertrouw niet enkel op bovenstaande informatie, maar controleer alle informatie zorgvuldig wanneer je overgaat tot een aankoopbeslissing.