Beschrijving
Ben jij ook zo verknocht aan de sfeervolle 30-er jaren stijl in Oog en Al? Geen zin in een klusproject en hoge stookkosten? Voldoende slaapkamers en ruimte is eveneens een belangrijk uitgangspunt in jouw zoektocht? Dan is dit beslist het ideale object en een bezichtiging waard!
Een volledig verbouwde en goed geïsoleerde hoekwoning met tuin en goede berging in de gewilde woonwijk Oog in Al. De stijlkenmerken in deze mooie, sfeervolle woning met veel lichtinval zijn nog bewaard gebleven, zoals: glas-in-lood ramen, kamer en suite en paneeldeuren. Wat meteen opvalt zijn de ruime vertrekken op iedere woonverdieping en de hoge plafonds wat de ruimtelijkheid nog eens extra benadrukt. Het totale woonoppervlakte bedraat 156 m2 verdeeld over de 3 woonlagen, het geheel biedt 5 slaapkamers en heeft een heerlijke tuin rondom de woning met meerdere zon- en schaduwrijke plekken.
Oog in Al is een zeer aantrekkelijke en kindvriendelijke woonwijk in Utrecht West. Op loopafstand van diverse buurtwinkels (supermarkt, bakker, drogist) en leuke restaurants (Buurten, Landhuis in de stad en smoesjes), op loopafstand van diverse basisscholen, kinderdagverblijven en het prachtige park Oog in Al.
De woning ligt perfect ten opzichte van de Munt waar in de zomer veel wordt gezwommen en gepicknickt. Ook het Amsterdam Rijnkanaal ligt op 5 minuten loopafstand, je kunt hier heerlijk wandelen, boten kijken, even uitwaaien of neerstrijken voor een drankje bij stadsstrand SOIA. Bovendien ben je op de fiets in slechts 10 minuten in centrum van Utrecht! Het Centraal Station ligt zelfs op maar enkele minuten fietsen. De wijk is prima bereikbaar met openbaar vervoer en ook de aansluiting op diverse uitvalswegen (A2 – A12) is uitstekend.
Indeling:
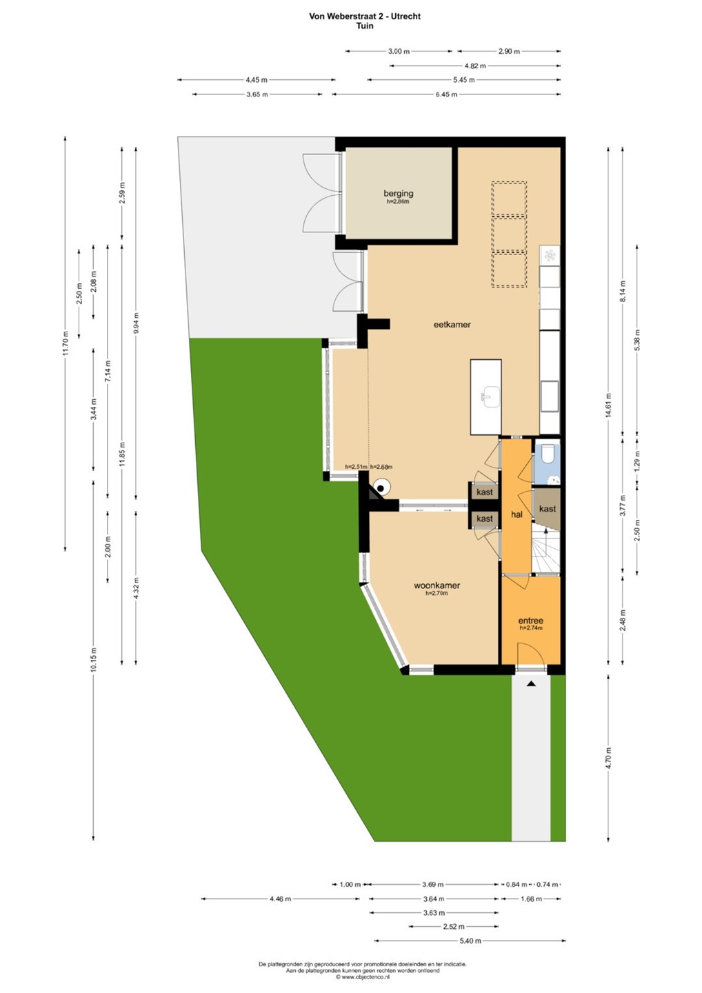
Entree, hal/vestibule, doorgang naar ruime hal met trapkast/kelderkast, toilet met fonteintje. Riante woonkamer met erker en comfortabele vloerverwarming, heerlijke woonkeuken met lichtkoepel, parketvloer, strakke wandafwerking en hiernaast fraaie stijlkenmerken. Ook zijn er vanuit de woonkamer/keuken openslaande deuren naar de tuin.
1e verdieping: overloop, 3 slaapkamers waarvan 2 heel ruim te noemen zijn en 1 een met openslaande deuren naar een balkon. Moderne en fraai gerealiseerde badkamer v.v. ligbad, inloopdouche, dubbele wastafelmeubel en wandcloset.
Vaste trap naar geïsoleerde zolderverdieping met voorzolder, airco en 2 volwaardige slaapkamers en 2e badkamer met douche, vaste wastafelmeubel en toilet. de zolder verdieping is voorzien van veel bergruimte zoals vliering als knieschotten.
Aanvullende informatie:
Bouwjaar 1935
Woonoppervlakte 156 m2
Perceeloppervlakte 160 m2
5 slaapkamers + 2 badkamers
Energielabel B
Instapklaar en zo te betrekken
Zeer fijne woonomgeving
Zonnenpanelen 4160 WP
Toelichtingsclausule NEN2580
De meetinstructie is gebaseerd op de NEN2580. De meetinstructie is bedoeld om een meer eenduidige manier van meten toe te passen voor het geven van een indicatie van de gebruiksoppervlakte. De meetinstructie sluit verschillen in meetuitkomsten niet volledig uit, door bijvoorbeeld interpretatieverschillen, afrondingen of beperkingen bij het uitvoeren van de meting.
Wij hebben alle moeite genomen om de bovenstaande informatie zo compleet en juist mogelijk weer te geven. Fouten of onjuistheden zijn echter niet geheel uit te sluiten. Vertrouw niet enkel op bovenstaande informatie, maar controleer alle informatie zorgvuldig wanneer je overgaat tot een aankoopbeslissing.