Beschrijving
Locatie Locatie Locatie!!! Wil jij ook wonen op 1 van de mooiste plekjes van de historische binnenstad? Met bijna 50 m2 buitenruimte? En heb jij geen zin om te klussen en wil jij een goed geïsoleerde woning A label!? Dan is dit beslist het ideale object en absoluut een bezichtiging waard! Kortom laat je verrassen!
Het geheel van a-z is door de huidige eigenaren compleet gerenoveerd in 2019, voorzien van 10 zonnepanelen en heeft derhalve een gunstig energielabel A.
De kwaliteit van materialen is meer dan uitstekend te noemen en eigenlijk zeggen de foto's genoeg!
Zeer rustig en gunstig gelegen op een schitterende locatie in de binnenstad van Utrecht, tussen de Weerdsingel en de Plompetorengracht. De woning ligt in een autovrij deel van de straat, op loopafstand van het oude centrum en direct nabij leuke restaurants, cafés en winkels. Ook de Stadsschouwburg, de bioscoop, het Griftpark, etc. zijn allemaal op loopafstand. Een fijne combinatie van een rustige woonplek met de levendigheid van de stad letterlijk om de hoek!
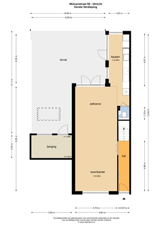
Indeling:
Eerste verdieping:
Entree, gang met moderne meterkast, trap naar de 2e verdieping, toegang tot de woonkamer dmv moderne schuifdeur.
Zeer ruime en lichte woonkamer met hoge plafonds circa 2.8m en aan de achterzijde openslaande deuren naar het ruime terras circa 50m2 met prachtig uitzicht op de Weerdsingel. Zwevend toilet met fontein (2019) en toegang tot de moderne keuken (2019) met eveneens toegang naar het zonnige zon terras.
De keuken is voorzien van alle benodigde inbouwapparatuu oa inductieplaat, een vaatwasmachine, een oven, koelkast, wijn klimaatkast met 2 zones en een vriezer. Tevens opstelplaats Cv-ketel.
Tweede verdieping:
Overloop, nette badkamer (2019) met ruime inloopdouche, 2e toilet, designradiator, en vaste wastafel in meubel. Er zijn 2 ruime kinderslaapkamers aan de voorzijde en een grote ouder slaapkamer aan de achterzijde met openslaande deuren en tevens uitzicht op de singel! Er is ook nog een praktische wasruimte, met opstelplaats wasmachine en droger.
Aanvullende informatie:
- Bouwjaar 1930
- Woonoppervlakte 98 m2
- zie voor indeling de plattegronden
- Riante buitenruimte van 48 m2
- Energielabel A
- Volledig geïsoleerd
- 10 zonnepanelen 3950 KWh
- Compleet gerenoveerd 2019
- Instapklaar
- Deeluitmakend van gezonde en actieve VVE kosten €50,- per maand
Toelichtingsclausule NEN2580
De meetinstructie is gebaseerd op de NEN2580. De meetinstructie is bedoeld om een meer eenduidige manier van meten toe te passen voor het geven van een indicatie van de gebruiksoppervlakte. De meetinstructie sluit verschillen in meetuitkomsten niet volledig uit, door bijvoorbeeld interpretatieverschillen, afrondingen of beperkingen bij het uitvoeren van de meting.
Wij hebben alle moeite genomen om de bovenstaande informatie zo compleet en juist mogelijk weer te geven. Fouten of onjuistheden zijn echter niet geheel uit te sluiten. Vertrouw niet enkel op bovenstaande informatie, maar controleer alle informatie zorgvuldig wanneer je overgaat tot een aankoopbeslissing.