Beschrijving
Op zoek naar een betaalbare, charmante 2-onder-1 kapwoning met de juiste sfeer? Op een zeer centrale locatie in Zeist op loopafstand van het gezellige dorpscentrum? En als het even kan ook nog die diepe (+-,15m), zonnige tuin? Dan is dit beslist het ideale object en absoluut een bezichtiging waard!
De hoek Oude Arnhemseweg/Hortensialaan is op loopafstand van het centrum van Zeist en maakt deel uit van het historische stadshart. In de directe nabijheid bevinden zich basisscholen, kinderdagverblijven, supermarkten, diverse winkels en uitvalswegen met uitstekende autoverbindingen naar onder andere Utrecht, De Bilt, Amersfoort en Driebergen-Rijsenburg.
De woning is de afgelopen 13 jaar door de huidige eigenaar keurig bewoond geweest. Zo heeft het geheel o.a. een badkamer op de begane grond, 2 slaapkamers op de 1e verdieping en een charmante slaapvide op de zolderverdieping. De woning kent een woonoppervlakte van 82 m2, een zeer diepe tuin met zij-opgang en o.a. gezellige veranda en schuur.
Indeling:
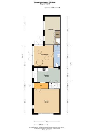
Zij-entree met garderoberuimte en doorgang naar straat gerichte (woon)kamer met o.a. schouw en hoge plafonds. Deze ruimte is thans in gebruik als werk-hobbyruimte. Vanuit de hal is tevens de keuken toegankelijk welke in L-opstelling is gesitueerd en van enige inbouwapparatuur is voorzien. Ook biedt deze ruimte toegang naar een praktische kelderruimte. Living aan de achterzijde met openslaande deuren aan de zijkant naar de tuin. Badkamer met o.a. inloopdouche, vaste wastafel en wandcloset.
1e verdieping: overloop met 2 volwaardige slaapkamers op deze verdieping. De grootste slaapkamer bevindt zich aan de voorzijde en heeft de beschikking over ingebouwde kasten.
De tuin aan de achterzijde is zeer diep ( 15M), biedt zowel zon als schaduwrijke plekken en heeft o.a. een heerlijke veranda waar het uitermate goed toeven is. Bijzonder sfeervol!
- Toelichtingsclausule NEN2580
De meetinstructie is gebaseerd op de NEN2580. De meetinstructie is bedoeld om een meer eenduidige manier van meten toe te passen voor het geven van een indicatie van de gebruiksoppervlakte. De meetinstructie sluit verschillen in meetuitkomsten niet volledig uit, door bijvoorbeeld interpretatieverschillen, afrondingen of beperkingen bij het uitvoeren van de meting.
Wij hebben alle moeite genomen om de bovenstaande informatie zo compleet en juist mogelijk weer te geven. Fouten of onjuistheden zijn echter niet geheel uit te sluiten. Vertrouw niet enkel op bovenstaande informatie, maar controleer alle informatie zorgvuldig wanneer je overgaat tot een aankoopbeslissing.