Sluiten
Voorinschrijving nieuwbouwproject de "Zuiderweg Hilversum
Schrijf je in
Registreren
Inloggen
Hoofdmenu
Home
Aanbod
Ons aanbod
Bedrijfsmatigaanbod
Verkocht
Diensten
Verkopen
Aankopen
Taxaties
Beleggingsadvies
Waardebepaling
Over ons
Beoordelingen
Team
Vacatures
Contact
Utrecht
Potgieterstraat
Verkocht
Potgieterstraat 38, 3532 VS Utrecht
€ 675.000,- k.k.
€ 5.921,05/m
2
Foto's
55
Plattegronden
4
Beschrijving Potgieterstraat 38
Aanmelding is enkel voor de statistieken, direct verkocht.
Kenmerken
Type object
Appartement, dubbel benedenhuis
Status
Verkocht
Aangeboden sinds
Maandag 24 november 2025
Alle kenmerken
Delen via WhatsApp
Delen op Facebook
Delen op Twitter
Afdrukken
Vastgoed Nederland
Funda
Pararius
Vastgoedcert
Log in op je account
×
E-mailadres
Wachtwoord
Vergeten?
Ingelogd blijven?
Beschrijving
Beschrijving
Aanmelding is enkel voor de statistieken, direct verkocht.
Kenmerken
Overdracht
Prijs
€ 675.000,- k.k.
Status
Verkocht
Aanvaarding
In overleg
Aangeboden sinds
Maandag 24 november 2025
Bouw
Type object
Appartement, dubbel benedenhuis
Woonlaag
1e woonlaag
Soort bouw
Bestaande bouw
Oppervlaktes en inhoud
Woonoppervlakte
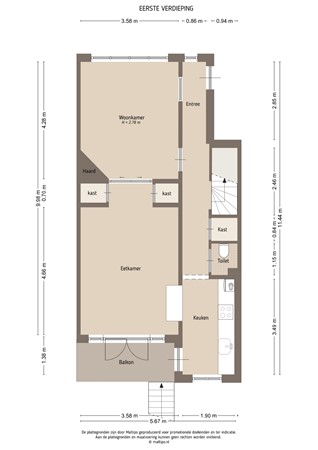
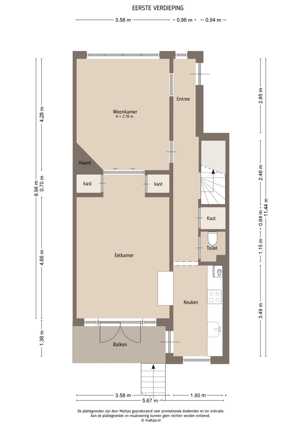
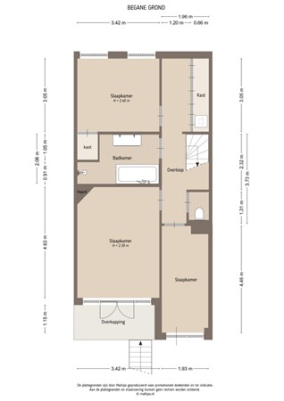
114 m²
Inhoud
400 m³
Oppervlakte externe bergruimte
6 m²
Oppervlakte gebouwgebonden buitenruimte
10 m²
Indeling
Aantal bouwlagen
1 (en 1 kelder)
Aantal kamers
5 (waarvan 3 slaapkamers)
Uitrusting
Badkamervoorzieningen
Douche, Dubbele wastafel
Kadastrale gegevens
Kadastrale aanduiding
Catharijne B 7164
Omvang
Appartementsrecht of complex
Eigendomsituatie
Eigen grond
Indexnummer
4
Foto's
Plattegronden
Beschrijving
Kenmerken
Foto's
55
Plattegronden
4